Шайна
- Кількість поверхів
- 2
- Площа
- 126.2
- Ширина
- 8.4
- Довжина
- 7.5
- Будинки і житлові будови
- Дачі
Котеджі
Маєтки
Садиби - Кількість кімнат
- Двокімнатні будинки
- Особливості будинків
- Будинки з мансардою
Будинки зі сходами
Будинки з ґанком - Кількість поверхів споруди
- Двоповерхові будинки
- Будинки з брусу
- Будинки з клеєного брусу
Будинки з профільованого брусу
(Що входить в ціну)
- комплект стін;
- комплект крокв;
- комплект балок перекриття;
- утеплювач міжвінцевий;
- антисептик (антисептування всього матеріалу);
- дубові нагеля;
- кріпильні материали (саморізи, усадкові болти, анкера, кріпильні пластини);
- гідроізоляція;
- вогнебіозахист (обробка деревини засобом І групи вогнезахисної ефективності)
Проект дерев'яного будинку 8,4 на 7,5 м з мансардою «Шайна»
Дерев'яний будинок з сухого, профільованого бруса «Шайна» виглядає добротно і компактно. Прямолінійні стіни з соснового брусу утворюють надійний моноліт дерев'яного масиву, який прослужить господарям справно протягом десятків років. Дизайн котеджу максимально простий. Що дійсно привертає увагу, так це великі вікна різної форми, які надають проекту особливого шарму. А масивний, чотирьохскатний дах додає солідності проекту «Шайна». З першого погляду, здається, що це одноповерховий будиночок. Насправді під дахом котеджу «Шайна» спроектована житлова мансарда. Давайте докладніше розглянемо планування цього будинку з бруса.
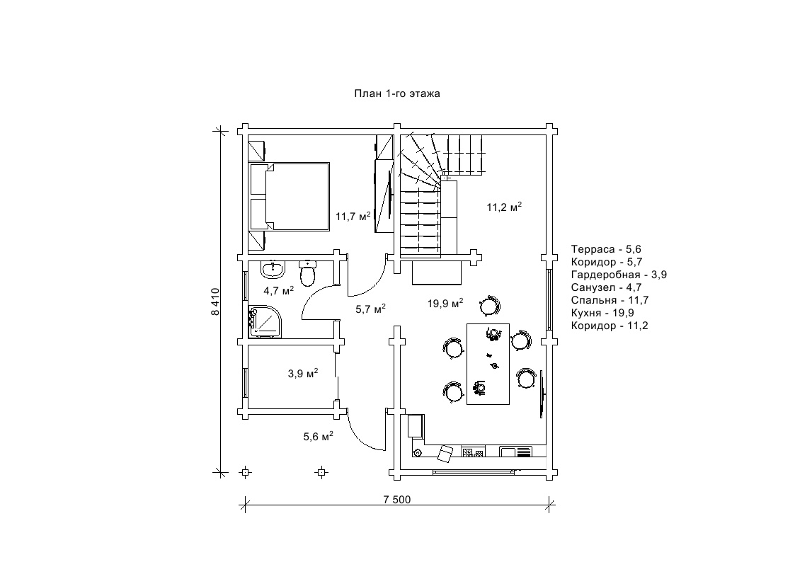
Планування дерев'яного будинку «Шайна», площа 126,2м2
Проект «Шайна» володіє компактними габаритами 8,4 на 7,5 м, що дозволяє розмістити будову на невеличкій території. Але за рахунок наявності мансарди корисна площа будиночка збільшується. Загальна площа дерев'яного котеджу становить 126,2м2. Це дуже просторий будинок з профільованого брусу з двома спальнями, який рекомендується для постійного, цілорічного проживання. Вхід в будиночок «Шайна» починається з невеликого ґанку розміром 5,6 м2. Далі слідує коридор, санвузол, кухня спальня і хол, з якого сходи піднімається на розкішну мансарду площею 63,1 м2. Тут можна заповзято організувати кілька функціональних зон, насолоджуючись широтою простору і мансардними вікнами, що виходять прямо в піднебесся.
Будівництво житла за проектом «Шайна»
Двокімнатний будиночок «Шайна» з просторим холом і розкішною мансардою - це чудовий вибір проекту для будівництва комфортного житла. Готовий дерев'яний зруб з послугою монтажу на попередньо підготовлений фундамент ви отримаєте за доступну вартість базової комплектації, що порахована на цій же сторінці. Після установки дерев'яного корпусу за проектом «Шайна» у вас буде повна свобода дій щодо його подальшого облаштування, створення оригінального дизайну і фарбування в бажаний колір. З прикладами гарного інтер'єру в дерев'яному зрубі виробництва «Домінант» можна ознайомитися у відповідній статті на сайті.
- Кількість поверхів
- 2
- Площа
- 126.2
- Ширина
- 8.4
- Довжина
- 7.5
- Будинки і житлові будови
- Дачі
Котеджі
Маєтки
Садиби - Кількість кімнат
- Двокімнатні будинки
- Особливості будинків
- Будинки з мансардою
Будинки зі сходами
Будинки з ґанком - Кількість поверхів споруди
- Двоповерхові будинки
- Будинки з брусу
- Будинки з клеєного брусу
Будинки з профільованого брусу
Базова комплектація:
(Що входить в ціну)
- комплект стін;
- комплект крокв;
- комплект балок перекриття;
- утеплювач міжвінцевий;
- антисептик (антисептування всього матеріалу);
- дубові нагеля;
- кріпильні материали (саморізи, усадкові болти, анкера, кріпильні пластини);
- гідроізоляція;
- вогнебіозахист (обробка деревини засобом І групи вогнезахисної ефективності)
225990 грн.
Дах (комплектність):
- Рейка 100*25мм (cосна)
- Контрейка 50*25мм (сосна)
- Металочерепиця МОНТЕРРЕЙ (Польща) 0,45мм
- Коник прямий
- Планка примикання
- Лобова (декоративна) планка
- Вітровая планка
- Яндола
- Капельник (Карнизна планка)
- Ущільнювач універсальный
- Саморізи ОС 4.8х35
- Фарба-спрей
- Гідробар'єр
- Монтаж
122780 грн.
Вікна (комплектність):
- Вікно VEKA 58, колір білий 10
- Імпости вертикальні: 1 x 102103
- Скління: СПО, 24мм, (Rсп=0.36)*
- Тип фурнітури: Activpilot поворотно-відкидна, колір білий
- Підбір спеціальний: Activ микровентиляція; Activ 2-функц. механ.
- Моск.сітка: МС 3
- Підвіконня: ВМ 110мм, колір білий
- Підвіконня: ПВ ПВХ 150, заглушки: 600мм, колір білий
- Монтаж
41800 грн.
Двері (комплектність):
- Полотно
- Коробка
- Лиштва
- Карниз
- Фарбування
- Скло
- Фурнітура
- Врізка фурнітуры
- Монтаж
112840 грн.
Фарбування (комплектність):
- Шліфування торців
- Тришарове покриття ефективним деревозахисним засобом на базі низькомолекулярної алкідної смоли методом розпилення.
Оциліндрований брус
Оциліндрований брус є найбільш оптимальним і поширеним матеріалом для будівництва дерев`яних будинків і бань, бесідок, альтанок, різноманітних садових меблів, дерев`яних конструкцій будь-яких видів. Дерев`яні будинки з оциліндрованого брусу відрізняються красою, всередині такого будинку завжди відчувається особлива затишна атмосфера.
Профільований брус
Найсучаснішим і високотехнологічним будівельним матеріалом в дерев`яному будівництві на сьогоднішній день є профільований брус. Для виробництва профільованого брусу, звичайному дерев`яному брусу на спеціальному деревообробному обладнанні надається певний профіль.
Подвійний брус з утепленням
Головна ідея застосування подвійного бруса полягала в досягненні енергоефективності житла. Над проектуванням енергозберігаючих будинків працюють провідні інженери та архітектори в різних країнах світу, запропонована фінами технологія подвійного бруса дає можливість звести до мінімуму тепловтрати будинку, а також об`єднує переваги будівництва дерев`яного будинку з економічністю споруди.
Клеєний брус
Клеєний брус принципово відрізняється від інших типів колод багатошаровістю. Така структура робить цей дерев’яний матеріал надміцним і витривалим.
Каркасні конструкції
Каркасні конструкції виготовляються на власних виробничих потужностях компанії «Домінант», з використанням сучасних деревообробних станків. Імпортне, високоточне обладнання дозволяє нам високоякісно виконувати свою роботу. Каркаси складаються зі струганих, ретельно висушених балок 150х50 мм (сосна першого сорту). Ці балки застосовуються для зовнішніх каркасів.


















