Зателефонуйте мені
Фенікс №1
Фенікс №2
Фенікс №3
Фенікс №4
Фенікс №5
Фенікс №6
Фенікс №7
Фенікс №1
Фенікс №2
Фенікс №3
Фенікс №4
Фенікс №5
Фенікс №6
Фенікс №7
Фенікс №1
Фенікс №1 Фенікс №2 Фенікс №3 Фенікс №4 Фенікс №5 Фенікс №6 Фенікс №7

Фенікс

1 532 980,00 ₴
Дерев`яний будинок з бруса з проектом 10,6х15м - «Фенікс»
Розмір брусу
  • Оциліндрований 160
  • Оциліндрований 180
  • Оциліндрований 200
  • Оциліндрований 220
  • Профільований 60
  • Профільований 150
  • Профільований 200
  • Подвійний 300
  • Клеєний 120
  • Клеєний 180
Кількість поверхів
2
Площа
218.7
Ширина
15.2
Довжина
10.6
Будинки і житлові будови
Маєтки
Садиби
Кількість кімнат
П’ятикімнатні будинки
Особливості будинків
Будинки з балконом
Будинки з мансардою
Будинки з терасою
Будинки зі сходами
Будинки з ґанком
Кількість поверхів споруди
Двоповерхові будинки
Будинки з брусу
Будинки з оциліндрованого брусу
 

(Що входить в ціну)

Що входить в базову комплектацію

  • комплект стін;
  • комплект крокв;
  • комплект балок перекриття;
  • утеплювач міжвінцевий;
  • антисептик (антисептування всього матеріалу);
  • дубові нагеля;
  • кріпильні материали (саморізи, усадкові болти, анкера, кріпильні пластини);
  • гідроізоляція;
  • вогнебіозахист (обробка деревини засобом І групи вогнезахисної ефективності)

Проект дерев’яного особняка Фенікс з оциліндрованого бруса - це чудовий варіант великого, затишного будинку, життя в якому буде наповнене теплом і комфортом. Тераси і балкончики красиво обіграли фасади особняка, масивний мансардний дах з віконцем незвичайної форми надає всьому зовнішньому вигляду презентабельності і є основою всього екстер’єру та архітектури проекту Фенікс.

Даний будинок містить два поверхи. При вході в будинок, ви опиняєтеся на невеликому ганку. Зручна тераса забезпечить вам і вашим рідним гарне проведення часу, тут буде можливість вдосталь насолодитися гарячим чаєм і свіжим повітрям. Що дуже зручно в плануванні, так це те, що на терасу можна вийти відразу із залу, не оминаючи при цьому навкруги весь будинок.

Перший поверх включає великий зал, коридор, кухню, санвузол, кабінет та сходову зону. На другому поверсі знаходяться чотири спальні кімнати, дві з яких доповнюються балконами. Така кількість спалень створює надзвичайно комфортні умови і для членів сім’ї, і для їхнії гостей, яким буде зручно залишатися в цьому гостинному домі довше. Внутрішнє планування продумано максимально комфортно, і це є ще одним вагомим аргументом, щоб замовити будівництво дерев’яного будинку по готовому проекту Фенікс dominant-wood.com.ua/uk/proekty/129-feniks.

Якщо ви бажаєте купити дерев’яний будинок, де хочете з користю проводити своє дозвілля і подарувати комфорт і гармонію для своєї сім’ї, то будинок з бруса Фенікс стане шикарним варіантом для виконання цієї прекрасної мрії.

Кількість поверхів
2
Площа
218.7
Ширина
15.2
Довжина
10.6
Будинки і житлові будови
Маєтки
Садиби
Кількість кімнат
П’ятикімнатні будинки
Особливості будинків
Будинки з балконом
Будинки з мансардою
Будинки з терасою
Будинки зі сходами
Будинки з ґанком
Кількість поверхів споруди
Двоповерхові будинки
Будинки з брусу
Будинки з оциліндрованого брусу

Базова комплектація:
(Що входить в ціну)

Що входить в базову комплектацію

  • комплект стін;
  • комплект крокв;
  • комплект балок перекриття;
  • утеплювач міжвінцевий;
  • антисептик (антисептування всього матеріалу);
  • дубові нагеля;
  • кріпильні материали (саморізи, усадкові болти, анкера, кріпильні пластини);
  • гідроізоляція;
  • вогнебіозахист (обробка деревини засобом І групи вогнезахисної ефективності)

512730 грн.

Дах (комплектність):

  • Рейка 100*25мм (cосна)
  • Контрейка 50*25мм (сосна)
  • Металочерепиця МОНТЕРРЕЙ (Польща) 0,45мм
  • Коник прямий
  • Планка примикання
  • Лобова (декоративна) планка
  • Вітровая планка
  • Яндола
  • Капельник (Карнизна планка)
  • Ущільнювач універсальный
  • Саморізи ОС 4.8х35
  • Фарба-спрей
  • Гідробар'єр
  • Монтаж

350800 грн.

Вікна (комплектність):

  • Вікно VEKA 58, колір білий 10
  • Імпости вертикальні: 1 x 102103
  • Скління: СПО, 24мм, (Rсп=0.36)*
  • Тип фурнітури: Activpilot поворотно-відкидна, колір білий
  • Підбір спеціальний: Activ микровентиляція; Activ 2-функц. механ.
  • Моск.сітка: МС 3
  • Підвіконня: ВМ 110мм, колір білий
  • Підвіконня: ПВ ПВХ 150, заглушки: 600мм, колір білий
  • Монтаж

0 грн.

Двері (комплектність):

  • Полотно
  • Коробка
  • Лиштва
  • Карниз
  • Фарбування
  • Скло
  • Фурнітура
  • Врізка фурнітуры
  • Монтаж

234360 грн.

Фарбування (комплектність):

  • Шліфування торців
  • Тришарове покриття ефективним деревозахисним засобом на базі низькомолекулярної алкідної смоли методом розпилення.

Параметри забудови

  • Кількість поверхів: 2
  • Площа: 218.7

Розмір забудови

  • Ширина: 15.2
  • Довжина: 10.6

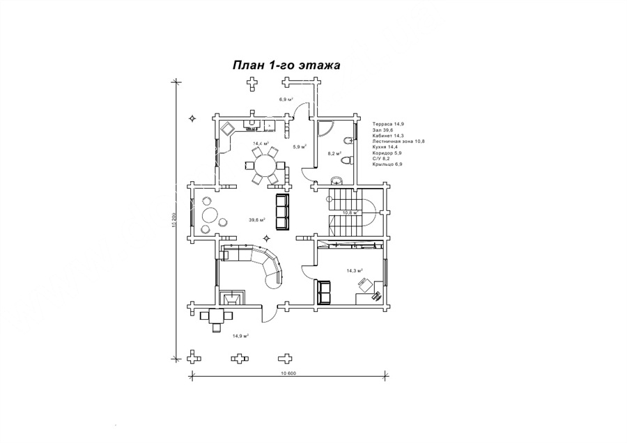
Перший поверх

зал (м²)39,6
коридор (м²)5,9
ганок (м²)6,9
кухня (м²)14,4
сходова зона (м²)10,8
офісне приміщення (м²)14,3
с/в (м²)8,2
тераса (м²)14,9

Другий поверх

балкон (м²)5,2
кімната (м²)14,4
кімната (м²)14,4
кімната (м²)14,4
кімната (м²)20,3
коридор (м²)30,1

Оциліндрований брус

Оциліндрований брус є найбільш оптимальним і поширеним матеріалом для будівництва дерев`яних будинків і бань, бесідок, альтанок, різноманітних садових меблів, дерев`яних конструкцій будь-яких видів. Дерев`яні будинки з оциліндрованого брусу відрізняються красою, всередині такого будинку завжди відчувається особлива затишна атмосфера.

Читати далі...

Профільований брус

Найсучаснішим і високотехнологічним будівельним матеріалом в дерев`яному будівництві на сьогоднішній день є профільований брус. Для виробництва профільованого брусу, звичайному дерев`яному брусу на спеціальному деревообробному обладнанні надається певний профіль.

Читати далі...

Подвійний брус з утепленням

Головна ідея застосування подвійного бруса полягала в досягненні енергоефективності житла. Над проектуванням енергозберігаючих будинків працюють провідні інженери та архітектори в різних країнах світу, запропонована фінами технологія подвійного бруса дає можливість звести до мінімуму тепловтрати будинку, а також об`єднує переваги будівництва дерев`яного будинку з економічністю споруди.

Читати далі...

Клеєний брус

Клеєний брус принципово відрізняється від інших типів колод багатошаровістю. Така структура робить цей дерев’яний матеріал надміцним і витривалим.

Читати далі...

Каркасні конструкції

Каркасні конструкції виготовляються на власних виробничих потужностях компанії «Домінант», з використанням сучасних деревообробних станків. Імпортне, високоточне обладнання дозволяє нам високоякісно виконувати свою роботу. Каркаси складаються зі струганих, ретельно висушених балок 150х50 мм (сосна першого сорту). Ці балки застосовуються для зовнішніх каркасів.

Читати далі...

Немає відгуків

Переглянуті товари

16 інших товарів в цій категорії:

Товар додано для порівняння.