Богемія
- Кількість поверхів
- 2
- Площа
- 259.1
- Ширина
- 14
- Довжина
- 11.9
- Будинки і житлові будови
- Маєтки
Садиби - Кількість кімнат
- П’ятикімнатні будинки
- Особливості будинків
- Будинки з балконом
Будинки з гаражем
Будинки з мансардою
Будинки з терасою
Будинки зі сходами - Кількість поверхів споруди
- Двоповерхові будинки
- Будинки з брусу
- Будинки з оциліндрованого брусу
(Що входить в ціну)
- комплект стін;
- комплект крокв;
- комплект балок перекриття;
- утеплювач міжвінцевий;
- антисептик (антисептування всього матеріалу);
- дубові нагеля;
- кріпильні материали (саморізи, усадкові болти, анкера, кріпильні пластини);
- гідроізоляція;
- вогнебіозахист (обробка деревини засобом І групи вогнезахисної ефективності)
Якщо ви плануєте купити будинок з оциліндрованих колод, підходящим варіантом для вас, безсумнівно, стане особняк Богемія. Оглядаючи даний проект, відразу приходить асоціації з оперними постановками. Дійсно благородний і творчий вид споруди видно неозброєним оком. Великою перевагою є те, що такий шикарний особняк ви отримуєте без зайвого клопоту і додаткових облицювань. При цьому матеріал, в якому виконаний особняк, дозволяє вам так само прикрасити і внести ще більшої оригінальності, пофарбувавши будинок в бажаний для вас колір. Це добротний двоповерховий будинок з великою терасою і гаражем. Тим самим, виключаючи необхідність побудови додаткових приміщень таких, як гараж і альтанка. Відмінний вибір для господарів, які дбають про раціональний розподіл місця на ділянці.
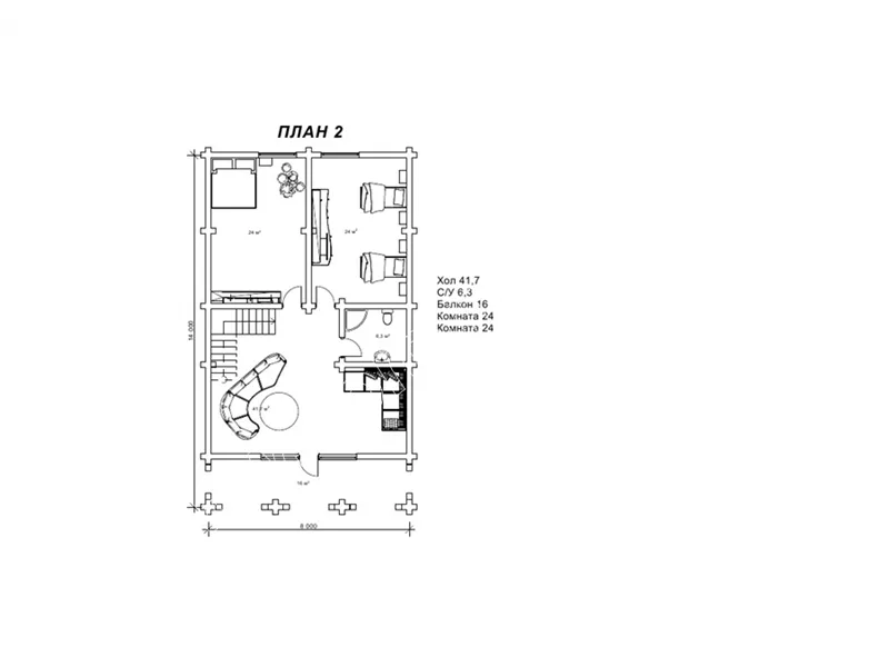
Дуже ретельно продумане планування даного особняка, який підійде для великої родини, так як володіє чотирма спальнями, створюючи особистий простір для кожного мешканця. Так само є і зал, для спільних вечорів. Ключовою особливістю проекту можна вважати наявність холу на другому поверсі. Його можна використовувати і як ігрову кімнату, і як бібліотеку, і як кінозал. Як ви бачите, компанія «Домінант» не обмежує вас стандартним плануванням. А переконатися в якості наших конструкцій, ви можете прочитавши відгуки за посиланням dominant-wood.com.ua/uk/content/5-vidguki.
Купити будинок з оциліндрованих колод з гаражем Богемія буде найкращим рішенням мудрого замовника. Вдале планування і красиві фасади допоможуть зробити заміське життя в будинку приємним і комфортним.
- Кількість поверхів
- 2
- Площа
- 259.1
- Ширина
- 14
- Довжина
- 11.9
- Будинки і житлові будови
- Маєтки
Садиби - Кількість кімнат
- П’ятикімнатні будинки
- Особливості будинків
- Будинки з балконом
Будинки з гаражем
Будинки з мансардою
Будинки з терасою
Будинки зі сходами - Кількість поверхів споруди
- Двоповерхові будинки
- Будинки з брусу
- Будинки з оциліндрованого брусу
Базова комплектація:
(Що входить в ціну)
- комплект стін;
- комплект крокв;
- комплект балок перекриття;
- утеплювач міжвінцевий;
- антисептик (антисептування всього матеріалу);
- дубові нагеля;
- кріпильні материали (саморізи, усадкові болти, анкера, кріпильні пластини);
- гідроізоляція;
- вогнебіозахист (обробка деревини засобом І групи вогнезахисної ефективності)
539460 грн.
Дах (комплектність):
- Рейка 100*25мм (cосна)
- Контрейка 50*25мм (сосна)
- Металочерепиця МОНТЕРРЕЙ (Польща) 0,45мм
- Коник прямий
- Планка примикання
- Лобова (декоративна) планка
- Вітровая планка
- Яндола
- Капельник (Карнизна планка)
- Ущільнювач універсальный
- Саморізи ОС 4.8х35
- Фарба-спрей
- Гідробар'єр
- Монтаж
403420 грн.
Вікна (комплектність):
- Вікно VEKA 58, колір білий 10
- Імпости вертикальні: 1 x 102103
- Скління: СПО, 24мм, (Rсп=0.36)*
- Тип фурнітури: Activpilot поворотно-відкидна, колір білий
- Підбір спеціальний: Activ микровентиляція; Activ 2-функц. механ.
- Моск.сітка: МС 3
- Підвіконня: ВМ 110мм, колір білий
- Підвіконня: ПВ ПВХ 150, заглушки: 600мм, колір білий
- Монтаж
438900 грн.
Двері (комплектність):
- Полотно
- Коробка
- Лиштва
- Карниз
- Фарбування
- Скло
- Фурнітура
- Врізка фурнітуры
- Монтаж
199640 грн.
Фарбування (комплектність):
- Шліфування торців
- Тришарове покриття ефективним деревозахисним засобом на базі низькомолекулярної алкідної смоли методом розпилення.
Оциліндрований брус
Оциліндрований брус є найбільш оптимальним і поширеним матеріалом для будівництва дерев`яних будинків і бань, бесідок, альтанок, різноманітних садових меблів, дерев`яних конструкцій будь-яких видів. Дерев`яні будинки з оциліндрованого брусу відрізняються красою, всередині такого будинку завжди відчувається особлива затишна атмосфера.
Профільований брус
Найсучаснішим і високотехнологічним будівельним матеріалом в дерев`яному будівництві на сьогоднішній день є профільований брус. Для виробництва профільованого брусу, звичайному дерев`яному брусу на спеціальному деревообробному обладнанні надається певний профіль.
Подвійний брус з утепленням
Головна ідея застосування подвійного бруса полягала в досягненні енергоефективності житла. Над проектуванням енергозберігаючих будинків працюють провідні інженери та архітектори в різних країнах світу, запропонована фінами технологія подвійного бруса дає можливість звести до мінімуму тепловтрати будинку, а також об`єднує переваги будівництва дерев`яного будинку з економічністю споруди.
Клеєний брус
Клеєний брус принципово відрізняється від інших типів колод багатошаровістю. Така структура робить цей дерев’яний матеріал надміцним і витривалим.
Каркасні конструкції
Каркасні конструкції виготовляються на власних виробничих потужностях компанії «Домінант», з використанням сучасних деревообробних станків. Імпортне, високоточне обладнання дозволяє нам високоякісно виконувати свою роботу. Каркаси складаються зі струганих, ретельно висушених балок 150х50 мм (сосна першого сорту). Ці балки застосовуються для зовнішніх каркасів.












