Рулада
- Кількість поверхів
- 2
- Площа
- 279.6
- Ширина
- 11.2
- Довжина
- 16.1
- Будинки і житлові будови
- Маєтки
Садиби - Кількість кімнат
- Шестикімнатні будинки
- Особливості будинків
- Будинки з балконом
Будинки з другим світлом
Будинки з мансардою
Будинки з терасою
Будинки зі сходами - Кількість поверхів споруди
- Двоповерхові будинки
- Будинки з брусу
- Будинки з оциліндрованого брусу
(Що входить в ціну)
- комплект стін;
- комплект крокв;
- комплект балок перекриття;
- утеплювач міжвінцевий;
- антисептик (антисептування всього матеріалу);
- дубові нагеля;
- кріпильні материали (саморізи, усадкові болти, анкера, кріпильні пластини);
- гідроізоляція;
- вогнебіозахист (обробка деревини засобом І групи вогнезахисної ефективності)
Презентабельний будинок Рулада є гідним варіантом заміського житла навіть для самого вимогливого замовника. Це просторий двоповерховий особняк з комфортним плануванням і «другим світлом», який створює відчуття широти простору, від чого весь інтер’єр виглядає багато і нарядно. Такі дерев’яні особняки для життя за містом завжди представляють особливий інтерес, адже тільки дерев’яні будинки здатні в повній мірі наблизити до природи і відновити сили після напруженого міського темпу життя.
Солідний особняк з бруса Рулада dominant-wood.com.ua/uk/proekty/117-ru875-lada має значні габарити споруди 11 на 16 м і містку площу 279,6 м². Для зведення такої потужної споруди потрібна дуже простора земельна ділянка, на якій добре було б ще розмістити невелику баньку dominant-wood.com.ua/uk/42-bani, гостьовий будиночок dominant-wood.com.ua/uk/32-budinochki, поставити альтанку dominant-wood.com.ua/uk/64-altanki і зручні садові меблі dominant-wood.com.ua/uk/89-sadovi-mebli. І тоді ваше житло стане справжнім родовим маєтком, де будуть відбуватися найзначніші події у вашому житті.
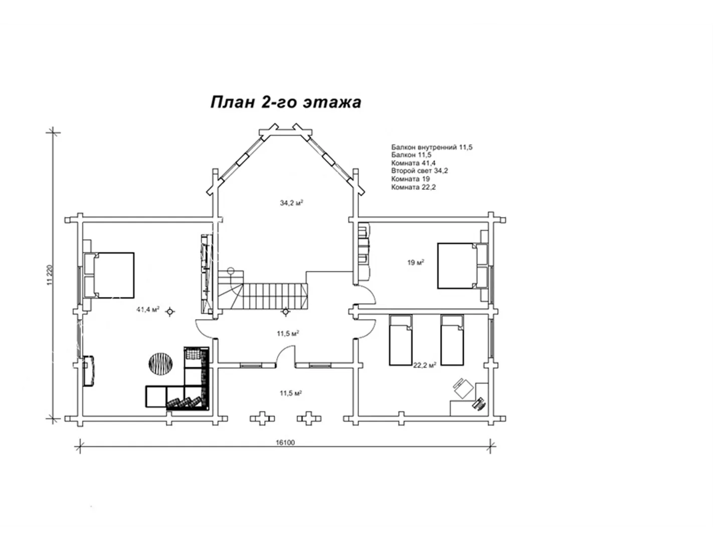
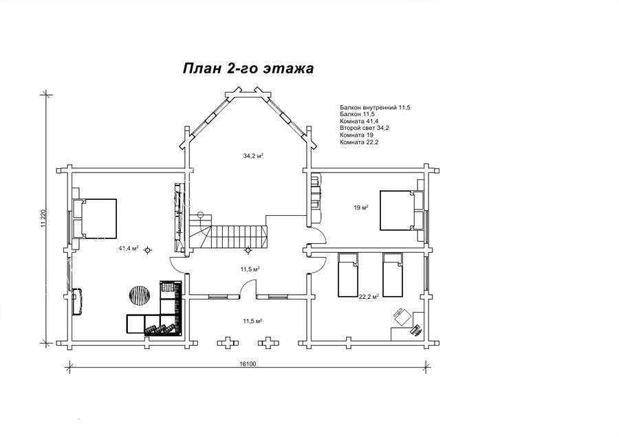
Внутрішнє планування особняка Рулада говорить про те, що власник не скупиться на організацію виняткового комфорту і захоплюючого дозвілля для себе і своїх дорогих гостей. На першому поверсі ми бачимо зал, кухню, терасу, техприміщення, санвузол, гостьову кімнату та більярдну. На другому поверсі розташовані три спальні. Окремою прикрасою всього проекту виступає наявність другого світла в особняку над вітальнею. Такий проект, безумовно, створений для людини, що живе зі смаком і вміє знаходити красу в деталях.
Проект заміського особняка Рулада від компанії «Домінант» dominant-wood.com.ua/ цілком виправдовує свою назву, виступаючи віртуозним втіленням справжньої краси і комфорту.
- Кількість поверхів
- 2
- Площа
- 279.6
- Ширина
- 11.2
- Довжина
- 16.1
- Будинки і житлові будови
- Маєтки
Садиби - Кількість кімнат
- Шестикімнатні будинки
- Особливості будинків
- Будинки з балконом
Будинки з другим світлом
Будинки з мансардою
Будинки з терасою
Будинки зі сходами - Кількість поверхів споруди
- Двоповерхові будинки
- Будинки з брусу
- Будинки з оциліндрованого брусу
Базова комплектація:
(Що входить в ціну)
- комплект стін;
- комплект крокв;
- комплект балок перекриття;
- утеплювач міжвінцевий;
- антисептик (антисептування всього матеріалу);
- дубові нагеля;
- кріпильні материали (саморізи, усадкові болти, анкера, кріпильні пластини);
- гідроізоляція;
- вогнебіозахист (обробка деревини засобом І групи вогнезахисної ефективності)
571050 грн.
Дах (комплектність):
- Рейка 100*25мм (cосна)
- Контрейка 50*25мм (сосна)
- Металочерепиця МОНТЕРРЕЙ (Польща) 0,45мм
- Коник прямий
- Планка примикання
- Лобова (декоративна) планка
- Вітровая планка
- Яндола
- Капельник (Карнизна планка)
- Ущільнювач універсальный
- Саморізи ОС 4.8х35
- Фарба-спрей
- Гідробар'єр
- Монтаж
631440 грн.
Вікна (комплектність):
- Вікно VEKA 58, колір білий 10
- Імпости вертикальні: 1 x 102103
- Скління: СПО, 24мм, (Rсп=0.36)*
- Тип фурнітури: Activpilot поворотно-відкидна, колір білий
- Підбір спеціальний: Activ микровентиляція; Activ 2-функц. механ.
- Моск.сітка: МС 3
- Підвіконня: ВМ 110мм, колір білий
- Підвіконня: ПВ ПВХ 150, заглушки: 600мм, колір білий
- Монтаж
0 грн.
Двері (комплектність):
- Полотно
- Коробка
- Лиштва
- Карниз
- Фарбування
- Скло
- Фурнітура
- Врізка фурнітуры
- Монтаж
249116 грн.
Фарбування (комплектність):
- Шліфування торців
- Тришарове покриття ефективним деревозахисним засобом на базі низькомолекулярної алкідної смоли методом розпилення.
Параметри забудови
- Кількість поверхів: 2
- Площа: 279.6
Розмір забудови
- Ширина: 11.2
- Довжина: 16.1
Перший поверх
| більярдна (м²) | 19,1 |
| вітальня (м²) | 22,2 |
| зал (м²) | 34,2 |
| кімната (м²) | 7,3 |
| коридор (м²) | 15,3 |
| кухня (м²) | 19 |
| с/в (м²) | 7,4 |
| тераса (м²) | 15,3 |
Другий поверх
| балкон (м²) | 11,5 |
| балкон (м²) | 11 |
| друге світло (м²) | 34,2 |
| кімната (м²) | 41,4 |
| кімната (м²) | 19 |
| кімната (м²) | 22,2 |
Оциліндрований брус
Оциліндрований брус є найбільш оптимальним і поширеним матеріалом для будівництва дерев`яних будинків і бань, бесідок, альтанок, різноманітних садових меблів, дерев`яних конструкцій будь-яких видів. Дерев`яні будинки з оциліндрованого брусу відрізняються красою, всередині такого будинку завжди відчувається особлива затишна атмосфера.
Профільований брус
Найсучаснішим і високотехнологічним будівельним матеріалом в дерев`яному будівництві на сьогоднішній день є профільований брус. Для виробництва профільованого брусу, звичайному дерев`яному брусу на спеціальному деревообробному обладнанні надається певний профіль.
Подвійний брус з утепленням
Головна ідея застосування подвійного бруса полягала в досягненні енергоефективності житла. Над проектуванням енергозберігаючих будинків працюють провідні інженери та архітектори в різних країнах світу, запропонована фінами технологія подвійного бруса дає можливість звести до мінімуму тепловтрати будинку, а також об`єднує переваги будівництва дерев`яного будинку з економічністю споруди.
Клеєний брус
Клеєний брус принципово відрізняється від інших типів колод багатошаровістю. Така структура робить цей дерев’яний матеріал надміцним і витривалим.
Каркасні конструкції
Каркасні конструкції виготовляються на власних виробничих потужностях компанії «Домінант», з використанням сучасних деревообробних станків. Імпортне, високоточне обладнання дозволяє нам високоякісно виконувати свою роботу. Каркаси складаються зі струганих, ретельно висушених балок 150х50 мм (сосна першого сорту). Ці балки застосовуються для зовнішніх каркасів.












