Зателефонуйте мені
Геркулес №1
Геркулес №2
Геркулес №3
Геркулес №4
Геркулес №5
Геркулес №6
Геркулес №7
Геркулес №8
Геркулес №1
Геркулес №2
Геркулес №3
Геркулес №4
Геркулес №5
Геркулес №6
Геркулес №7
Геркулес №8
Геркулес №1
Геркулес №1 Геркулес №2 Геркулес №3 Геркулес №4 Геркулес №5 Геркулес №6 Геркулес №7 Геркулес №8

Геркулес

1 045 103,00 ₴
Готові проект будинку з брусу, ціни 9х12м - «Геркулес»
Розмір брусу
  • Оциліндрований 160
  • Оциліндрований 180
  • Оциліндрований 200
  • Оциліндрований 220
  • Профільований 60
  • Профільований 150
  • Профільований 200
  • Подвійний 300
  • Клеєний 120
  • Клеєний 180
Кількість поверхів
2
Площа
205.3
Ширина
8.7
Довжина
11.7
Будинки і житлові будови
Вілли
Котеджі
Маєтки
Садиби
Кількість кімнат
Шестикімнатні будинки
Особливості будинків
Будинки з мансардою
Будинки з терасою
Будинки зі сходами
Кількість поверхів споруди
Двоповерхові будинки
Будинки з брусу
Будинки з оциліндрованого брусу
 

(Що входить в ціну)

Що входить в базову комплектацію

  • комплект стін;
  • комплект крокв;
  • комплект балок перекриття;
  • утеплювач міжвінцевий;
  • антисептик (антисептування всього матеріалу);
  • дубові нагеля;
  • кріпильні материали (саморізи, усадкові болти, анкера, кріпильні пластини);
  • гідроізоляція;
  • вогнебіозахист (обробка деревини засобом І групи вогнезахисної ефективності)

Представляємо вам проект будинку Геркулес dominant-wood.com.ua/uk/proekty/116-gerkules, вартість будівництва якого буде оптимальною для вашого бюджету. Ми працюємо без посередників, і якщо замовити у нас будинок під ключ, вартість формується тільки нами як виробником. Проект будинку, який, просто створений для постійного проживання великої родини - це, безумовно, Геркулес.

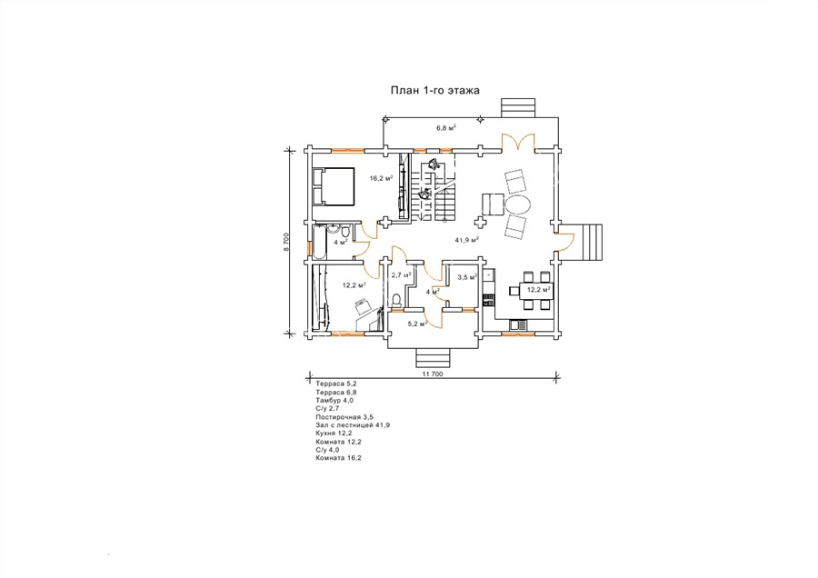
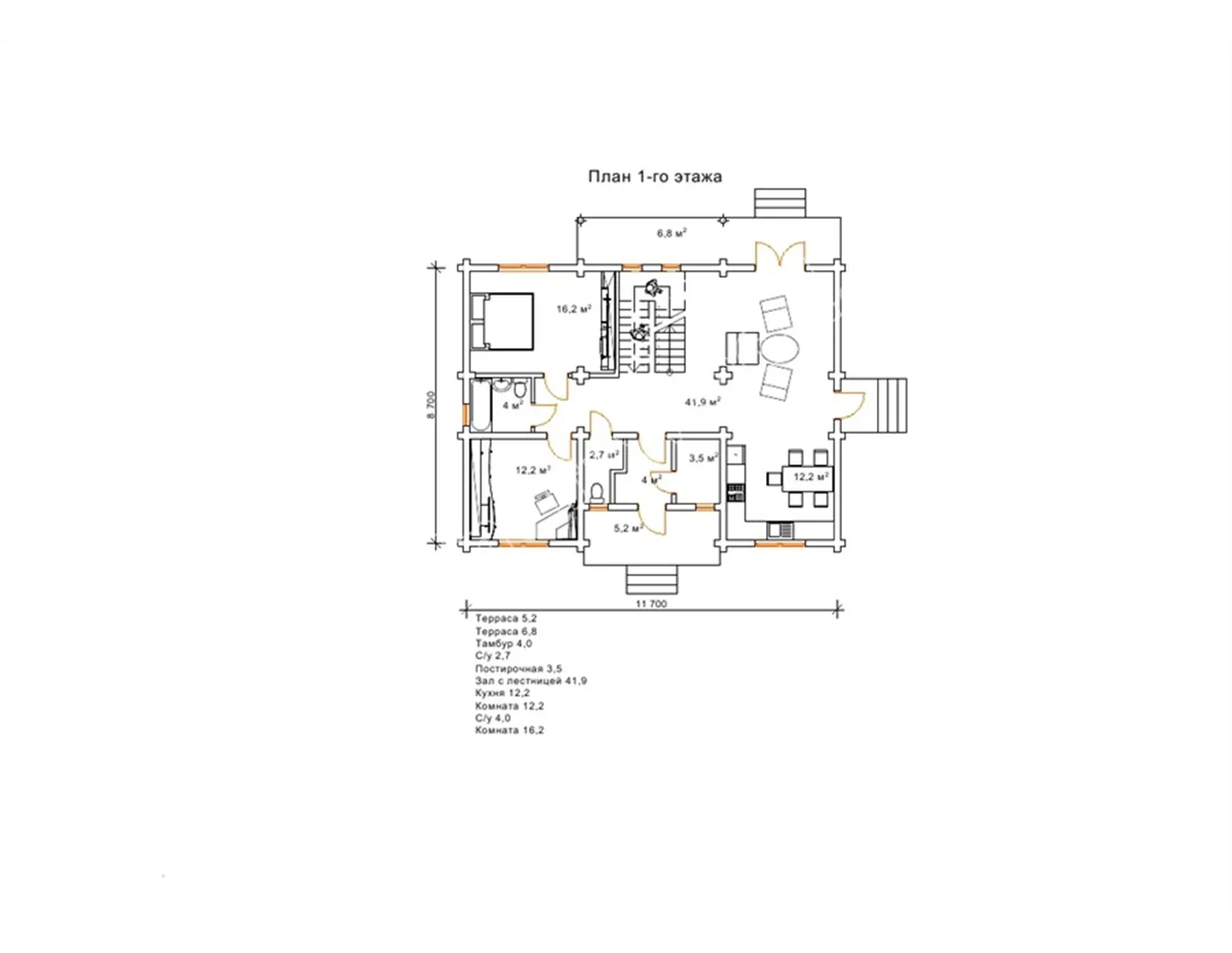
Зовні будинок виглядає досить компактно, але габаритні розміри 8,7 на 11,7 м і площа 205,3 м² говорять про те, що це дуже місткий особняк. Його внутрішнє наповнення включає зал зі сходами, кухню, дві кімнати, де можна облаштувати робочий кабінет або додаткову спальню, 2 просторі спальні з гардеробами на другому поверсі, два санвузли. Обов’язково відзначимо, що в проекті передбачено наявність такого додаткового приміщення як пральня. Саме наявність такого функціонального наповнення створює в будинку винятковий комфорт.

Особливістю проекту є три входи і мансардний другий поверх, який дає простір для втілення цікавих дизайнерських рішень в оформленні інтер’єру. А як романтично дивитися на зірки через мансардні вікна, які виходять прямо в небо! Життя в такому будинку, безсумнівно, буде наповнене не тільки комфортом, але й позитивними емоціями.

Приймаючи рішення замовити будинок за проектом Геркулес, вартість його споруди з різних видів бруса в базовій комплектації дивіться на даній сторінці поруч з візуалізацією. Тут ви можете переконатися, що ціна будівництва будинку з бруса доступна і приваблива. Замовте будівництво будинку по готовому проекту Геркулес в компанії «Домінант» dominant-wood.com.ua/uk - і у вас за прийнятну вартість з’явиться будинок, де захочеться жити і насолоджуватися кожним новим днем.

Кількість поверхів
2
Площа
205.3
Ширина
8.7
Довжина
11.7
Будинки і житлові будови
Вілли
Котеджі
Маєтки
Садиби
Кількість кімнат
Шестикімнатні будинки
Особливості будинків
Будинки з мансардою
Будинки з терасою
Будинки зі сходами
Кількість поверхів споруди
Двоповерхові будинки
Будинки з брусу
Будинки з оциліндрованого брусу

Базова комплектація:
(Що входить в ціну)

Що входить в базову комплектацію

  • комплект стін;
  • комплект крокв;
  • комплект балок перекриття;
  • утеплювач міжвінцевий;
  • антисептик (антисептування всього матеріалу);
  • дубові нагеля;
  • кріпильні материали (саморізи, усадкові болти, анкера, кріпильні пластини);
  • гідроізоляція;
  • вогнебіозахист (обробка деревини засобом І групи вогнезахисної ефективності)

415530 грн.

Дах (комплектність):

  • Рейка 100*25мм (cосна)
  • Контрейка 50*25мм (сосна)
  • Металочерепиця МОНТЕРРЕЙ (Польща) 0,45мм
  • Коник прямий
  • Планка примикання
  • Лобова (декоративна) планка
  • Вітровая планка
  • Яндола
  • Капельник (Карнизна планка)
  • Ущільнювач універсальный
  • Саморізи ОС 4.8х35
  • Фарба-спрей
  • Гідробар'єр
  • Монтаж

210480 грн.

Вікна (комплектність):

  • Вікно VEKA 58, колір білий 10
  • Імпости вертикальні: 1 x 102103
  • Скління: СПО, 24мм, (Rсп=0.36)*
  • Тип фурнітури: Activpilot поворотно-відкидна, колір білий
  • Підбір спеціальний: Activ микровентиляція; Activ 2-функц. механ.
  • Моск.сітка: МС 3
  • Підвіконня: ВМ 110мм, колір білий
  • Підвіконня: ПВ ПВХ 150, заглушки: 600мм, колір білий
  • Монтаж

0 грн.

Двері (комплектність):

  • Полотно
  • Коробка
  • Лиштва
  • Карниз
  • Фарбування
  • Скло
  • Фурнітура
  • Врізка фурнітуры
  • Монтаж

145824 грн.

Фарбування (комплектність):

  • Шліфування торців
  • Тришарове покриття ефективним деревозахисним засобом на базі низькомолекулярної алкідної смоли методом розпилення.

Параметри забудови

  • Кількість поверхів: 2
  • Площа: 205.3

Розмір забудови

  • Ширина: 8.7
  • Довжина: 11.7

Перший поверх

зал (м²)41,9
кімната (м²)3,5
кімната (м²)16,2
кімната (м²)12,2
кухня (м²)12,2
с/в (м²)2,7
с/в (м²)4
тамбур (м²)4
тераса (м²)5,2
тераса (м²)6,8

Другий поверх

гардеробна (м²)3,9
гардеробна (м²)3,9
кімната (м²)31,3
кімната (м²)31,3
с/в (м²)5,1
хол (м²)21,1

Оциліндрований брус

Оциліндрований брус є найбільш оптимальним і поширеним матеріалом для будівництва дерев`яних будинків і бань, бесідок, альтанок, різноманітних садових меблів, дерев`яних конструкцій будь-яких видів. Дерев`яні будинки з оциліндрованого брусу відрізняються красою, всередині такого будинку завжди відчувається особлива затишна атмосфера.

Читати далі...

Профільований брус

Найсучаснішим і високотехнологічним будівельним матеріалом в дерев`яному будівництві на сьогоднішній день є профільований брус. Для виробництва профільованого брусу, звичайному дерев`яному брусу на спеціальному деревообробному обладнанні надається певний профіль.

Читати далі...

Подвійний брус з утепленням

Головна ідея застосування подвійного бруса полягала в досягненні енергоефективності житла. Над проектуванням енергозберігаючих будинків працюють провідні інженери та архітектори в різних країнах світу, запропонована фінами технологія подвійного бруса дає можливість звести до мінімуму тепловтрати будинку, а також об`єднує переваги будівництва дерев`яного будинку з економічністю споруди.

Читати далі...

Клеєний брус

Клеєний брус принципово відрізняється від інших типів колод багатошаровістю. Така структура робить цей дерев’яний матеріал надміцним і витривалим.

Читати далі...

Каркасні конструкції

Каркасні конструкції виготовляються на власних виробничих потужностях компанії «Домінант», з використанням сучасних деревообробних станків. Імпортне, високоточне обладнання дозволяє нам високоякісно виконувати свою роботу. Каркаси складаються зі струганих, ретельно висушених балок 150х50 мм (сосна першого сорту). Ці балки застосовуються для зовнішніх каркасів.

Читати далі...

Немає відгуків

Переглянуті товари

16 інших товарів в цій категорії:

Товар додано для порівняння.