Олеандра
Житловий котедж з двома спальнями, 113,8 м2 - «Олеандра»
- Площа
- 113,8
- Ширина
- 8,3
- Довжина
- 17,6
- Будинки і житлові будови
- Будиночки
Дачі
Котеджі - Кількість кімнат
- Трикімнатні будинки
- Особливості будинків
- Будинки з каміном
Будинки з терасою
Будинки з ґанком - Кількість поверхів споруди
- Одноповерхові будинки
- Будинки з брусу
- Будинки з клеєного брусу
Будинки з профільованого брусу
(Що входить в ціну)
- комплект стін;
- комплект крокв;
- комплект балок перекриття;
- утеплювач міжвінцевий;
- антисептик (антисептування всього матеріалу);
- дубові нагеля;
- кріпильні материали (саморізи, усадкові болти, анкера, кріпильні пластини);
- гідроізоляція;
- вогнебіозахист (обробка деревини засобом І групи вогнезахисної ефективності)
Будівництво житлового котеджу по проекту «Олеандра»
Заміський будинок значно покращує життя будь-якого мешканця мегаполісу, чи то як місце постійного проживання, чи як місце для відпочинку та відсутності міської метушні. Якраз котедж «Олеандра» дарує можливість не лише відпочивати та приймати гостей, а й проживати в ньому цілорічно, насолоджуючись усіма перевагами планування сімейного котеджу. Ідеально стругані бруси надають будинку вишуканого, стильного вигляду, а простора літня тераса створює зручні умови для дозвілля на свіжому повітрі. Проект «Олеандра» виконується з використанням якісно просушеного брусу, що зменшує необхідність в оздоблювальних роботах. Купити будинок з сухого, профільованого брусу від компанії «Домінант» стане чудовим придбанням для найкращого облаштування заміського житла.
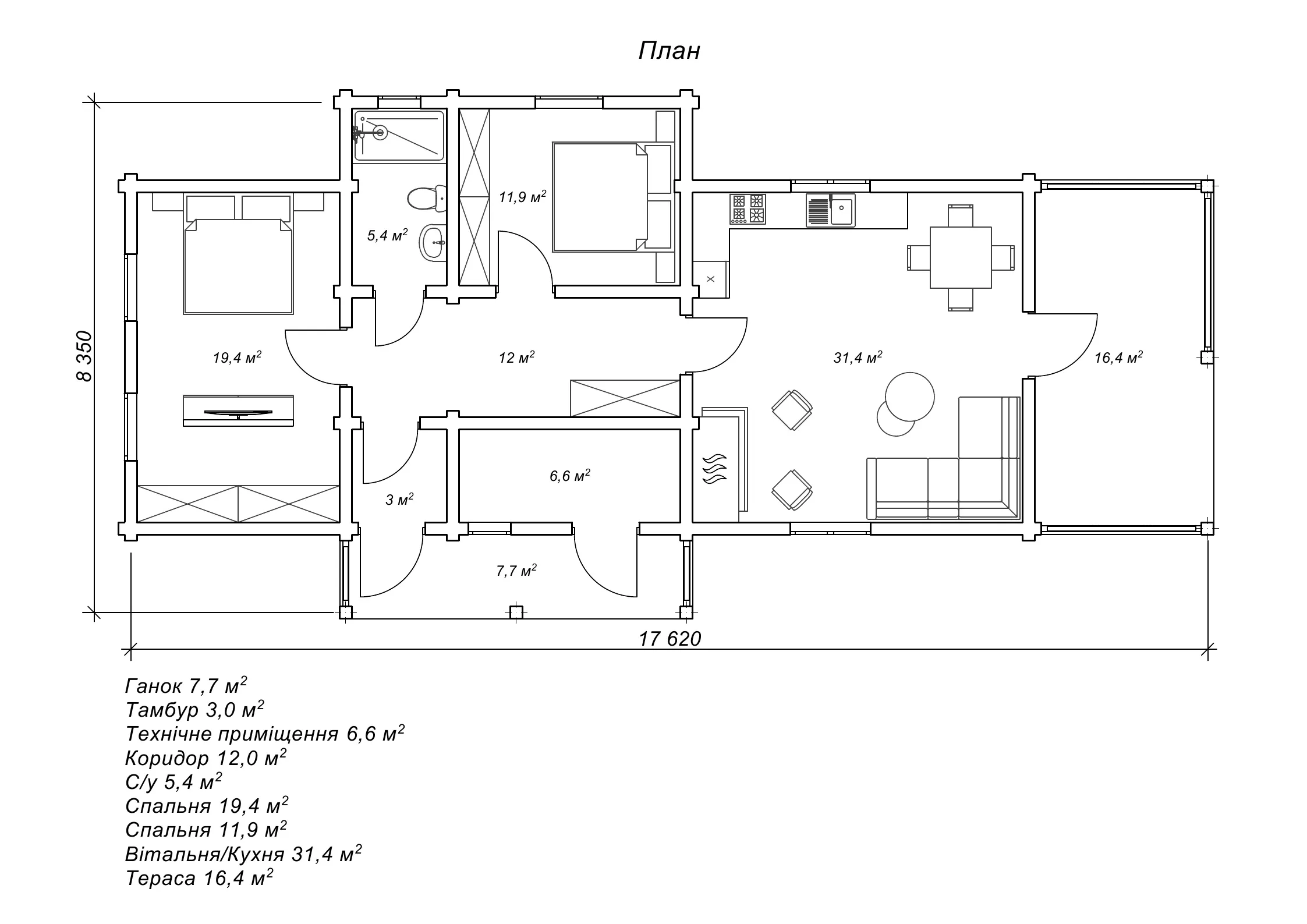
План житлового котеджу з двома спальнями, площа 113,8 м2
Площа котеджу «Олеандра» становить 113,8 м2. Це досить стандартний розмір двокімнатного будинку, який розповсюджений серед більшості власників ділянок. Але при його будівництві та закладенні фундаменту слід враховувати видовжену форму та параметри забудови 8,3 на 17,6 м. Головне, на що радимо звернути увагу при розгляді цього плану житлового котеджу, так це на дуже просторі розміри кімнат: двох спалень 19,4 м2 і 11,9 м2, а також кухні-вітальні 31,4 м2 з каміном. З кухні-вітальні пропонується вихід на терасу, яка має 16,4 м2 і дозволяє проводити вдосталь часу на свіжому повітрі. Крім цих очевидних переваг, в проекті «Олеандра» є тепловий тамбур та технічне приміщення з окремим виходом, де зручно облаштувати котельню. Взявши до уваги такі особливості одноповерхового котеджу, можна зробити висновок, що це дуже комфортабельне житло для родини з 3-4 х людей. Для отримання детальної інформації та замовлення споруди, звертайтеся до нашого відділу з обслуговування клієнтів через контакти на сайті.
- Площа
- 113,8
- Ширина
- 8,3
- Довжина
- 17,6
- Будинки і житлові будови
- Будиночки
Дачі
Котеджі - Кількість кімнат
- Трикімнатні будинки
- Особливості будинків
- Будинки з каміном
Будинки з терасою
Будинки з ґанком - Кількість поверхів споруди
- Одноповерхові будинки
- Будинки з брусу
- Будинки з клеєного брусу
Будинки з профільованого брусу
Базова комплектація:
(Що входить в ціну)
- комплект стін;
- комплект крокв;
- комплект балок перекриття;
- утеплювач міжвінцевий;
- антисептик (антисептування всього матеріалу);
- дубові нагеля;
- кріпильні материали (саморізи, усадкові болти, анкера, кріпильні пластини);
- гідроізоляція;
- вогнебіозахист (обробка деревини засобом І групи вогнезахисної ефективності)
371790 грн.
Дах (комплектність):
- Рейка 100*25мм (cосна)
- Контрейка 50*25мм (сосна)
- Металочерепиця МОНТЕРРЕЙ (Польща) 0,45мм
- Коник прямий
- Планка примикання
- Лобова (декоративна) планка
- Вітровая планка
- Яндола
- Капельник (Карнизна планка)
- Ущільнювач універсальный
- Саморізи ОС 4.8х35
- Фарба-спрей
- Гідробар'єр
- Монтаж
157860 грн.
Вікна (комплектність):
- Вікно VEKA 58, колір білий 10
- Імпости вертикальні: 1 x 102103
- Скління: СПО, 24мм, (Rсп=0.36)*
- Тип фурнітури: Activpilot поворотно-відкидна, колір білий
- Підбір спеціальний: Activ микровентиляція; Activ 2-функц. механ.
- Моск.сітка: МС 3
- Підвіконня: ВМ 110мм, колір білий
- Підвіконня: ПВ ПВХ 150, заглушки: 600мм, колір білий
- Монтаж
355300 грн.
Двері (комплектність):
- Полотно
- Коробка
- Лиштва
- Карниз
- Фарбування
- Скло
- Фурнітура
- Врізка фурнітуры
- Монтаж
108500 грн.
Фарбування (комплектність):
- Шліфування торців
- Тришарове покриття ефективним деревозахисним засобом на базі низькомолекулярної алкідної смоли методом розпилення.
Оциліндрований брус
Оциліндрований брус є найбільш оптимальним і поширеним матеріалом для будівництва дерев`яних будинків і бань, бесідок, альтанок, різноманітних садових меблів, дерев`яних конструкцій будь-яких видів. Дерев`яні будинки з оциліндрованого брусу відрізняються красою, всередині такого будинку завжди відчувається особлива затишна атмосфера.
Профільований брус
Найсучаснішим і високотехнологічним будівельним матеріалом в дерев`яному будівництві на сьогоднішній день є профільований брус. Для виробництва профільованого брусу, звичайному дерев`яному брусу на спеціальному деревообробному обладнанні надається певний профіль.
Подвійний брус з утепленням
Головна ідея застосування подвійного бруса полягала в досягненні енергоефективності житла. Над проектуванням енергозберігаючих будинків працюють провідні інженери та архітектори в різних країнах світу, запропонована фінами технологія подвійного бруса дає можливість звести до мінімуму тепловтрати будинку, а також об`єднує переваги будівництва дерев`яного будинку з економічністю споруди.
Клеєний брус
Клеєний брус принципово відрізняється від інших типів колод багатошаровістю. Така структура робить цей дерев’яний матеріал надміцним і витривалим.
Каркасні конструкції
Каркасні конструкції виготовляються на власних виробничих потужностях компанії «Домінант», з використанням сучасних деревообробних станків. Імпортне, високоточне обладнання дозволяє нам високоякісно виконувати свою роботу. Каркаси складаються зі струганих, ретельно висушених балок 150х50 мм (сосна першого сорту). Ці балки застосовуються для зовнішніх каркасів.







































