Афіна
Вілла на три спальні для комфортабельного відпочинку - «Афіна»
- Площа
- 165
- Ширина
- 9
- Довжина
- 21
- Будинки і житлові будови
- Вілли
Котеджі
Маєтки
Садиби - Кількість кімнат
- П’ятикімнатні будинки
- Особливості будинків
- Будинки з верандою
Будинки з котельнею
Будинки з навісом
Будинки з терасою - Кількість поверхів споруди
- Одноповерхові будинки
- Будинки з брусу
- Будинки з клеєного брусу
Будинки з профільованого брусу
(Що входить в ціну)
- комплект стін;
- комплект крокв;
- комплект балок перекриття;
- утеплювач міжвінцевий;
- антисептик (антисептування всього матеріалу);
- дубові нагеля;
- кріпильні материали (саморізи, усадкові болти, анкера, кріпильні пластини);
- гідроізоляція;
- вогнебіозахист (обробка деревини засобом І групи вогнезахисної ефективності)
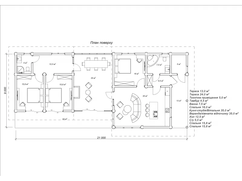
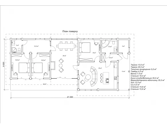
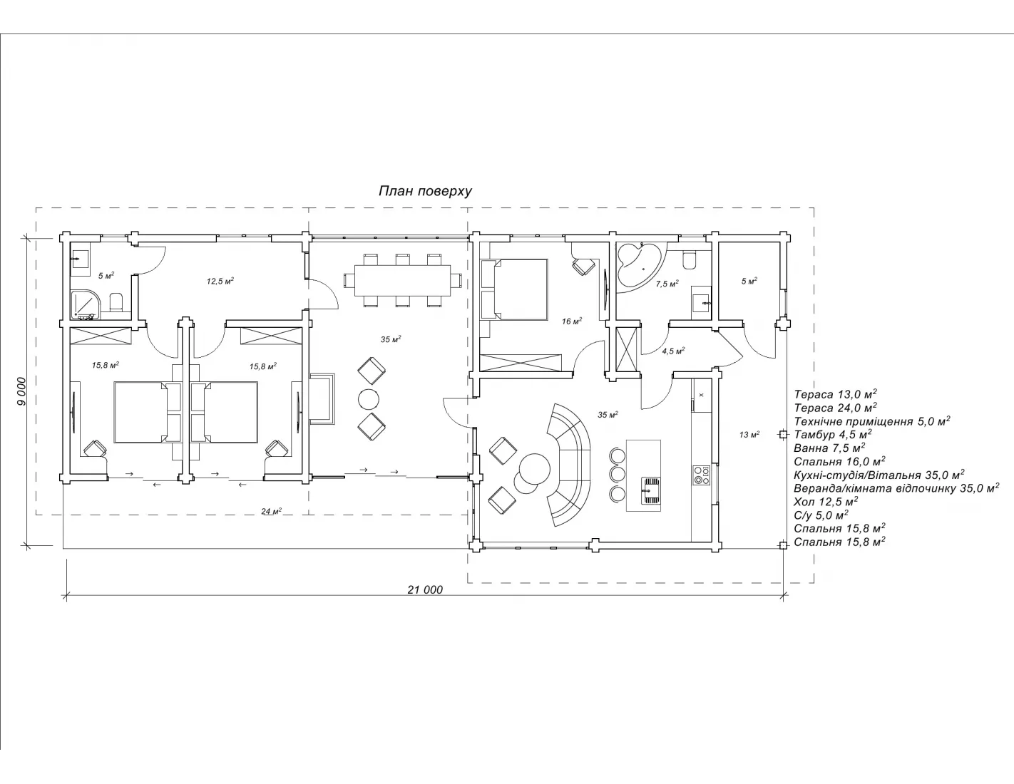
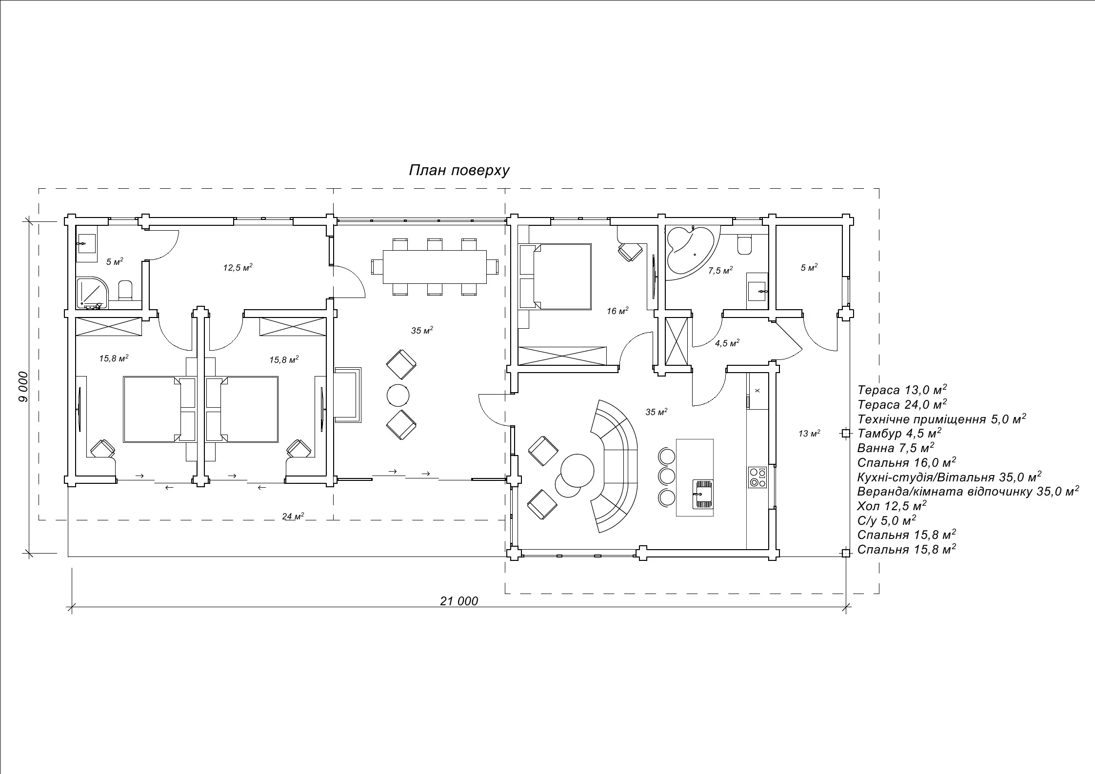
План вілли на три спальні для комфортабельного відпочинку
Проект вілли «Афіна», розроблений із сухого, висушеного бруса, обов’язково сподобається тим, хто шукає сучасне, комфортне та екологічне місце для відпочинку. У маєтку розміщено три спальні, дві ванні кімнати та студійні приміщення вітальні та веранди з функціональними зонами кухні, їдальні та зали. Дерев'яний будинок обладнаний усіма необхідними зручностями для створення найвищого рівня комфорту і вражає ультрасучасним, лаконічним дизайном. Особливу увагу привертає веранда-кімната для відпочинку, де можна насолоджуватися усамітненням або спілкуванням, спостерігаючи за панорамним видом з вікна. Одноповерхова вілла з сухого бруса «Афіна» спланована у розмірах 9 на 21 метр. Загальна площа будівлі становить 165 м2. Такий розмір споруди передбачає наявність просторої території. Якщо ваша земельна ділянка обмежена розмірами, рекомендуємо розглянути двоповерхові котеджі.
Будівництво вілли «Афіна» на три спальні для комфортабельного відпочинку
Вілла «Афіна» з сухого бруса налічує безліч переваг, починаючи від використання безусадкового соснового бруса для побудови стін і закінчуючи великою кількістю кімнат. Ті, хто вирішить замовити будівництво цієї дерев'яної вілли, матимуть можливість насолоджуватися умовами найвищого комфорту та природним мікрокліматом всередині дерев'яної споруди. Цей будинок ідеально підходить для того, щоб проводити більше часу на свіжому повітрі та захоплюватися прекрасною природою, відпочиваючи на просторій, заскленій веранді. Тут можна відчути всі переваги розкішного життя в затишному середовищі та максимально натуральних інтер'єрах, які підкреслюють унікальну красу справжнього дерева. Звертайтеся за контактами нашого сайту та робіть замовлення на будівництво проекту «Афіна» за розумною ціною від виробника дерев'яних конструкцій "Домінант"!
- Площа
- 165
- Ширина
- 9
- Довжина
- 21
- Будинки і житлові будови
- Вілли
Котеджі
Маєтки
Садиби - Кількість кімнат
- П’ятикімнатні будинки
- Особливості будинків
- Будинки з верандою
Будинки з котельнею
Будинки з навісом
Будинки з терасою - Кількість поверхів споруди
- Одноповерхові будинки
- Будинки з брусу
- Будинки з клеєного брусу
Будинки з профільованого брусу
Базова комплектація:
(Що входить в ціну)
- комплект стін;
- комплект крокв;
- комплект балок перекриття;
- утеплювач міжвінцевий;
- антисептик (антисептування всього матеріалу);
- дубові нагеля;
- кріпильні материали (саморізи, усадкові болти, анкера, кріпильні пластини);
- гідроізоляція;
- вогнебіозахист (обробка деревини засобом І групи вогнезахисної ефективності)
549180 грн.
Дах (комплектність):
- Рейка 100*25мм (cосна)
- Контрейка 50*25мм (сосна)
- Металочерепиця МОНТЕРРЕЙ (Польща) 0,45мм
- Коник прямий
- Планка примикання
- Лобова (декоративна) планка
- Вітровая планка
- Яндола
- Капельник (Карнизна планка)
- Ущільнювач універсальный
- Саморізи ОС 4.8х35
- Фарба-спрей
- Гідробар'єр
- Монтаж
491120 грн.
Вікна (комплектність):
- Вікно VEKA 58, колір білий 10
- Імпости вертикальні: 1 x 102103
- Скління: СПО, 24мм, (Rсп=0.36)*
- Тип фурнітури: Activpilot поворотно-відкидна, колір білий
- Підбір спеціальний: Activ микровентиляція; Activ 2-функц. механ.
- Моск.сітка: МС 3
- Підвіконня: ВМ 110мм, колір білий
- Підвіконня: ПВ ПВХ 150, заглушки: 600мм, колір білий
- Монтаж
940500 грн.
Двері (комплектність):
- Полотно
- Коробка
- Лиштва
- Карниз
- Фарбування
- Скло
- Фурнітура
- Врізка фурнітуры
- Монтаж
107632 грн.
Фарбування (комплектність):
- Шліфування торців
- Тришарове покриття ефективним деревозахисним засобом на базі низькомолекулярної алкідної смоли методом розпилення.
Параметри забудови
- Кількість поверхів: 1
- Площа: 165
Розмір забудови
- Ширина: 9
- Довжина: 21
Перший поверх
| тераса(м²) | 13,0 |
| тераса (м²) | 24,0 |
| технічне приміщення (м²) | 5,0 |
| тамбур (м²) | 4,5 |
| ванна (м²) | 7,5 |
| спальня (м²) | 16,0 |
| кухня-студія / вітальня (м²) | 35,0 |
| веранда / кімната відпочинку (м²) | 35,0 |
| хол (м²) | 12,5 |
| санвузол (м²) | 5,0 |
| спальня (м²) | 15,8 |
| спальня (м²) | 15,8 |
Оциліндрований брус
Оциліндрований брус є найбільш оптимальним і поширеним матеріалом для будівництва дерев`яних будинків і бань, бесідок, альтанок, різноманітних садових меблів, дерев`яних конструкцій будь-яких видів. Дерев`яні будинки з оциліндрованого брусу відрізняються красою, всередині такого будинку завжди відчувається особлива затишна атмосфера.
Профільований брус
Найсучаснішим і високотехнологічним будівельним матеріалом в дерев`яному будівництві на сьогоднішній день є профільований брус. Для виробництва профільованого брусу, звичайному дерев`яному брусу на спеціальному деревообробному обладнанні надається певний профіль.
Подвійний брус з утепленням
Головна ідея застосування подвійного бруса полягала в досягненні енергоефективності житла. Над проектуванням енергозберігаючих будинків працюють провідні інженери та архітектори в різних країнах світу, запропонована фінами технологія подвійного бруса дає можливість звести до мінімуму тепловтрати будинку, а також об`єднує переваги будівництва дерев`яного будинку з економічністю споруди.
Клеєний брус
Клеєний брус принципово відрізняється від інших типів колод багатошаровістю. Така структура робить цей дерев’яний матеріал надміцним і витривалим.
Каркасні конструкції
Каркасні конструкції виготовляються на власних виробничих потужностях компанії «Домінант», з використанням сучасних деревообробних станків. Імпортне, високоточне обладнання дозволяє нам високоякісно виконувати свою роботу. Каркаси складаються зі струганих, ретельно висушених балок 150х50 мм (сосна першого сорту). Ці балки застосовуються для зовнішніх каркасів.
















