Ейва
- Площа
- 234
- Ширина
- 13
- Довжина
- 18
- Будинки і житлові будови
- Вілли
Котеджі
Маєтки
Садиби - Кількість кімнат
- Чотирикімнатні будинки
- Особливості будинків
- Будинки з банею
Будинки з терасою - Кількість поверхів споруди
- Одноповерхові будинки
- Будинки з брусу
- Будинки з клеєного брусу
Будинки з профільованого брусу
(Що входить в ціну)
- комплект стін;
- комплект крокв;
- комплект балок перекриття;
- утеплювач міжвінцевий;
- антисептик (антисептування всього матеріалу);
- дубові нагеля;
- кріпильні материали (саморізи, усадкові болти, анкера, кріпильні пластини);
- гідроізоляція;
- вогнебіозахист (обробка деревини засобом І групи вогнезахисної ефективності)
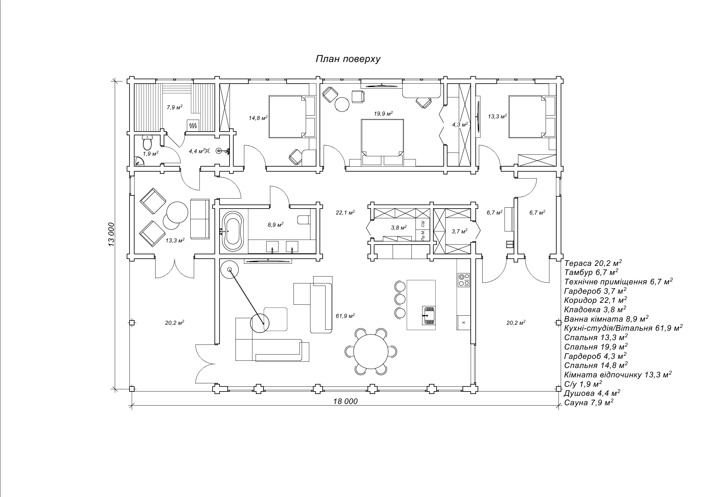
Будівництво трикімнатного котеджу «Ейва» з лазнею, 234 м2
Комфортабельний і просторий будинок з вишуканим, сучасним дизайном – це проект «Ейва». Стильний маєток з високими вікнами та затишними терасами створений для будівництва у мальовничому куточку природи. Сухий, профільований брус, з якого зроблений будинок, утворює найбільш сприятливі, екологічні умови проживання. Корисні соснові смоли, що містяться всередині брусів, сприятимуть природному очищенню повітря від шкідливих речовин. Тому такий дерев’яний будинок з соснового бруса відрізнятиметься не тільки розкішним і натуральним зовнішнім виглядом, але й цілющими властивостями. Крізь величезні вікна з будинку відкривається розкішний вид на вулицю. Завдяки можливості панорамного огляду, тут навіть всередині максимально відчувається присутність на природі. А затишні тераси дозволяють проводити якомога більше часу на свіжому повітрі, надихаючись краєвидами. Поруч з будівлею передбачені парковочні місця, що є ще однією перевагою проекту «Ейва». Внутрішнє планування подарує не тільки домашній комфорт за рахунок наявності трьох житлових кімнат, але й оздоровлення завдяки наявності лазні.
Проект трикімнатного котеджу «Ейва» з лазнею
Параметри забудови складають 13 на 18 м, тому обираючи проект «Ейва», потрібно подбати про наявність достатньо великої заміської ділянки. Зато на площі 234 м2 проект передбачає максимум комфорту для господарів, їхніх дітей, а також гостей. Три спальні кімнати на 13, 15 і 20 м2 створюють чудові умови для кожного з мешканців котеджу, надаючи всім достатнього особистого простору. Величезна зала на 62 м2 з різними функціональними зонами і високими вікнами являє собою розкішне місце для сімейних зустрічей і прийому гостей.
Окремим блоком в середині будови передбачене планування лазні з просторою парилкою 8 м2, душевою, санвузлом і навіть передлазневим приміщенням з окремим виходом на одну з терас. Такий чудовий заміський будинок з лазнею відповідає всім запитом сучасної людини по комфортному проживанню і відпочинку. Звертайтесь до нас за втіленням маєтку «Ейва» у життя, і у вас з’явиться справжнє місце сили і комфорту, де кожен день буде сповнений затишком і високою естетикою природних матеріалів.
- Площа
- 234
- Ширина
- 13
- Довжина
- 18
- Будинки і житлові будови
- Вілли
Котеджі
Маєтки
Садиби - Кількість кімнат
- Чотирикімнатні будинки
- Особливості будинків
- Будинки з банею
Будинки з терасою - Кількість поверхів споруди
- Одноповерхові будинки
- Будинки з брусу
- Будинки з клеєного брусу
Будинки з профільованого брусу
Базова комплектація:
(Що входить в ціну)
- комплект стін;
- комплект крокв;
- комплект балок перекриття;
- утеплювач міжвінцевий;
- антисептик (антисептування всього матеріалу);
- дубові нагеля;
- кріпильні материали (саморізи, усадкові болти, анкера, кріпильні пластини);
- гідроізоляція;
- вогнебіозахист (обробка деревини засобом І групи вогнезахисної ефективності)
799470 грн.
Дах (комплектність):
- Рейка 100*25мм (cосна)
- Контрейка 50*25мм (сосна)
- Металочерепиця МОНТЕРРЕЙ (Польща) 0,45мм
- Коник прямий
- Планка примикання
- Лобова (декоративна) планка
- Вітровая планка
- Яндола
- Капельник (Карнизна планка)
- Ущільнювач універсальный
- Саморізи ОС 4.8х35
- Фарба-спрей
- Гідробар'єр
- Монтаж
859460 грн.
Вікна (комплектність):
- Вікно VEKA 58, колір білий 10
- Імпости вертикальні: 1 x 102103
- Скління: СПО, 24мм, (Rсп=0.36)*
- Тип фурнітури: Activpilot поворотно-відкидна, колір білий
- Підбір спеціальний: Activ микровентиляція; Activ 2-функц. механ.
- Моск.сітка: МС 3
- Підвіконня: ВМ 110мм, колір білий
- Підвіконня: ПВ ПВХ 150, заглушки: 600мм, колір білий
- Монтаж
773300 грн.
Двері (комплектність):
- Полотно
- Коробка
- Лиштва
- Карниз
- Фарбування
- Скло
- Фурнітура
- Врізка фурнітуры
- Монтаж
160580 грн.
Фарбування (комплектність):
- Шліфування торців
- Тришарове покриття ефективним деревозахисним засобом на базі низькомолекулярної алкідної смоли методом розпилення.
Параметри забудови
- Кількість поверхів: 1
- Площа: 234
Розмір забудови
- Ширина: 13
- Довжина: 18
Перший поверх
| тераса(м²) | 20,2 |
| тамбур (м²) | 6,7 |
| технічне приміщення (м²) | 6,7 |
| гардероб (м²) | 3,7 |
| коридор (м²) | 22,1 |
| кладова (м²) | 3,8 |
| ванна (м²) | 8,9 |
| кухня-студія / вітальня (м²) | 61,9 |
| спальня (м²) | 13,3 |
| спальня (м²) | 19,9 |
| гардероб (м²) | 4,3 |
| спальня (м²) | 14,8 |
| кімната відпочинку (м²) | 13,3 |
| санвузол (м²) | 1,9 |
| душова (м²) | 4,4 |
| сауна (м²) | 7,9 |
Оциліндрований брус
Оциліндрований брус є найбільш оптимальним і поширеним матеріалом для будівництва дерев`яних будинків і бань, бесідок, альтанок, різноманітних садових меблів, дерев`яних конструкцій будь-яких видів. Дерев`яні будинки з оциліндрованого брусу відрізняються красою, всередині такого будинку завжди відчувається особлива затишна атмосфера.
Профільований брус
Найсучаснішим і високотехнологічним будівельним матеріалом в дерев`яному будівництві на сьогоднішній день є профільований брус. Для виробництва профільованого брусу, звичайному дерев`яному брусу на спеціальному деревообробному обладнанні надається певний профіль.
Подвійний брус з утепленням
Головна ідея застосування подвійного бруса полягала в досягненні енергоефективності житла. Над проектуванням енергозберігаючих будинків працюють провідні інженери та архітектори в різних країнах світу, запропонована фінами технологія подвійного бруса дає можливість звести до мінімуму тепловтрати будинку, а також об`єднує переваги будівництва дерев`яного будинку з економічністю споруди.
Клеєний брус
Клеєний брус принципово відрізняється від інших типів колод багатошаровістю. Така структура робить цей дерев’яний матеріал надміцним і витривалим.
Каркасні конструкції
Каркасні конструкції виготовляються на власних виробничих потужностях компанії «Домінант», з використанням сучасних деревообробних станків. Імпортне, високоточне обладнання дозволяє нам високоякісно виконувати свою роботу. Каркаси складаються зі струганих, ретельно висушених балок 150х50 мм (сосна першого сорту). Ці балки застосовуються для зовнішніх каркасів.

















