Оніст
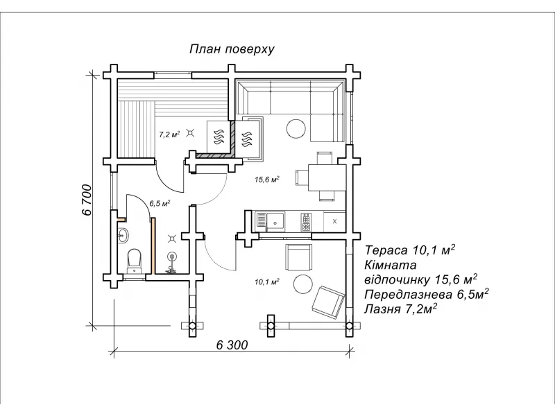
- Площа
- 39,4
- Ширина
- 6,7
- Довжина
- 6,3
- Садові та господарські споруди
- Бані
Бані з оциліндрованого брусу
(Що входить в ціну)
- комплект стін;
- комплект крокв;
- комплект балок перекриття;
- утеплювач міжвінцевий;
- антисептик (антисептування всього матеріалу);
- дубові нагеля;
- кріпильні материали (саморізи, усадкові болти, анкера, кріпильні пластини);
- гідроізоляція;
- вогнебіозахист (обробка деревини засобом І групи вогнезахисної ефективності)
Будівництво зрубу сучасної лазні з каміном
Компактний проект лазні «Оніст» відповідає всім сучасним вимогам для повноцінного банного відпочинку. Внутрішнє просторове розташування лазні включає тамбур, вітальню з каміном і кухонною зоною, парну кімнату, приміщення для миття і санвузол. Фасад прикрашає літня веранда з атмосферним ґаночком. Цей проект ідеально підходить для тих, хто шукає економічний, але сучасний варіант лазні підвищеного комфорту для своєї заміської ділянки. Класична лазня-зруб, здавалося б, створена всупереч інноваціям, але коли ви поєднуєте природний матеріал із сучасним устаткуванням всередині, отримується неперевершений комфорт. Натуральна деревина створює унікальну атмосферу тепла та комфорту, що викликає відчуття природного затишкуі. І в той же час можливості сучасного устаткування тут безмежні. Найсучасніші системи опалення, кондиціювання повітря та парилка можуть бути легко вбудовані всередині зрубу, забезпечуючи господарям доступ до парних процедур у будь-яку пору року.
Сучасна лазня-зруб «Оніст», площа 39,4 м²
Завдяки своїй компактній площі 39,4 м2, лазня «Оніст» легко впишеться у невеличку присадибну ділянку. А завдяки великому розміру парилки і наявності каміну принесе безмежну радість гостям і власникам протягом численних років. Наш унікальний проект бані «Оніст» має неоспориму перевагу - можливість реалізації у вигляді затишного дачного будиночка із власною лазнею. Або ж дуже вигідним цей проект стане у якості комерційного об’єкту. Вартість втілення проекту «Оніст» надається поряд з детальним плануванням і візуалізацією дизайна. Сама ідея спорудження лазні може викликати багато питань і труднощів. Проте компанія «Домінант» змінює уявлення про будівництво лазень, втілюючи сучасне планування у класичному виконанні. Ми завжди готові втілити ваші мрії у життя! Впевніться в цьому, звернувшись до наших менеджерів прямо зараз.
- Площа
- 39,4
- Ширина
- 6,7
- Довжина
- 6,3
- Садові та господарські споруди
- Бані
Бані з оциліндрованого брусу
Базова комплектація:
(Що входить в ціну)
- комплект стін;
- комплект крокв;
- комплект балок перекриття;
- утеплювач міжвінцевий;
- антисептик (антисептування всього матеріалу);
- дубові нагеля;
- кріпильні материали (саморізи, усадкові болти, анкера, кріпильні пластини);
- гідроізоляція;
- вогнебіозахист (обробка деревини засобом І групи вогнезахисної ефективності)
143370 грн.
Дах (комплектність):
- Рейка 100*25мм (cосна)
- Контрейка 50*25мм (сосна)
- Металочерепиця МОНТЕРРЕЙ (Польща) 0,45мм
- Коник прямий
- Планка примикання
- Лобова (декоративна) планка
- Вітровая планка
- Яндола
- Капельник (Карнизна планка)
- Ущільнювач універсальный
- Саморізи ОС 4.8х35
- Фарба-спрей
- Гідробар'єр
- Монтаж
87700 грн.
Вікна (комплектність):
- Вікно VEKA 58, колір білий 10
- Імпости вертикальні: 1 x 102103
- Скління: СПО, 24мм, (Rсп=0.36)*
- Тип фурнітури: Activpilot поворотно-відкидна, колір білий
- Підбір спеціальний: Activ микровентиляція; Activ 2-функц. механ.
- Моск.сітка: МС 3
- Підвіконня: ВМ 110мм, колір білий
- Підвіконня: ПВ ПВХ 150, заглушки: 600мм, колір білий
- Монтаж
167200 грн.
Двері (комплектність):
- Полотно
- Коробка
- Лиштва
- Карниз
- Фарбування
- Скло
- Фурнітура
- Врізка фурнітуры
- Монтаж
67704 грн.
Фарбування (комплектність):
- Шліфування торців
- Тришарове покриття ефективним деревозахисним засобом на базі низькомолекулярної алкідної смоли методом розпилення.
Оциліндрований брус
Оциліндрований брус є найбільш оптимальним і поширеним матеріалом для будівництва дерев`яних будинків і бань, бесідок, альтанок, різноманітних садових меблів, дерев`яних конструкцій будь-яких видів. Дерев`яні будинки з оциліндрованого брусу відрізняються красою, всередині такого будинку завжди відчувається особлива затишна атмосфера.
Профільований брус
Найсучаснішим і високотехнологічним будівельним матеріалом в дерев`яному будівництві на сьогоднішній день є профільований брус. Для виробництва профільованого брусу, звичайному дерев`яному брусу на спеціальному деревообробному обладнанні надається певний профіль.
Подвійний брус з утепленням
Головна ідея застосування подвійного бруса полягала в досягненні енергоефективності житла. Над проектуванням енергозберігаючих будинків працюють провідні інженери та архітектори в різних країнах світу, запропонована фінами технологія подвійного бруса дає можливість звести до мінімуму тепловтрати будинку, а також об`єднує переваги будівництва дерев`яного будинку з економічністю споруди.
Клеєний брус
Клеєний брус принципово відрізняється від інших типів колод багатошаровістю. Така структура робить цей дерев’яний матеріал надміцним і витривалим.
Каркасні конструкції
Каркасні конструкції виготовляються на власних виробничих потужностях компанії «Домінант», з використанням сучасних деревообробних станків. Імпортне, високоточне обладнання дозволяє нам високоякісно виконувати свою роботу. Каркаси складаються зі струганих, ретельно висушених балок 150х50 мм (сосна першого сорту). Ці балки застосовуються для зовнішніх каркасів.

















