Шотен
- Площа
- 449,8
- Ширина
- 9,3
- Довжина
- 26,8
- Будинки з брусу
- Будинки з клеєного брусу
Будинки з профільованого брусу - Комерційні будівлі
- Бази відпочинку
Готелі
(Що входить в ціну)
- комплект стін;
- комплект крокв;
- комплект балок перекриття;
- утеплювач міжвінцевий;
- антисептик (антисептування всього матеріалу);
- дубові нагеля;
- кріпильні материали (саморізи, усадкові болти, анкера, кріпильні пластини);
- гідроізоляція;
- вогнебіозахист (обробка деревини засобом І групи вогнезахисної ефективності)
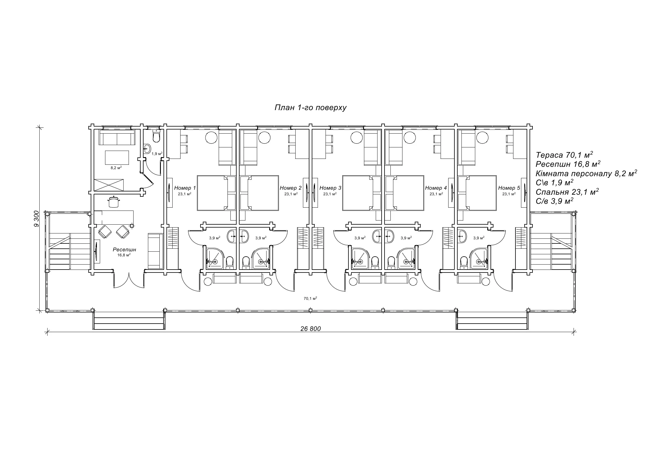
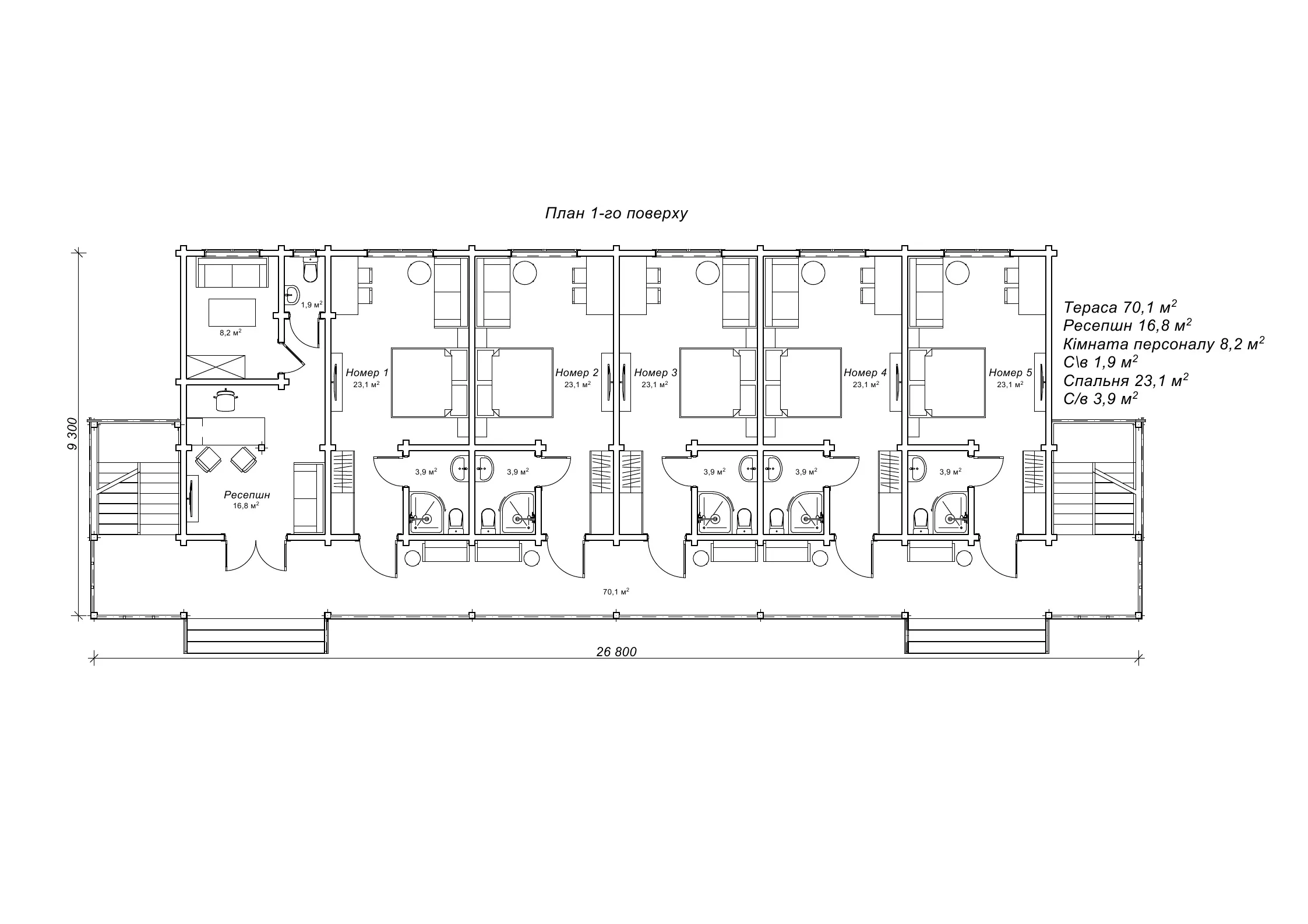
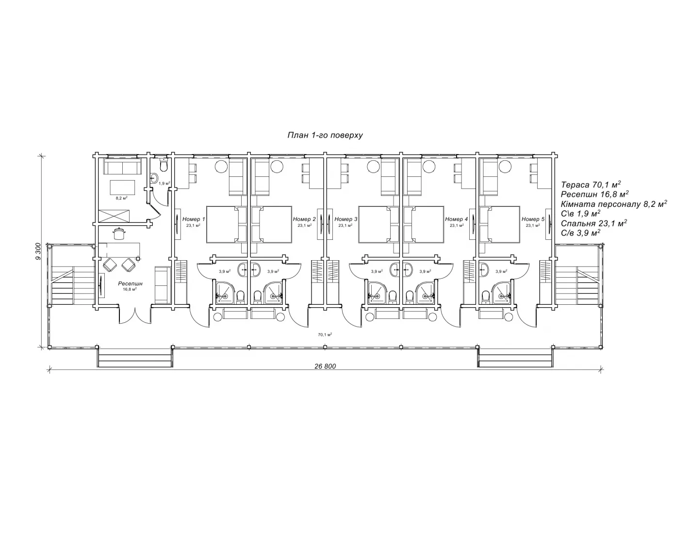
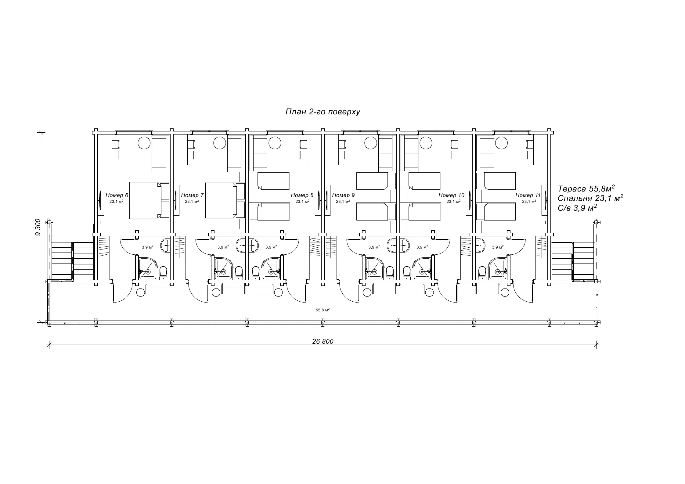
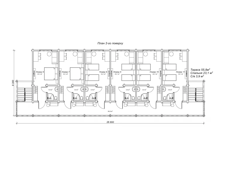
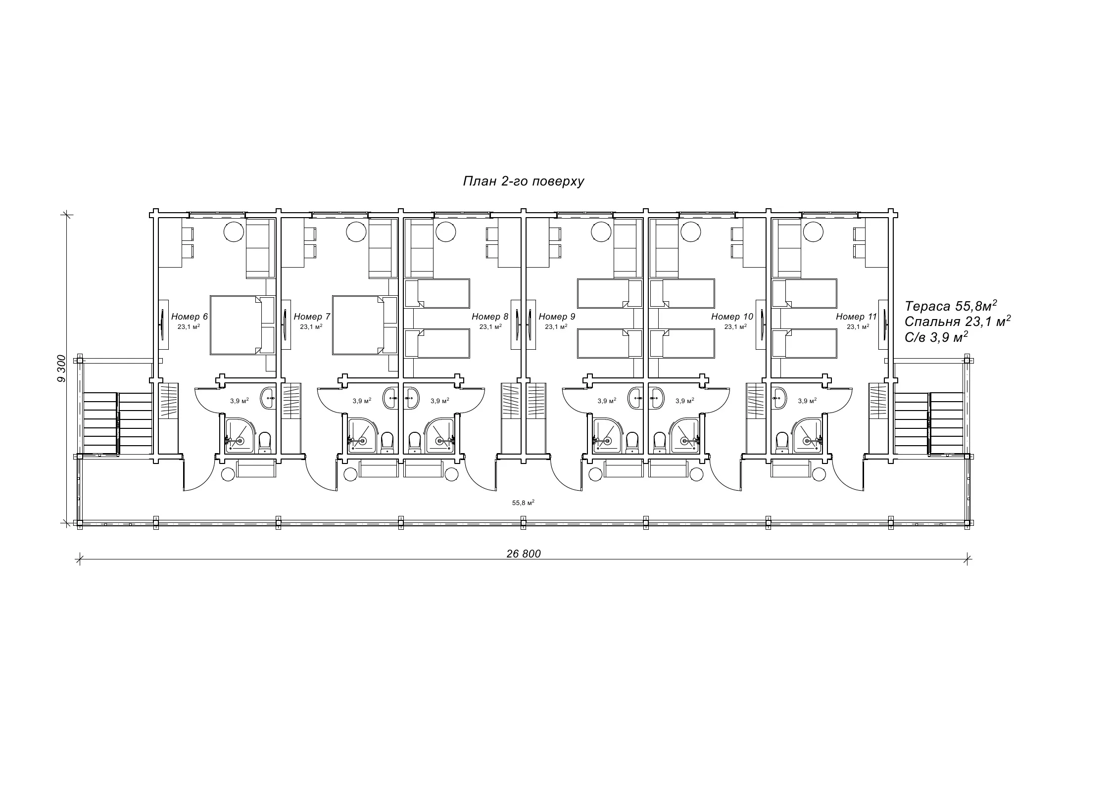
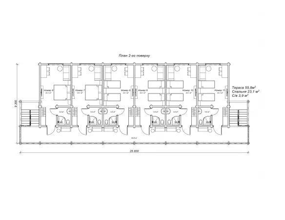
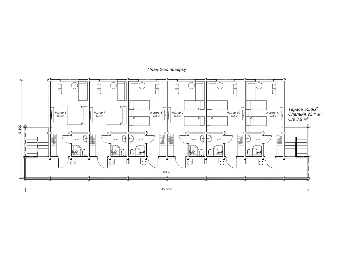
Дерев'яний готель «Шотен», площа 449,8 м²
Проект «Шотен» - це комфортабельний дерев'яний готель на 11 номерів, кожен з яких має власний санвузол. Цей готель стане окрасою морського узбережжя або затишним куточком серед гірських ландшафтів, де відвідувачі зможуть насолодитися спокоєм та відпочинком від міської метушні. Розміри забудови проекту «Шотен» становлять 9,3 на 26,8 м, загальна площа будови дорівнює 449,8 м², кількість поверхів – 2. Розмір кожного номера зручний та просторий і складає 27 м2. Це дозволяє гостям почувати себе вільно, надає можливість комфортного усамітнення та покращує їхній відпочинок. Ті, хто бажає спілкуватися, зможуть вийти на широку загальну терасу і провести приємний час на свіжому повітрі.
У готелі немає кухонно-ресторанної зони, але її можна розташувати поряд у вигляді затишного ресторанчику. Проект «Шотен» може стати частиною готельно-ресторанного комплексу і обов’язково ушляхетнить будь яку територію вишуканістю та лаконічною красою натурального, соснового зрубу.
Будівництво дерев'яного двоповерхового готелю 9,3 на 26,8 м
Готель «Шотен» - це прекрасне рішення для відпочинку на природі. Він приваблює унікальністю та самобутністю матеріалу виконання - натурального дерева. Фахівці «Домінант» з радістю реалізують цей проект за мінімальні терміни, з урахуванням вашого бачення і побажань щодо проекту. Відповідно до нашої філософії, ми працюємо з найвищою якістю і максимальною користю для клієнтів. За рахунок будівництва дерев’яного, двоповерхового готелю «Шотен» ви отримаєте високоякісний комерційний об'єкт, який буде приваблювати гостей і приносити вам дохід. Готель «Шотен» стане відмінним місцем для відпочинку, де можна буде отримати ідеальний релакс, насолодитися мальовничими краєвидами природи і зарядитися позитивною енергією.
- Площа
- 449,8
- Ширина
- 9,3
- Довжина
- 26,8
- Будинки з брусу
- Будинки з клеєного брусу
Будинки з профільованого брусу - Комерційні будівлі
- Бази відпочинку
Готелі
Базова комплектація:
(Що входить в ціну)
- комплект стін;
- комплект крокв;
- комплект балок перекриття;
- утеплювач міжвінцевий;
- антисептик (антисептування всього матеріалу);
- дубові нагеля;
- кріпильні материали (саморізи, усадкові болти, анкера, кріпильні пластини);
- гідроізоляція;
- вогнебіозахист (обробка деревини засобом І групи вогнезахисної ефективності)
755730 грн.
Дах (комплектність):
- Рейка 100*25мм (cосна)
- Контрейка 50*25мм (сосна)
- Металочерепиця МОНТЕРРЕЙ (Польща) 0,45мм
- Коник прямий
- Планка примикання
- Лобова (декоративна) планка
- Вітровая планка
- Яндола
- Капельник (Карнизна планка)
- Ущільнювач універсальный
- Саморізи ОС 4.8х35
- Фарба-спрей
- Гідробар'єр
- Монтаж
210480 грн.
Вікна (комплектність):
- Вікно VEKA 58, колір білий 10
- Імпости вертикальні: 1 x 102103
- Скління: СПО, 24мм, (Rсп=0.36)*
- Тип фурнітури: Activpilot поворотно-відкидна, колір білий
- Підбір спеціальний: Activ микровентиляція; Activ 2-функц. механ.
- Моск.сітка: МС 3
- Підвіконня: ВМ 110мм, колір білий
- Підвіконня: ПВ ПВХ 150, заглушки: 600мм, колір білий
- Монтаж
1086800 грн.
Двері (комплектність):
- Полотно
- Коробка
- Лиштва
- Карниз
- Фарбування
- Скло
- Фурнітура
- Врізка фурнітуры
- Монтаж
175336 грн.
Фарбування (комплектність):
- Шліфування торців
- Тришарове покриття ефективним деревозахисним засобом на базі низькомолекулярної алкідної смоли методом розпилення.
Оциліндрований брус
Оциліндрований брус є найбільш оптимальним і поширеним матеріалом для будівництва дерев`яних будинків і бань, бесідок, альтанок, різноманітних садових меблів, дерев`яних конструкцій будь-яких видів. Дерев`яні будинки з оциліндрованого брусу відрізняються красою, всередині такого будинку завжди відчувається особлива затишна атмосфера.
Профільований брус
Найсучаснішим і високотехнологічним будівельним матеріалом в дерев`яному будівництві на сьогоднішній день є профільований брус. Для виробництва профільованого брусу, звичайному дерев`яному брусу на спеціальному деревообробному обладнанні надається певний профіль.
Подвійний брус з утепленням
Головна ідея застосування подвійного бруса полягала в досягненні енергоефективності житла. Над проектуванням енергозберігаючих будинків працюють провідні інженери та архітектори в різних країнах світу, запропонована фінами технологія подвійного бруса дає можливість звести до мінімуму тепловтрати будинку, а також об`єднує переваги будівництва дерев`яного будинку з економічністю споруди.
Клеєний брус
Клеєний брус принципово відрізняється від інших типів колод багатошаровістю. Така структура робить цей дерев’яний матеріал надміцним і витривалим.
Каркасні конструкції
Каркасні конструкції виготовляються на власних виробничих потужностях компанії «Домінант», з використанням сучасних деревообробних станків. Імпортне, високоточне обладнання дозволяє нам високоякісно виконувати свою роботу. Каркаси складаються зі струганих, ретельно висушених балок 150х50 мм (сосна першого сорту). Ці балки застосовуються для зовнішніх каркасів.


















