Елара
- Кількість поверхів
- 2
- Площа
- 145,2
- Ширина
- 7
- Довжина
- 8
- Будинки і житлові будови
- Вілли
Котеджі
Маєтки
Садиби - Кількість кімнат
- Чотирикімнатні будинки
- Особливості будинків
- Будинки з балконом
Будинки з терасою
Будинки зі сходами - Кількість поверхів споруди
- Двоповерхові будинки
- Будинки з брусу
- Будинки з оциліндрованого брусу
(Що входить в ціну)
- комплект стін;
- комплект крокв;
- комплект балок перекриття;
- утеплювач міжвінцевий;
- антисептик (антисептування всього матеріалу);
- дубові нагеля;
- кріпильні материали (саморізи, усадкові болти, анкера, кріпильні пластини);
- гідроізоляція;
- вогнебіозахист (обробка деревини засобом І групи вогнезахисної ефективності)
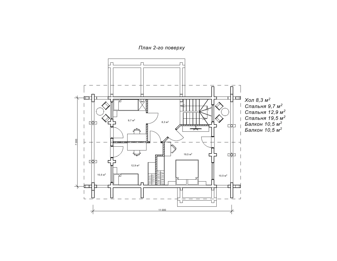
Проект котеджу «Елара» з трьома спальнями
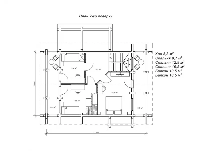
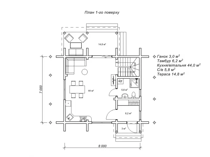
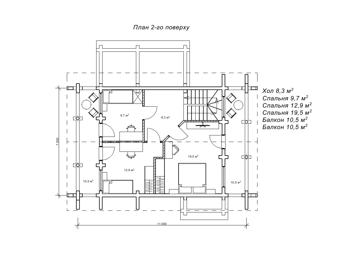
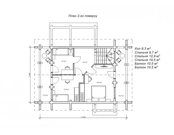
Двоповерховий котедж з трьома спальнями буде ідеальним вибором для тих, хто хоче жити в затишному та комфортному будинку з натуральних матеріалів. Дизайн котеджу передбачає застосування оциліндрованих, соснових колод для спорудження стін, які виглядають дуже вишукано завдяки колодчастим вигинам. Максимальне використання внутрішнього простору забезпечує усі зручності для полегшення побуту господарям будинку. Площа проекту «Елара» складає 145 м2. На першому поверсі розташовано ґанок площею 3,0 м2, тамбур - 6,2 м2, кухню/вітальню площею 44,0 м2, санвузол - 5,8 м2 та терасу площею 14,8 м2. На другому поверсі розташовано хол площею 8,3 м2 та три спальні - 9,7 м2, 12,9 м2 та 19,5 м2. Також на другому поверсі є два балкони площею 10,5 м2 кожен. З балконів можна насолоджуватися красою навколишнього ландшафту та свіжим повітрям. Помірковане і зручне планування кімнат у котеджі «Елара» створює ідеальні умови для проживання, а також прийому гостей та родичів.
Котедж з трьома спальнями, площа 145,2 м²
Однією з переваг котеджу «Елара» є велика кількість спалень. Це забезпечує зручне та комфортне проживання для всіх мешканців будинку, адже у кожного буде свій особистий простір. Крім того, велика кількість житлового простору дозволяє використати його не тільки у якості спальної зони. Наприклад, одну зі спалень в проекті «Елара» можна застосувати у якості кабінету з бібліотекою, а іншу як гостьова кімната для приїжджих друзів . Які кімнати можна облаштувати в будинку з брусу, читайте у відповідній публікації нашого сайту. Якщо ви шукаєте ідеальний будинок для сімейного проживання, котедж «Елара» з трьома спальнями може стати найкращим вибором проекту будинку, який компанія «Домінант» втілить у життя для вас в найкоротші терміни!
- Кількість поверхів
- 2
- Площа
- 145,2
- Ширина
- 7
- Довжина
- 8
- Будинки і житлові будови
- Вілли
Котеджі
Маєтки
Садиби - Кількість кімнат
- Чотирикімнатні будинки
- Особливості будинків
- Будинки з балконом
Будинки з терасою
Будинки зі сходами - Кількість поверхів споруди
- Двоповерхові будинки
- Будинки з брусу
- Будинки з оциліндрованого брусу
Базова комплектація:
(Що входить в ціну)
- комплект стін;
- комплект крокв;
- комплект балок перекриття;
- утеплювач міжвінцевий;
- антисептик (антисептування всього матеріалу);
- дубові нагеля;
- кріпильні материали (саморізи, усадкові болти, анкера, кріпильні пластини);
- гідроізоляція;
- вогнебіозахист (обробка деревини засобом І групи вогнезахисної ефективності)
359640 грн.
Дах (комплектність):
- Рейка 100*25мм (cосна)
- Контрейка 50*25мм (сосна)
- Металочерепиця МОНТЕРРЕЙ (Польща) 0,45мм
- Коник прямий
- Планка примикання
- Лобова (декоративна) планка
- Вітровая планка
- Яндола
- Капельник (Карнизна планка)
- Ущільнювач універсальный
- Саморізи ОС 4.8х35
- Фарба-спрей
- Гідробар'єр
- Монтаж
420960 грн.
Вікна (комплектність):
- Вікно VEKA 58, колір білий 10
- Імпости вертикальні: 1 x 102103
- Скління: СПО, 24мм, (Rсп=0.36)*
- Тип фурнітури: Activpilot поворотно-відкидна, колір білий
- Підбір спеціальний: Activ микровентиляція; Activ 2-функц. механ.
- Моск.сітка: МС 3
- Підвіконня: ВМ 110мм, колір білий
- Підвіконня: ПВ ПВХ 150, заглушки: 600мм, колір білий
- Монтаж
397100 грн.
Двері (комплектність):
- Полотно
- Коробка
- Лиштва
- Карниз
- Фарбування
- Скло
- Фурнітура
- Врізка фурнітуры
- Монтаж
163184 грн.
Фарбування (комплектність):
- Шліфування торців
- Тришарове покриття ефективним деревозахисним засобом на базі низькомолекулярної алкідної смоли методом розпилення.
Оциліндрований брус
Оциліндрований брус є найбільш оптимальним і поширеним матеріалом для будівництва дерев`яних будинків і бань, бесідок, альтанок, різноманітних садових меблів, дерев`яних конструкцій будь-яких видів. Дерев`яні будинки з оциліндрованого брусу відрізняються красою, всередині такого будинку завжди відчувається особлива затишна атмосфера.
Профільований брус
Найсучаснішим і високотехнологічним будівельним матеріалом в дерев`яному будівництві на сьогоднішній день є профільований брус. Для виробництва профільованого брусу, звичайному дерев`яному брусу на спеціальному деревообробному обладнанні надається певний профіль.
Подвійний брус з утепленням
Головна ідея застосування подвійного бруса полягала в досягненні енергоефективності житла. Над проектуванням енергозберігаючих будинків працюють провідні інженери та архітектори в різних країнах світу, запропонована фінами технологія подвійного бруса дає можливість звести до мінімуму тепловтрати будинку, а також об`єднує переваги будівництва дерев`яного будинку з економічністю споруди.
Клеєний брус
Клеєний брус принципово відрізняється від інших типів колод багатошаровістю. Така структура робить цей дерев’яний матеріал надміцним і витривалим.
Каркасні конструкції
Каркасні конструкції виготовляються на власних виробничих потужностях компанії «Домінант», з використанням сучасних деревообробних станків. Імпортне, високоточне обладнання дозволяє нам високоякісно виконувати свою роботу. Каркаси складаються зі струганих, ретельно висушених балок 150х50 мм (сосна першого сорту). Ці балки застосовуються для зовнішніх каркасів.















