Зателефонуйте мені
Флегон №1
Флегон №2
Флегон №3
Флегон №4
Флегон №5
Флегон №6
Флегон №7
Флегон №8
Флегон №9
Флегон №10
Флегон №11
Флегон №12
Флегон №1
Флегон №2
Флегон №3
Флегон №4
Флегон №5
Флегон №6
Флегон №7
Флегон №8
Флегон №9
Флегон №10
Флегон №11
Флегон №12
Флегон №1
Флегон №1 Флегон №2 Флегон №3 Флегон №4 Флегон №5 Флегон №6 Флегон №7 Флегон №8 Флегон №9 Флегон №10 Флегон №11 Флегон №12

Флегон

1 408 224,00 ₴
Будинок з сухого бруса з гаражем, площа 128 м2 - «Флегон»
Розмір брусу
  • Оциліндрований 160
  • Оциліндрований 180
  • Оциліндрований 200
  • Оциліндрований 220
  • Профільований 60
  • Профільований 150
  • Профільований 200
  • Подвійний 300
  • Клеєний 120
  • Клеєний 180
Кількість поверхів
1
Площа
128
Ширина
9.5
Довжина
16.5
Будинки і житлові будови
Вілли
Котеджі
Маєтки
Садиби
Кількість кімнат
Двокімнатні будинки
Особливості будинків
Будинки з гаражем
Будинки з терасою
Кількість поверхів споруди
Одноповерхові будинки
Будинки з брусу
Будинки з клеєного брусу
Будинки з профільованого брусу
 

(Що входить в ціну)

Що входить в базову комплектацію

  • комплект стін;
  • комплект крокв;
  • комплект балок перекриття;
  • утеплювач міжвінцевий;
  • антисептик (антисептування всього матеріалу);
  • дубові нагеля;
  • кріпильні материали (саморізи, усадкові болти, анкера, кріпильні пластини);
  • гідроізоляція;
  • вогнебіозахист (обробка деревини засобом І групи вогнезахисної ефективності)

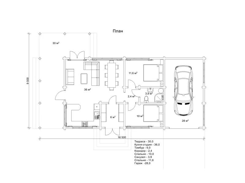
План будинку з сухого бруса з гаражем, площа 128 м2

Проект «Флегон», виконаний з висушеного, безусадкового бруса, обов’язково сподобається всім, хто хоче максимально зручно організувати заміське житло. В маєтку сплановано дві житлові кімнати, санвузол, студійне приміщення з функціональними зонами кухні, їдальнею та вітальнею, а також передбачений гараж. На окрему увагу заслуговує велика, літня тераса розміром 30 м2. Дерев’яний маєток вміщує всі зручності для створення максимального комфорту і відрізняється лаконічним, зовнішнім виглядом. Одноповерховий будинок з сухого бруса «Флегон» спланований у габаритах 9,5 на 16,5 м. Загальна площа будівлі складає 128 м2. Такий масштаб споруди передбачає наявність великої території. Якщо ж ваша земельна ділянка недостатнього розміру, то варто звернути увагу на двоповерхові котеджі.

Будівництво будинку з сухого бруса з гаражем «Флегон»

Будинок із сухого бруса має безліч переваг, починаючи від вибору просушеного соснового бруса для зведення стін і до комфортного планування. Тому ті, хто оформить замовлення на будівництво проекту «Флегон», перебуватиме в умовах виняткового комфорту та насолоджуватиметься максимально природним мікрокліматом у стінах дерев’яної садиби. Такий будинок просто створений для того, щоб більше часу проводити на свіжому повітрі та насолоджуватися мальовничою природою, відпочиваючи на просторій терасі. Звертайтеся за контактами нашого сайту та замовляйте будівництво проекту «Флегон» за вигідною вартістю виробника дерев’яних конструкцій «Домінант»!

Кількість поверхів
1
Площа
128
Ширина
9.5
Довжина
16.5
Будинки і житлові будови
Вілли
Котеджі
Маєтки
Садиби
Кількість кімнат
Двокімнатні будинки
Особливості будинків
Будинки з гаражем
Будинки з терасою
Кількість поверхів споруди
Одноповерхові будинки
Будинки з брусу
Будинки з клеєного брусу
Будинки з профільованого брусу

Базова комплектація:
(Що входить в ціну)

Що входить в базову комплектацію

  • комплект стін;
  • комплект крокв;
  • комплект балок перекриття;
  • утеплювач міжвінцевий;
  • антисептик (антисептування всього матеріалу);
  • дубові нагеля;
  • кріпильні материали (саморізи, усадкові болти, анкера, кріпильні пластини);
  • гідроізоляція;
  • вогнебіозахист (обробка деревини засобом І групи вогнезахисної ефективності)

473850 грн.

Дах (комплектність):

  • Рейка 100*25мм (cосна)
  • Контрейка 50*25мм (сосна)
  • Металочерепиця МОНТЕРРЕЙ (Польща) 0,45мм
  • Коник прямий
  • Планка примикання
  • Лобова (декоративна) планка
  • Вітровая планка
  • Яндола
  • Капельник (Карнизна планка)
  • Ущільнювач універсальный
  • Саморізи ОС 4.8х35
  • Фарба-спрей
  • Гідробар'єр
  • Монтаж

420960 грн.

Вікна (комплектність):

  • Вікно VEKA 58, колір білий 10
  • Імпости вертикальні: 1 x 102103
  • Скління: СПО, 24мм, (Rсп=0.36)*
  • Тип фурнітури: Activpilot поворотно-відкидна, колір білий
  • Підбір спеціальний: Activ микровентиляція; Activ 2-функц. механ.
  • Моск.сітка: МС 3
  • Підвіконня: ВМ 110мм, колір білий
  • Підвіконня: ПВ ПВХ 150, заглушки: 600мм, колір білий
  • Монтаж

334400 грн.

Двері (комплектність):

  • Полотно
  • Коробка
  • Лиштва
  • Карниз
  • Фарбування
  • Скло
  • Фурнітура
  • Врізка фурнітуры
  • Монтаж

144088 грн.

Фарбування (комплектність):

  • Шліфування торців
  • Тришарове покриття ефективним деревозахисним засобом на базі низькомолекулярної алкідної смоли методом розпилення.

Параметри забудови

  • Кількість поверхів: 1
  • Площа: 128

Розмір забудови

  • Ширина: 9.5
  • Довжина: 16.5

Перший поверх

тераса (м²)30,0
кухня-студія (м²)36,0
тамбур (м²)6,0
коридор (м²)2,4
спальня (м²)10,0
санвузол (м²)3,9
спальня (м²)11,6
гараж (м²)28,0

Оциліндрований брус

Оциліндрований брус є найбільш оптимальним і поширеним матеріалом для будівництва дерев`яних будинків і бань, бесідок, альтанок, різноманітних садових меблів, дерев`яних конструкцій будь-яких видів. Дерев`яні будинки з оциліндрованого брусу відрізняються красою, всередині такого будинку завжди відчувається особлива затишна атмосфера.

Читати далі...

Профільований брус

Найсучаснішим і високотехнологічним будівельним матеріалом в дерев`яному будівництві на сьогоднішній день є профільований брус. Для виробництва профільованого брусу, звичайному дерев`яному брусу на спеціальному деревообробному обладнанні надається певний профіль.

Читати далі...

Подвійний брус з утепленням

Головна ідея застосування подвійного бруса полягала в досягненні енергоефективності житла. Над проектуванням енергозберігаючих будинків працюють провідні інженери та архітектори в різних країнах світу, запропонована фінами технологія подвійного бруса дає можливість звести до мінімуму тепловтрати будинку, а також об`єднує переваги будівництва дерев`яного будинку з економічністю споруди.

Читати далі...

Клеєний брус

Клеєний брус принципово відрізняється від інших типів колод багатошаровістю. Така структура робить цей дерев’яний матеріал надміцним і витривалим.

Читати далі...

Каркасні конструкції

Каркасні конструкції виготовляються на власних виробничих потужностях компанії «Домінант», з використанням сучасних деревообробних станків. Імпортне, високоточне обладнання дозволяє нам високоякісно виконувати свою роботу. Каркаси складаються зі струганих, ретельно висушених балок 150х50 мм (сосна першого сорту). Ці балки застосовуються для зовнішніх каркасів.

Читати далі...

Немає відгуків

Переглянуті товари

16 інших товарів в цій категорії:

Товар додано для порівняння.