Храм Воздвиження Хреста Господнього
- Кількість поверхів
- 2
- Площа
- 176.1
- Ширина
- 8.5
- Довжина
- 22
- Храми і каплиці
- Церкви
(Що входить в ціну)
- комплект стін;
- комплект крокв;
- комплект балок перекриття;
- утеплювач міжвінцевий;
- антисептик (антисептування всього матеріалу);
- дубові нагеля;
- кріпильні материали (саморізи, усадкові болти, анкера, кріпильні пластини);
- гідроізоляція;
- вогнебіозахист (обробка деревини засобом І групи вогнезахисної ефективності)
Проект зрубу з колод церкви «Храм Воздвиження Хреста Господнього»
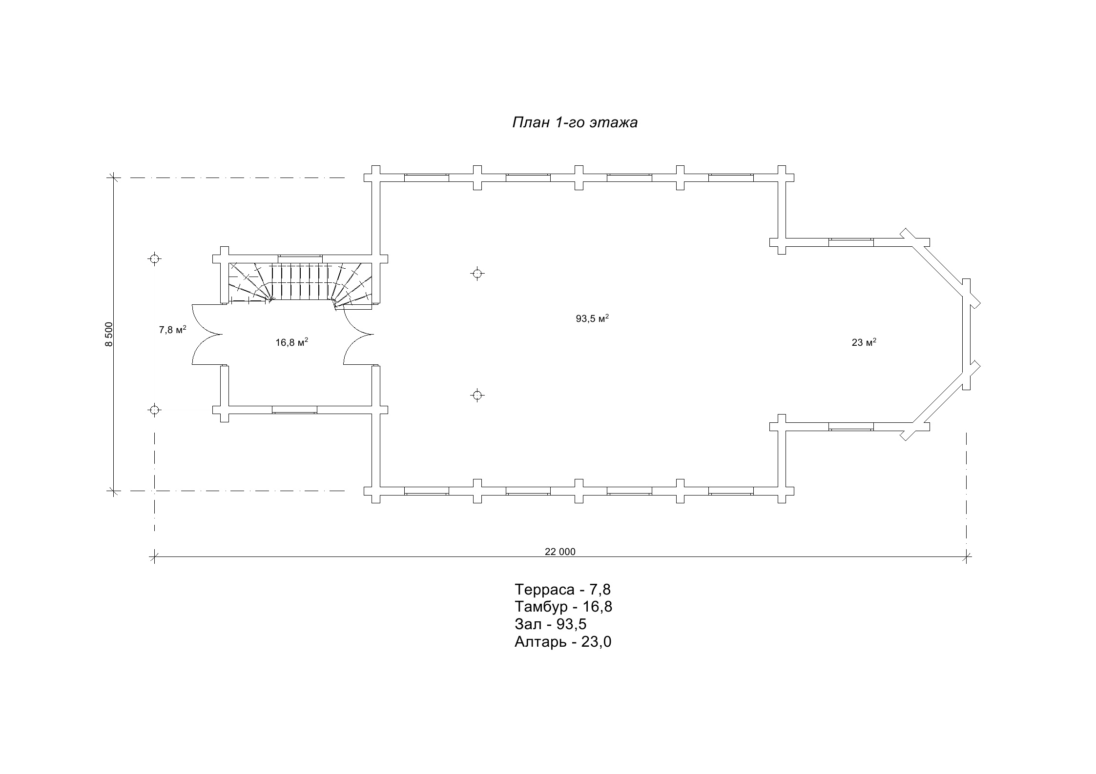
Велична дерев’яна споруда «Храм Воздвиження Хреста Господнього» гордовито прикрасить і збагатить своїм виглядом будь-яку місцевість. Вишукана архітектурна форма церкви, краса склепінь, розташованих на різних рівнях, куполи, що іскряться в сонячних променях, покликані оспівувати любов Бога до людей і сприяти духовному очищенню за допомогою молитви. Дерев’яний храм, побудований за даним проектом, послужить сполучною ланкою між усім мирським і небесним, тут зможуть збиратися парафіяни для проведення релігійних церемоніалів. У «Храмі Воздвиження Хреста Господнього» втілюється божественна сила всепрощення та сила християнських заповідей. Конструкцією зрубу передбачається вхідна група під навісом та різні рівні досить просторої споруди, що відповідають за певні обряди. Така церква площею 176,1 м2 та габаритами 8,5 на 22 м, безумовно, стане знаковим придбанням для будь-якої громади.
Будівництво зрубу з колод церкви, площа 176,1 м2
Будівництво дерев’яного зрубу церкви виконується, як правило, швидко і згодом будівля не вимагатиме масштабного оздоблення. Адже дерево саме по собі естетично привабливе і не потребує облицювання. Споглядаючи нескінченність дерев’яних візерунків на стінах храму, відчуваючи аромат деревини натурального, соснового зрубу, парафіянам буде легше очистити думки і звернутися до Бога з найпотаємнішими благаннями. У світі, сповненому агресією, такі проекти, як «Храм Воздвиження Хреста Господнього», особливо актуальні, адже вони покликані об’єднувати віруючих і привносити більше смирення та духовності у повсякденне життя. Виробничо-будівельна компанія «Домінант» пропонує будівництво зрубу з колод церкви, виконаного в кращих традиціях дерев’яного храмобудування.
- Кількість поверхів
- 2
- Площа
- 176.1
- Ширина
- 8.5
- Довжина
- 22
- Храми і каплиці
- Церкви
Базова комплектація:
(Що входить в ціну)
- комплект стін;
- комплект крокв;
- комплект балок перекриття;
- утеплювач міжвінцевий;
- антисептик (антисептування всього матеріалу);
- дубові нагеля;
- кріпильні материали (саморізи, усадкові болти, анкера, кріпильні пластини);
- гідроізоляція;
- вогнебіозахист (обробка деревини засобом І групи вогнезахисної ефективності)
600210 грн.
Дах (комплектність):
- Рейка 100*25мм (cосна)
- Контрейка 50*25мм (сосна)
- Металочерепиця МОНТЕРРЕЙ (Польща) 0,45мм
- Коник прямий
- Планка примикання
- Лобова (декоративна) планка
- Вітровая планка
- Яндола
- Капельник (Карнизна планка)
- Ущільнювач універсальный
- Саморізи ОС 4.8х35
- Фарба-спрей
- Гідробар'єр
- Монтаж
438500 грн.
Вікна (комплектність):
- Вікно VEKA 58, колір білий 10
- Імпости вертикальні: 1 x 102103
- Скління: СПО, 24мм, (Rсп=0.36)*
- Тип фурнітури: Activpilot поворотно-відкидна, колір білий
- Підбір спеціальний: Activ микровентиляція; Activ 2-функц. механ.
- Моск.сітка: МС 3
- Підвіконня: ВМ 110мм, колір білий
- Підвіконня: ПВ ПВХ 150, заглушки: 600мм, колір білий
- Монтаж
83600 грн.
Двері (комплектність):
- Полотно
- Коробка
- Лиштва
- Карниз
- Фарбування
- Скло
- Фурнітура
- Врізка фурнітуры
- Монтаж
271684 грн.
Фарбування (комплектність):
- Шліфування торців
- Тришарове покриття ефективним деревозахисним засобом на базі низькомолекулярної алкідної смоли методом розпилення.
Оциліндрований брус
Оциліндрований брус є найбільш оптимальним і поширеним матеріалом для будівництва дерев`яних будинків і бань, бесідок, альтанок, різноманітних садових меблів, дерев`яних конструкцій будь-яких видів. Дерев`яні будинки з оциліндрованого брусу відрізняються красою, всередині такого будинку завжди відчувається особлива затишна атмосфера.
Профільований брус
Найсучаснішим і високотехнологічним будівельним матеріалом в дерев`яному будівництві на сьогоднішній день є профільований брус. Для виробництва профільованого брусу, звичайному дерев`яному брусу на спеціальному деревообробному обладнанні надається певний профіль.
Подвійний брус з утепленням
Головна ідея застосування подвійного бруса полягала в досягненні енергоефективності житла. Над проектуванням енергозберігаючих будинків працюють провідні інженери та архітектори в різних країнах світу, запропонована фінами технологія подвійного бруса дає можливість звести до мінімуму тепловтрати будинку, а також об`єднує переваги будівництва дерев`яного будинку з економічністю споруди.
Клеєний брус
Клеєний брус принципово відрізняється від інших типів колод багатошаровістю. Така структура робить цей дерев’яний матеріал надміцним і витривалим.
Каркасні конструкції
Каркасні конструкції виготовляються на власних виробничих потужностях компанії «Домінант», з використанням сучасних деревообробних станків. Імпортне, високоточне обладнання дозволяє нам високоякісно виконувати свою роботу. Каркаси складаються зі струганих, ретельно висушених балок 150х50 мм (сосна першого сорту). Ці балки застосовуються для зовнішніх каркасів.















