- Статті
- 0 вподобання
- 7013 покази
Щоб зимові забави приносили більше задоволення, обов'язково варто подумати про наявність зимової альтанки на подвір’ї. Це місце, де завжди можна погрітися після кидання сніжками, катання на санках і ковзанах, при цьому ви не нанесете багато снігових слідів в будинок і не впустите холодне, зимове повітря в кімнати. А в зимовій альтанці можна розпалити камін, зігрітися, приготувати шашлики з глінтвейном і відзначити з друзями зустріч нового року! Сьогодні ми познайомимо вас із найновішими та стильними моделями дерев'яних, закритих альтанок «Домінант», які не тільки допоможуть вам функціонально організувати простір, але й ушляхетнити свою ділянку.
Що має бути передбачене у зимовій альтанці?
Проекти зимових альтанок завжди закритого типу, щоб у них можна було проводити час цілий рік у надійному укритті від вітру, снігопаду чи морозу. Зимові альтанки, як правило, універсальні будівлі. Адже так само як від холоду взимку, влітку в такій альтанці можна сховатись від палючого сонця. Тому зимове, закрите приміщення в такій альтанці можна успішно скомбінувати з відкритою, літньою терасою, тим самим отримавши всесезонну і функціональну будову.
Для того, щоб зимова альтанка якнайкраще виконувала свої функції, в ній має бути передбачене таке:
- закрите та утеплене приміщення (обов'язково наявність покрівлі, дверей, вікон для доступу природного освітлення та циркуляції повітря);
- наявність опалювального приладу (камін, мангал, піч, обігрівач);
- місце для застілля та відпочинку (стіл з лавками або м'який куточок).
Грамотно спланована та професійно збудована альтанка стане улюбленим місцем відпочинку незалежно від погодних умов. А якщо її обладнати плитою та піччю, то ви отримаєте відмінну літню кухню.
Завдяки гарній функціональності альтанки зимового типу дуже затребувані як комерційні проекти, вони збільшують сезон прийому гостей на будь-якій базі відпочинку. Адже будь-яка закрита альтанка за своєю суттю - це маленький дерев'яний будиночок з літньою кухнею.
Стильні проекти зимових альтанок із дерева
Зимова альтанка закритого типу може одночасно служити і гостьовим будиночком, і банкетним павільйоном і навіть будиночком-студією. Така різноманітність застосування зимових альтанок обумовлює великі можливості створення оригінального дизайну. Зимова альтанка може бути виконана в класичному стилі дерев'яної, зробленої з колод хатини, або може мати сучасний, стильний вигляд, якщо будувати її з сухого, гладко відшліфованого, профільованого бруса. Подивіться, який різноманітний дизайн зимових альтанок пропонується у нашому каталозі проектів на прикладі деяких альтанок.
Проект «Басса» позиціонується у каталозі дерев'яних будівель «Домінант» як будиночок-студія. Немає нічого дивного, адже всередині споруди площею 30 м2 кімната з кухнею, диванчиком, столом, окремий санвузол і навіть літня тераса.
Це функціональний варіант будиночка, який підходить під різні цілі і цілком може послужити як зимовою альтанкою, так і літнім будиночком. Велике вікно, що займає головний фасад, допоможе постійно зберігати відчуття максимального злиття з природою. Завдяки вдалому поєднанню стильного дизайну та вдалого внутрішнього планування, зимову альтанку «Басса» можна побудувати з метою комерції та залучити більше клієнтів у відпочинковий комплекс.
Будиночок-студія «Текіджа» є дуже стильною ідеєю для будівництва закритої альтанки. Величезні вікна зі шпросами чудово підходять до лаконічних, геометричних форм альтанки, виконаної із сухого, профільованого бруса.
Через ці великі вікна чудово насолоджуватися навколишньою природою, знаючи, що всередині не страшно спекотне сонце, дощ чи мороз. Проект «Текіджа» - це мінімум матеріалів у поєднанні з максимумом простору та світла!
Будиночок з альтанкою «Хідда» втілює фантазію та майстерність дизайнера зі створення стильного, зручного та функціонального куточка на своїй земельній ділянці!
Тераса з лаунж-зоною привітно кличе на релакс та посиденьки з друзями, а у закритому приміщенні є всі умови для приготування смачних страв для цих посиденьок. Площа відкритої та закритої частин проекту складає 27,1 м2, альтанка відповідає будь-яким запитам та вподобанням щодо проведення дозвілля на дачі або в саду.
Проект «Тіна» зацікавить тих, хто бажає максимально комфортно облаштувати дачу або планує звести офісну або адміністративну будівлю на території відпочинкового комплексу. Затишний колодчастий павільйон виглядає особливо стильно з великими вікнами від підлоги до стелі. А всередині крім самого павільйону з кухнею та м'яким куточком є санвузол та навіть тепловий тамбур.
Таке планувальне рішення дозволяє розглядати проект «Тіна» як чудову альтанку зимового типу. Причому, внутрішнє оснащення робить павільйон затребуваним у комерційному плані для використання його в ресторанному комплексі як розкішний банкетний зал.
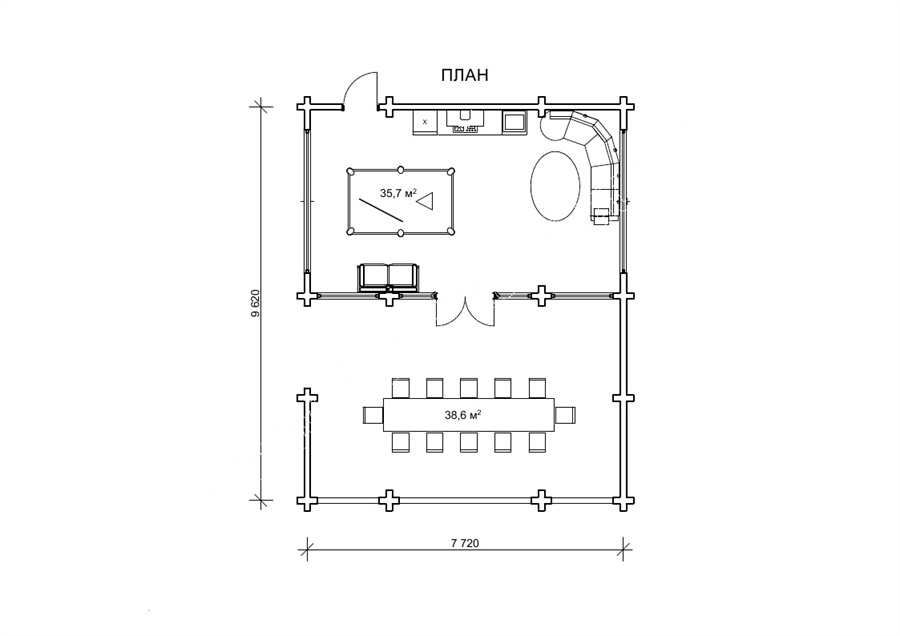
Зимова альтанка зі зрубу «Шико» - блискуча ідея комерційної альтанки. Неймовірно стильні будиночки з великими вікнами та окремими входами поєднуються під одним дахом «Шико». Ефектний, фантазійний екстер'єр усередині містить студійний простір площею 40 м2, який можна зонувати на власний розсуд, також застосовуючи при цьому безмежний політ фантазії. Тут може бути і камінний зал, і лаунж-зона, і літня кухня і навіть офісна або адміністративна будівля. Будівництво комерційної альтанки зимового типу «Шико» надає можливість гостям відпочивати на природі, насолоджуючись мальовничими краєвидами через величезні вікна та не піддаватися впливу поганої погоди у затишку та теплі закритої будови.
Будівництво комерційної альтанки зимового типу «Шико» надає можливість гостям відпочивати на природі, насолоджуючись мальовничими краєвидами через величезні вікна і не впливати на погану погоду в затишку та теплі закритої будівлі.
Закрита альтанка на два входи «Тіффані» має розкішний екстер'єр, в якому закрите приміщення доповнюється просторою, стильною терасою для літнього дозвілля. Це досить просторий проект альтанки загальною площею 74,3 м2, яка стане яскравим придбанням будь-якого рекреаційного комплексу.
У закритому приміщенні місця вистачає не тільки для кухні та м'якого куточка, але й для більярдного столу. Таким чином, проект «Тіффані» значно розширює можливості дозвілля гостей, надаючи умови і для застілля, і для захоплюючого відпочинку.
Павільйон-кафе на 20 відвідувачів «Міліан» створений саме для тих, хто хоче розширити сферу послуг свого відпочинкового комплексу. У проекті передбачено всі умови для максимального комфорту гостей закладу. Тут є камін, м'які диванчики, кухня, кілька санвузлів, і все це розташовується на площі 55 м2. І, звичайно ж, у павільйоні є величезні вікна, які дозволяють відчувати причетність до мальовничої панорами навколо альтанки, не залишаючи її комфорту.
Альтанку «Міліан» цілком можна розглядати не тільки як доповнення до інших споруд заміської бази відпочинку, але і як самостійно функціонуючий комерційний об'єкт. А сучасний, вишуканий стиль будівлі, виготовленої з висушеного, відшліфованого бруса дозволить проекту «Міліан» вписатися навіть у міський пейзаж, не порушуючи урбаністичний ландшафт, а навпаки розбавляючи бетонні джунглі деревним теплом.
Якщо ваші плани на новий рік включають розвиток бізнесу або благоустрій своєї ділянки, то вибір альтанки в компанії «Домінант» ідеально допоможе вам із здійсненням задуманого. Адже в зимовій альтанці із справжнього соснового зрубу завжди відчувається хвойний аромат, що наповнює приміщення атмосферою новорічних свят та передчуттям різдвяних чудес. Зарядившись сильною енергетикою соснової будови, ви відчуєте душевне тепло та позитивний настрій, щоб провести просто безцінні та незабутні моменти поряд із близькими людьми!






























