- Статті
- 1 вподобання
- 2307 покази
- Планування котеджу з дерева, Стиль дерев'яного будинку
Дерев’яні будиночки надають ідеальні умови для відпочинку, відновлення та духовних практик, які дуже зараз популярні в світі інформаційного надлишку, руйнівних стихій та воєнних конфліктів. Через всі перераховані події, іноді буває замало просто відпочинку або усамітнення чи спілкування з однодумцями. В сучасному світі люди потребують більшого, цікавляться духовними практиками і шукають відповідних умов для цього. Тому сьогодні ми пропонуємо проекти екобудиночків, в яких передбачені найкомфортніші умови для ретриту.
Планування та дизайн будинків для ретриту
Такі будиночки мають бути спроектовані з максимальним комфортом і зручністю, а також мати деякі особливості. Давайте розглянемо ключові аспекти, які роблять будиночок ідеальним для ретриту.
Натуральні матеріали. Лише природа здатна зцілювати та відновлювати повністю. Бо людина – це частина природи і дуже залежить від гармонії з нею і обов’язково має бути в ладу з самою собою. Тому натуральні матеріали будови – це обов’язкова умова проекту, в якому відбуватимуться духовні практики. Ось чому будинок з соснової колоди визначально подарує найкращі, природні умови і забезпечить справжнє відновлення. А ще деякі дуже цікаві факти про дерев’яні будинки пропонуємо в одній з наших попередніх публікацій.
Планування простору. Будиночок для ретриту повинен мати оптимальне планування, яке забезпечить виключну зручність і затишок. Відкрита зона для відпочинку, кухня з усіма необхідними зручностями та зони для спання - це основні компоненти.
Великі вікна і панорамний вид. Навколишня природа повинна бути завжди на виду. Великі вікна або панорамні скляні стіни дозволяють насолоджуватися красою природи, навіть перебуваючи всередині будиночка.
Приватні зони для відпочинку. Важливо мати простір, де можна відпочивати і насолоджуватися тишою та спокоєм. Відокремлені спальні кімнати або зони для читання і медитації допомагають створити цю приватність.
Зручна тераса або балкон. Зона відпочинку на відкритому повітрі є не менш важливою. Будиночок для ретриту обов’язково має мати терасу або балкон, обладнаний зручними меблями і умовами для вечорів біля вогнища чи просто для спостереження за зоряним небом.
При будівництві будиночків для ретриту важливо дотримуватися принципів екологічної стійкості. Використання відновлюваних матеріалів, сонячних панелей для електропостачання та систем водозабезпечення на основі дощової води - це лише деякі з способів зменшення впливу на навколишнє середовище. Забезпечення безпеки та приватності мешканців - це пріоритет. Адже ретрити – це заходи, які передбачають тимчасове віддалення учасників від повсякденності і час, присвячений духовним практиками. Часто учасники здають на вході на зберігання свої гаджети, щоб ніщо не відволікало їх від відпочинку, занять, молитов та медитацій.
Готові проекти будиночків для ретриту
В розгалуженому каталозі проектів «Домінант» існує багато проектів будиночків для ретриту, які відповідають всім вищезазначеним вимогам. Ці проекти поєднують в собі сучасний дизайн, зручність та екологічну стійкість.
Проект «Басса» - будиночок-студія з терасою
Цікавий дизайн будиночку «Басса» відразу вподобають ті, хто хоче повної зміни навколишньої обстановки. Панорамне скло в такій компактній конструкції вказує на головне призначення бунгало - забезпечити відпочинок та максимальне злиття з природою. Площа будинку-студії разом з терасою становить 30 м². Майже половина будівлі займає тераса - 12 м2.
Це прекрасне місце для дозвілля або медитації на свіжому повітрі. Усередині будинку є одна кімната площею 13,2 м2 і санвузол площею 4,8 м2. Такий план ідеально підійде для тих, хто прагне сам на сам відновити душевний стан та пізнати себе. Проект «Басса» стане прибутковим комерційним об'єктом - чи то буде гостьовий будиночок для ретриту, кемпінгу, бази відпочинку, офіс або навіть магазинчик. Окрім максимально простого та зручного планування, котедж «Басса» привертає увагу більшості клієнтів своїм цікавим і сучасним виглядом.
Проект «Інсоліта» - котедж з великими вікнами та широкою терасою
Цей котедж дещо схожий на попередній будиночок-студію, але з підвищеною комфортабельністю, створений для того, щоб насолоджуватися відпочинком, літом та теплим сонцем. Особливо видно його стильне поєднання різних рівнів дахів, що зроблені з сухого, профільованого бруса. Відшліфований і висушений дерев'яний матеріал додає будівлі акуратності, лаконічності і добротності. «Інсоліта» ідеально підходить для тих, хто прагне відчути енергію природи і відновити нею свої сили.
Планування цього одноповерхового будинку з терасою, площа якого складає 60 м², вражає своєю функціональністю та організованістю. Більше третини простору проекту займає саме тераса, що свідчить про його призначення як ідеального місця для перебування на свіжому повітрі. Усередині ж будинку розташовані тамбур, кухня, зал, санвузол та спальня з панорамними вікнами. Як бачите, планування цього котеджу максимально домашнє і сприяє повній розслабленості і насолоді затишком. Використання сухого, профільованого, соснового бруса гарантує екологічність, енергоефективність та довговічність конструкції. Тому, якщо ви шукаєте нестандартне і затишне житло, або справжній, відновлюючий котедж, здатний сповнювати силами природи і покращувати здоров’я, замовляйте собі цей будинок - символ сучасного комфорту та елегантності.
Проект «Лодас» - гостьовий котедж на дві спальні
Гостьове бунгало «Лодас» з першого погляду заворожує великими вікнами та скляними дверима, створеними, щоб можна було насолоджуватися природою та сонцем якнайдовше. Цей будиночок з брусу вражає своєю простотою дизайну, де кожна деталь підкреслює його зв'язок з природою. Проект «Лодас» має класичний двосхилий дах та монолітні стіни, але три виходи на терасу з великими скляними дверима та вікнами надають йому унікального стилю. Загальна площа бунгало складає 42,8 м², а у ньому знаходяться три кімнати: дві спальні, зал, санвузол та гардероб. Також передбачена кількість виходів, що забезпечують зручний доступ до тераси з кожної кімнати. Це планування робить будиночок «Лодас» ідеальним як для приватного, так і для комерційного використання.
Проект «Аліс» - гостьовий котедж 6,5 на 7 м з лазнею
Прекрасний відпочинок чекатиме бажаючих пройти ретрит у гостьовому котеджі «Аліс», де можна насолоджуватись затишком та зручністю будь-якою порою року.
Збудований на площі 6,5 на 7 метрів, цей котедж має сучасний вигляд з високим першим поверхом та антресоллю, де розташована затишна спальня. Односкатний дах надає будівлі лаконічності та елегантності, а тераса дозволяє дихати свіжим повітрям та споглядати природу. Площа приміщень проекту «Аліс» складає 89 м², включаючи терасу та антресольний поверх. Перший поверх містить кімнату відпочинку, санвузол та душову кімнату, а також простору парилку. На антресолі розташована затишна спальня з нішою-подіумом, що забезпечить незабутній релакс після спа процедур. Гостьовий котедж «Аліс» ідеально поєднує в собі зручності сучасного життя та природну красу, надаючи вам можливість повністю розслабитися та насолодитися відпочинком.
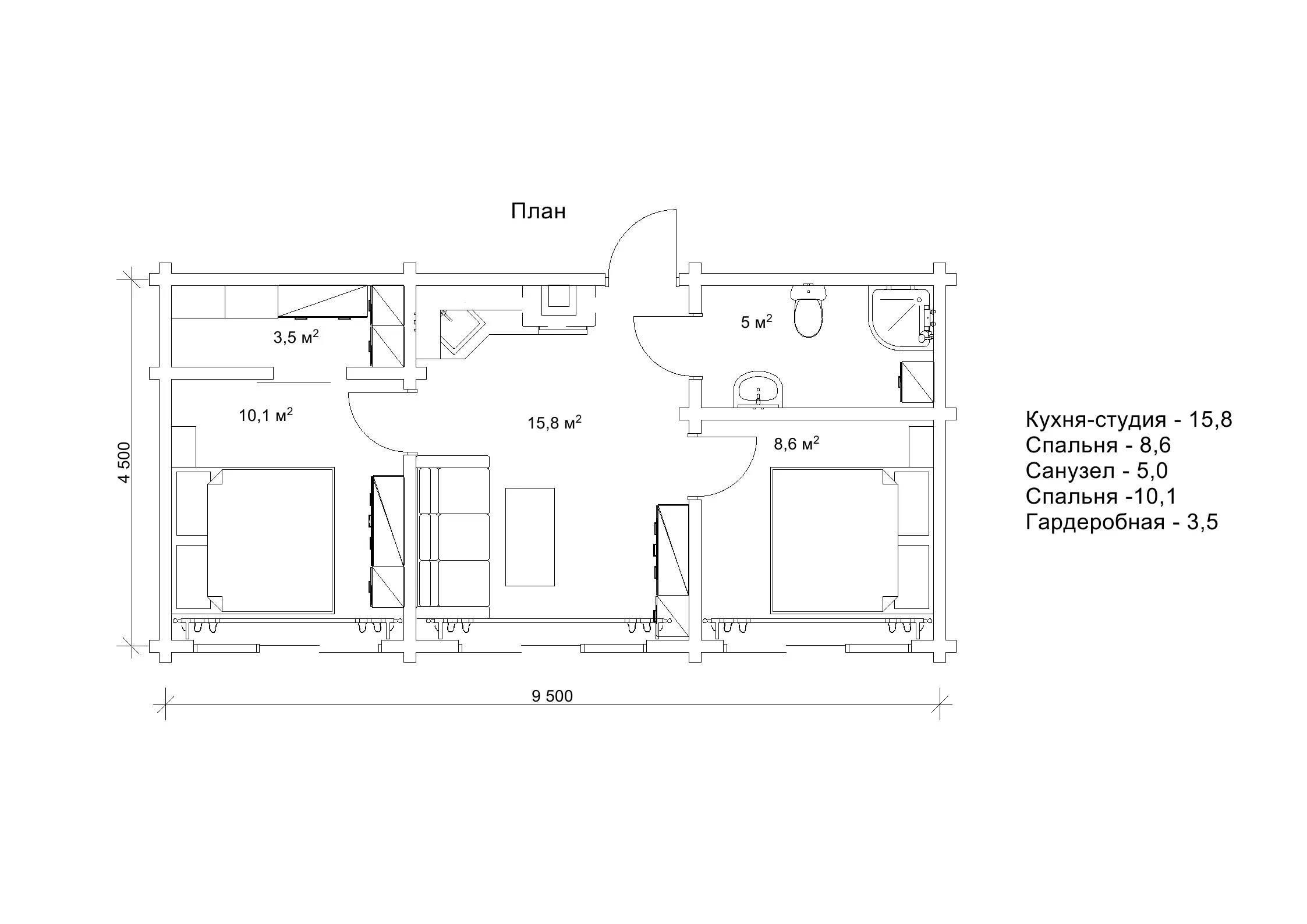
Проект «Діната» - одноповерховий котедж 8х8 м з 2 спальнями
Котедж «Діната» з оциліндрованих колод приваблює своєю нестандартною формою даху та великими панорамними вікнами, які сповнюють будинок променями сонячного світла. Цей зруб має неповторний вигляд, завдяки якому він стає справжньою окрасою будь-якого мальовничого місця, котеджного містечка, ретритного центру або дачного масиву.
Загальна площа будинку складає 67,23 м2, включаючи дві просторі спальні, кухню-студію та санвузол. Кожен мешканець отримає свій власний затишний куточок, де можна насолоджуватися спокоєм та затишком. Цей стильний та привабливий одноповерховий котедж створений, щоб бути ідеальним місцем для відпочинку на природі. Замовивши будівництво проекту «Діната», ви отримаєте якісний та комфортний зруб з оциліндрованих, соснових колод, який завдяки своїй чудодійній хвойній свіжості подбає про настрій, внутрішній стан і здоров’я мешканців.
Проект «Сефіна» - оригінальний таунхаус (дуплекс) з оциліндрованого зрубу
Проект «Сефіна» - це справжня перлина серед дерев'яних котеджів, яка вражає своєю оригінальністю та мистецтвом конструкції.
Його багатогранна форма, косі чаші в кутах з'єднання та різнорівнева висота стін надають будівлі витонченості та гармонії з природою, нагадуючи розкішну яхту, що плаває на хвилях. Кожна деталь будівлі вражає своєю елегантністю, а натуральне дерево, з якого виготовлений проект «Сефіна», підкреслює природну красу та багатство навколишнього середовища. «Сефіна» має дуже особливий план котеджу площею 65,4 м2, що розрахований на дві ідентичні квартири. Кожна квартира складається зі студійної кухні, санвузла та спальні з виходом на приватну терасу. Це ідеальний варіант для будинку відпочинку і проведення ретритів.
Проект «Лекід2» - трикутний дерев`яний будиночок 8х6м
Ці будинки непохитно знаходяться в топі замовлень «Домінант» і насамперед приваблюють тих, хто прагне вирватися з буденності та має бажання отримати нові враження. Це творці екологічних кемпінгів, ретритів і затишних бунгало для відпочинку на вихідних, що пропонують своїм гостям неповторний досвід. Як правило, це люди з креативним мисленням, шукачі свободи та гармонії з природою, які прагнуть нових життєвих вражень. Тому, звісно, наш огляд сучасних будиночків для ретриту не обійшовся без одного з найпопулярніших проектів від «Домінант» - a-framed будиночка «Лекід2». Завдяки трикутній формі такі котеджі завжди виглядають і відчуваються як затишні, ідеально вписуються в ландшафт, не домінують над природою та повністю перевертають звичне поняття простору. Чи не цього бажають всі, хто прагне зміни оточуючого середовища?
Трикутний будинок «Лекід2» з великими нестандартними вікнами виглядає надзвичайно оригінально. Назва проекту, яка містить англійське слово «kid», що перекладається як «дитина», повністю відображає його образ, що нагадує дитину з допитливими «очима» - вікнами. Розміри забудови за проектом «Лекід2» становлять 8х6 метрів, що робить цей будинок компактним та ефективним у використанні вільної території.
Як бачите, наш огляд сучасних будиночків для ретриту містить дуже різні проекти, але всіх їх об’єднує одне: вони зроблені з натуральної сосни і становлять чудовий простір, що сприяє відновленню енергії та гармонії з природою. Комфортне планування, зручності та дотримання екологічних стандартів виготовлення роблять їх ідеальним варіантом для усіх, хто займається духовними практиками, шукає спокій та відпочинок, щоб мати достатньо сил долати стреси, тривоги та суворі виклики воєнного сьогодення.














































