- Статті
- 0 вподобання
- 3480 покази
- Планування котеджу з дерева, Стиль дерев'яного будинку, Корисні поради
Тераса біля будинку відкриває чудові можливості для відпочинку на свіжому повітрі. Тут можна насолоджуватись природою та спілкуванням, залишаючись у комфорті оселі. Тому пропонуємо розглянути найкращі проекти будинків з терасами, які поєднують у собі естетику, зручність і функціональність, створюючи ідеальні умови для літнього дозвілля та насолоди життям!
Проект «Грайд» - двокімнатний котедж, 49,5 м2
Котедж «Грайд» сподобається вам завдяки акуратному та стильному вигляду. Гармонійно поєднані затінений навісом ґанок з відкритою частиною тераси, що обрамляє будиночок, викликають приємне передчуття відпочинку, відразу налаштовуючи на сієсту. Естетичний вигляд стін зі струганих брусів, гра світла і тіні на терасі з великими, скляними дверима запрошують чимскоріш поглянути на внутрішнє планування кімнат.
Проект «Грайд» включає дві житлові кімнати по 10,9 м², кухню з виходом на терасу, гардероб та санвузол. Цей набір приміщень на досить компактній площі 49,5 м2 забезпечує комфортні умови для життя. Зручні розміри будови 7,5 на 6,6 м дозволяють мінімально зайняти територію на ділянці, ще й облаштувати лаунж-зону на терасі. Масивні стіни з просушеного, профільованого бруса 150х150 мм забезпечать всесезонну функціональність, роблячи будиночок затишним влітку і теплим взимку.
Проект «Сеньйор» - будинок 10х13 м з терасою і каміном
Проект «Сеньйор» неодмінно зацікавить вас як ідеальний варіант заміського котеджу. Його планування включає затишний ґанок, передпокій, вітальню з м’яким куточком і каміном, кухню, дві спальні, санвузол і топкову. Особлива увага приділена великій терасі, яка створює чудові умови для відпочинку та розваг, включаючи більярдний стіл і столову зону.
Будинок пропонує комфортне проживання та розваги протягом всього сезону. Він вражає своїм сучасним виконанням зі струганих брусів, великою кількістю вікон і великим простором всередині. «Сеньйор» ідеально поєднує в собі сучасний стиль, прогресивний матеріал виконання і практичність. Ці переваги роблять його привабливим як для дачного відпочинку, так і для постійного проживання. Будинок може легко приймати гостей і великі компанії, які можуть насолоджуватися різноманітними розвагами як всередині, так і на просторій, тридцятиметровій терасі. Проект «Сеньйор» з розкішною терасою відображає статус і заможність господаря, а також його вміння насолоджуватися якісним відпочинком!
Проект «Ельга» - котедж 10х15,2 м з терасою-кімнатою
Одноповерховий котедж «Ельга» приваблює своєю сучасною естетикою та функціональністю. Високі вікна і стелі візуально збільшують простір та роблять його сповненим світла. Відразу привертає до себе увагу тераса, оригінально оформлена дерев'яними планками. Завдяки такому дизайнерському рішенню тераса виглядає ніби прозора кімната, куди можна заглянути крізь стіну.
Це ідеальний вибір для тих, хто шукає затишок та комфорт в оточенні природи і натуральних матеріалів. Матеріал будівництва - сухий, профільований брус, забезпечує не лише відмінну якість стінової конструкції, але й дозволяє отримати неповторний дизайн. Площа котеджу «Ельга» складає 102,2 м2 з усіма зручностями для комфортного проживання: зал з каміном, кухня, дві спальні, тамбур, ванна з душовою і котельня.
Якщо цей проект зацікавив вас, звертайтеся до нас за контактними даними для замовлення будівництва.
Проект «Жакона» - будинок в стилі хай-тек з великою терасою
Котедж виготовляється з сухого профільованого бруса, він відрізняється цікавою формою даху з одним нахилом, де каркас з одного боку будується вище, а з іншого - нижче, створюючи контраст між частинами конструкції. Визначною особливістю проекту «Жакона» є стильна тераса розміром 30,6 м з перголами, які створюють ефект розсіяного освітлення і гармонійно доповнюють будинок. На таких перголах дуже гарно плестиметься троянда, бузок або інші рослини, прикрашаючи всю оселю. Тут можна облаштувати повноцінну літню їдальню або місце для відпочинку і дитячих ігор.
Всередині є тамбур, хол, санвузол, дві спальні по 14 м2 і вітальня, об'єднана з кухнею. Ми безліч разів будували цей проект, в тому числі реалізували його з оциліндрованих колод, тому радимо також розглянути модель «Жакона2», яка теж не залишить вас байдужими!
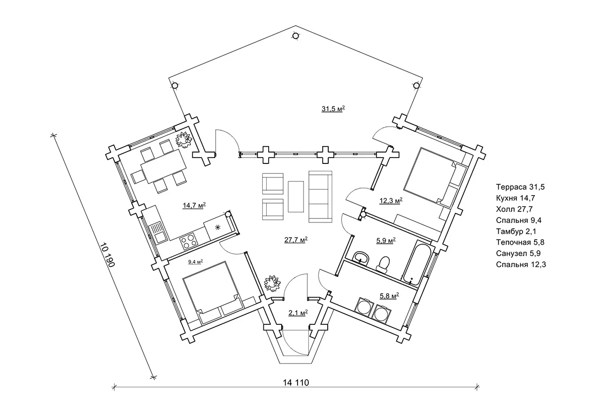
Проект «Креміна» - п'ятигранний зруб з оциліндрованих колод
Це неймовірно чарівний заміський будинок, який розроблений з урахуванням індивідуальних побажань замовника для будівництва в Болгарії. Він дивує своєю красою, гармонійно вписуючись у навколишній мальовничий ландшафт неподалік від столиці Софії. Масивний цоколь підносить будинок над рельєфом, додаючи зрубу монументального та розкішного вигляду.
Грандіозна тераса, розташована під високим дахом, відкривається на сонце та чарівну гірську панораму, пропонуючи найкращі місця для проведення часу. Великі вікна наповнюють приміщення сонячним світлом і теплом, даруючи відчуття легкості. Зовнішній вигляд будинку, зі своєю п'ятигранною формою, нагадує коштовний камінь або квітку, що розквітає в горах, і тому дуже цікаво дізнатися, що приховується всередині.
Усередині «Креміни» розташований просторий хол, ніби серцевина квітки, з якого виходять кімнати, подібні пелюсткам: дві спальні, кухня, санвузол, топкова та тамбур. Відсутність суміжних перегородок між кімнатами забезпечує комфорт для кожного мешканця оселі у їхньому власному просторі. А для спільного збору можна вирушити в хол або на терасу. Всі внутрішні перегородки виконані за каркасною технологією, що дозволяє економити бюджет будівництва та створювати різноманітні дизайнерські рішення. Окремий вихід на терасу з однієї зі спалень створює ідеальні умови для ранкової кавової насолоди. Надзвичайний дизайн будинку свідчить про те, що його власник любить оточувати себе красою, приділяючи увагу кожній деталі свого житла та насолоджуючись життям.
Проект «Хелла» - дерев'яний котедж з великою терасою
Напевно, цей проект володіє найбільш вражаючою терасою серед усіх інших котеджів. В будинку «Хелла» терраса займає майже половину першого поверху. Вона розподілена на дві частини: відкриту та під навісом, таким чином утворюючи ідеальний простір для літнього відпочинку, проведення вечірок або просто насолоди на свіжому повітрі. Конструкція стовпів, яка підтримує навіс мансарди, додає величі до екстер’єру споруди та більше можливостей для ефектного освітлення будинку вночі або для розкішних плетючих рослин.
Котедж «Хелла» має розміри 9 на 11,5 метрів і загальну площу разом з другим поверхом 162 квадратних метри. Внутрішнє планування цього будинку передбачає багато вільного студійного простору та мінімум внутрішніх перегородок, що дозволяє організувати функціональні зони за власним смаком. На першому поверсі знаходяться вітальня, їдальня та робоча кухонна зона, а також санвузол та сходи на другий поверх, де розташовані 2 спальні, одна з яких має місце під робочий кабінет. Вільне зонування є ключовою рисою планування цього будинку, що особливо оцінять господарі, які полюбляють довільну організацію свого простору.
Після розгляду цих привабливих котеджів з терасами для відпочинку на відкритих просторах, пропонуємо ще декілька більш дорогих, ексклюзивних проектів підвищеної комфортабельності. В них тераси не виступають якоюсь особливою родзинкою, а логічним доповненням розкішного планування. Вони підносять поняття комфорту на геть інший рівень. Тільки погляньте на ці проекти - і переконайтесь самі.
Проект «Мейдін» - сучасний маєток з бруса
Маєток з профільованого бруса «Мейдін» миттєво зачаровує своєю розкішною естетикою. Величезні панорамні вікна нестандартної форми, затишні тераси під навісами з масивних балок, різнорівневі скати дахів разом складаються в неповторний ансамбль. Зовнішній вигляд резиденції «Мейдін» можна порівняти з розкішною яхтою, де палуби на різних рівнях, ефектні ілюмінатори та атмосфера розслаблення створюють неперевершену обстановку. Дерев'яна садиба вирізняється великими розмірами - 11,1 на 13,5 м і площею 264,3 м2, це привабить всіх, хто цінує простір та велич. Проект розрахований на два поверхи, з інтер'єром, що відзначається зручним розподілом на різні функціональні зони.
Перший поверх включає ґанок, тамбур, хол, санвузол, топкові, три тераси, кабінет, кухню та вітальню. Одна з терас має вихід з кухні, що дуже зручно для вечері на свіжому повітрі, інша - з кабінету, щоб забезпечити господарю спокійне місце для роботи. Крім того, вихід з кабінету дозволяє насолоджуватися свіжим повітрям та навколишнім пейзажем, що гарно надихає на подальшу продуктивність в роботі. Або навпаки дозволить переключитись і розслабитись в потрібний момент. На другому поверсі розташовані чотири великі спальні, що означає вдосталь особистого простору для кожного мешканця.
Проект «Мейдін» представляє собою один з найсучасніших варіантів дерев'яного маєтку, обладнаного усім необхідним для комфортного життя. Це вибір справжнього естета, який цінує комфорт, затишок та сучасний стиль. Тож не дивно, що цей топовий проект уже неодноразово було реалізовано і в Україні, і за кордоном.
Проект «Ейва» - трикімнатний котедж з лазнею
Комфортабельний і просторий будинок з вишуканим, сучасним дизайном створений для розміщення в мальовничому куточку природи. Його розкішні тераси якраз і є інтегруючим елементом архітектури з навколишнім середовищем. Великі вікна відкривають розкішну панораму на зовнішній простір з середини оселі, такий панорамний огляд дозволяє відчувати присутність природи в середині будинку.
Затишні тераси стимулюють проведення більше часу на свіжому повітрі, дозволяючи насолоджуватися красою навколишнього ландшафту. Внутрішнє планування забезпечує підвищений домашній комфорт завдяки трьом житловим кімнатам і наявності лазні. Котедж «Ейва» з лазнею має параметри забудови 13 на 18 м, що потребує достатньо місця на земельній ділянці. Однак на площі 234 м2 він пропонує максимальний комфорт для мешканців і гостей. Три спальні кімнати забезпечують особистий простір для кожного, велика зала стає ідеальним місцем для сімейних зустрічей і відпочинку, а лазня забезпечує підвищену якість життя в цій чудовій оселі.
Втіливши проект «Ейва» в реальність, ви отримаєте справжнє місце затишку і комфорту, де кожен день наповнений високою естетикою природних матеріалів.
Проект «Гранат» - будинок з утепленими стінами і терасою 30 м2
Проект «Гранат» привертає увагу своїм сучасним виглядом та деякою асиметрією, що можна відзначити як його справжню окрасу. Фасади будівлі елегантно відзначаються подвійними рядами брусів, що є характерною рисою споруд, зведених за технологією паралельного брусу з утепленням.
Великі вікна забезпечують достатнє природне освітлення та зберігають зв'язок з природою, навіть за погіршених погодних умов, забезпечуючи комфорт всередині будинку. Дизайн будинку «Гранат» є по-справжньому унікальним, і його можна підкреслити ще більше за допомогою насиченого кольору стін.
Унікальний екстер'єр проекту в поєднанні з передовою технологією будівництва надає цій споруді численні переваги. Будинок «Гранат» з розмірами 16,2х17 метрів, має стіни з подвійного брусу з утеплювачем по периметру і між кімнатами. Це забезпечує високу тепло- та звукоізоляцію як ззовні, так і всередині будинку. Планування приміщень включає простору вітальню (30 м2), кухню та їдальню (31,5 м2) з окремим місцем під камін. Дві спальні (18 та 16 м2) забезпечують достатньо особистого простору для кожного мешканця, а також багато місця для зручного відпочинку в колі родини та друзів. Розкішна тераса під навісом створює додаткове приміщення для вечірок під відкритим небом. Житло з дерева, екологічно чисте і з утепленням в стінах, є оптимальним вибором сучасності.
Ми обожнюємо свою роботу і розробку нових проектів, які не лише функціональні та комфортні для проживання, але й мають свій унікальний стиль та шарм. Зверніться до нас, і ми з задоволенням допоможемо втілити вашу мрію про комфортабельне житло в реальність!




















































