- Статті
- 1 вподобання
- 1255 покази
- Планування котеджу з дерева, Стиль дерев'яного будинку, Інтер'єр будинку з бруса, Корисні поради, оздоблення дерев'яного будинку, технології дерев'яного будинку
За понад двадцять років роботи у сфері будівництва ми здобули величезний досвід і зібрали сотні готових проектів для тих, хто хоче жити у теплому, надійному та екологічному будинку з бруса. Але знаєте, що нам подобається найбільше? Коли до нас приходять із власним баченням. Коли ви точно знаєте, чого хочете, а ми допомагаємо втілити цю мрію в реальність. І робимо це професійно, якісно та з душею. Адже ми всі розуміємо, що кожен бачить свій ідеальний будинок по-різному. Хтось мріє про затишний дерев'яний зруб зі стінами з масивних колод, а хтось уявляє стильний сучасний маєток суворо прямокутних обрисів та величезними панорамними вікнами. Але одне точно незмінне - бажання жити у просторі, створеному саме для себе. І ось які можливості та переваги відкриває такий підхід до будівлі.
Неповторний дизайн - можливість нестандартних рішень
Індивідуальний проект - це справжній простір для творчості. Форма, розміри, оздоблення - усе підлаштовується під вашу ділянку, смаки та особистий стиль. Хочете класичний котедж з мансардою, сучасний хай-тек чи казковий зруб? Жодних обмежень! А що, як додати терасу, де ранкова кава смакуватиме по-особливому? Або панорамні вікна, через які сонце заливатиме кімнату теплим світлом? Головне, зробити будинок таким, де хочеться жити, а не просто існувати.
Вдалий приклад будівництва оселі на замовлення - це дивовижно гарний будинок з терасами, який ми побудували на березі Південного Бугу в Миколаївській області. Тут природа і архітектура ніби зливаються в єдине ціле: з вікон відкриваються краєвиди, які хочеться розглядати годинами. Сам проект - це справжня авторська історія. Ідею будинку придумав його господар, а наш архітектор адаптував її під технологію дерев’яного будівництва. Вийшла унікальна споруда, де лаконічність форм і природна краса дерева доповнюють одне одного. Різнорівневі фасади, просторі тераси, панорамні вікна, затишні навіси - тут кожна деталь продумана так, щоб створити комфортний і водночас естетично довершений простір. Будівлю площею 333 м² (23,7×19,3 м з терасами) однозначно не можна назвати типовою чи звичайною. Вона демонструє особливий погляд своїх господарів на архітектуру та життя.
Підлаштування проекту під ландшафт
Типові дерев’яні або модульні конструкції важко відразу вписати в наявний простір. Індивідуальне проектування навпаки дозволяє створити будівлю, яка гармонійно доповнить краєвид, вврахує розташування дерев, рівень освітлення, рельєф місцевості, щоб кожне вікно відкривало бажаний вид. Матеріали, кольори, форми - завжди є можливість підібрати їх так органічно, ніби будинок завжди був саме тут.
Задля цієї мети, ми іноді створюємо цілий комплекс будівель, наприклад, будиночок з альтанкою і міст над водоймою на території заповідника Перигор - Лімузен у Франції. Для місць з такою неймовірною енергетикою найкраще, звичайно ж, підходять саме ексклюзивні споруди з натурального дерева, якими наш замовник побажав прикрасити свою ділянку. В результаті проведеної нашими фахівцями роботи, клієнт отримав мальовничу ділянку зі своїм унікальним стилем і характером. Усі будівлі гармонійно поєднуються з природним ландшафтом, створюючи неймовірний, казковий куточок для відпочинку і відновлення сил.
Функціональність під особисті потреби
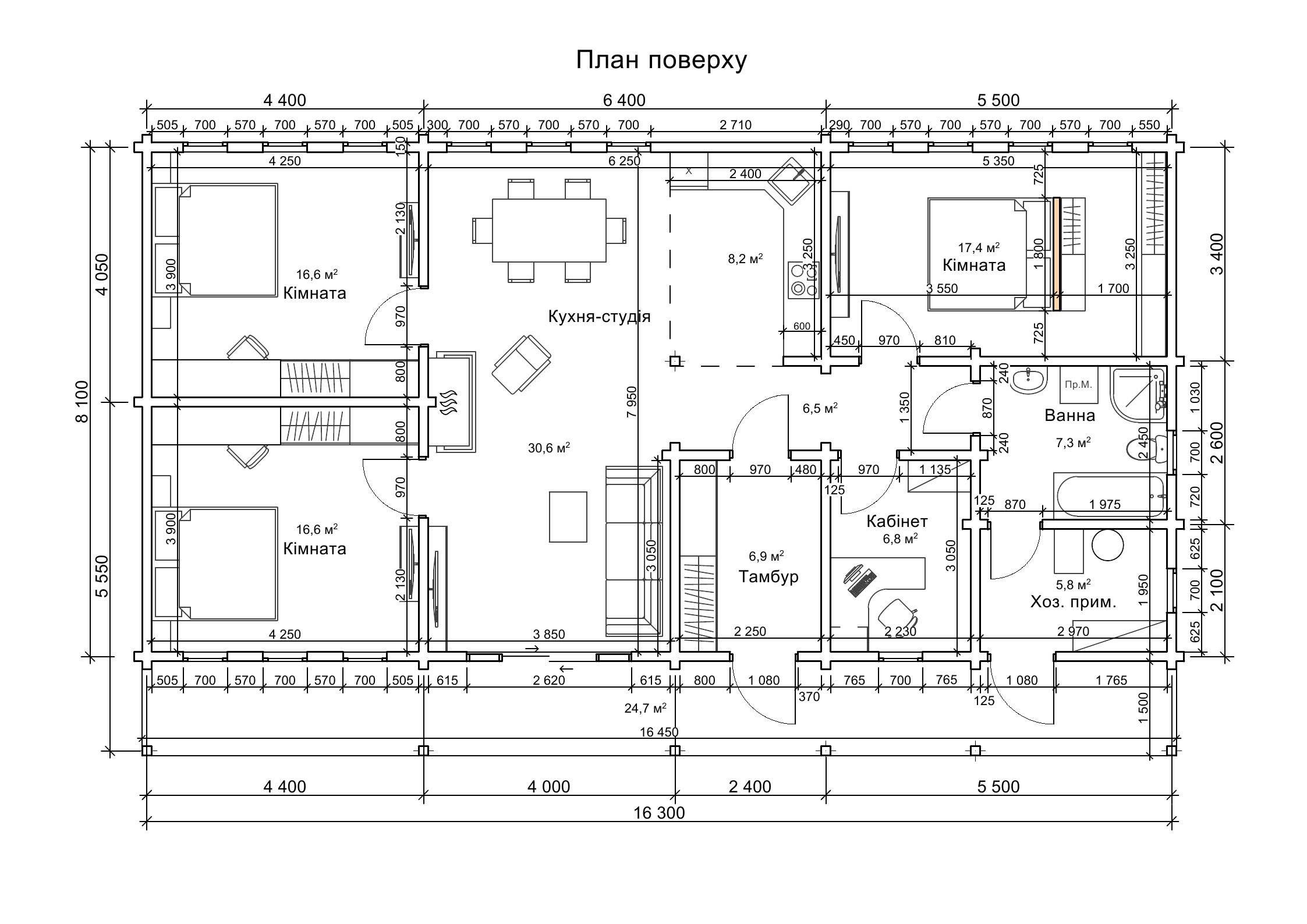
Ця перевага індивідуального підходу дає можливість отримати простір, в якому кожний метр працює саме на вас. Ось чому, ми відокремили в каталозі проектів спеціальну категорію - Особливості будинків, де показуємо, які приміщення можна спланувати в будинку. Переглядаючи проекти «Домінант», клієнти часто знаходять не просто будинок, а натхнення для створення свого персоналізованого житла - такого, що повністю відповідає їхнім уявленням про комфорт і затишок. Саме так народився будинок для нашого клієнта, який надихнувся двома проектами - «Міріца» та «Пандора». В першому йому сподобалося планування, в другому - стильний дизайн. Нашим завданням стало поєднання обох варіантів в одну споруду з врахуванням особистого бачення власника. Так ми збудували одноповерховий маєток подовженої, прямокутної форми під односхилим, майже пласким дахом. Лаконічність та витонченість стали визначальними рисами споруди. Щодо внутрішнього наповнення, то ми ще додали в плануванні будинку кабінет, тому що господарю важливо мати можливіть працювати вдома.
Оптимальне використання простору
Хтось мріє про компактне затишне житло, де все під рукою, а хтось про просторий родинний маєток - справжнє родове гніздо. Але незалежно від розміру будинку, важливо виважено спланувати кожен його метр, щоб житло було зручним і функціональним. Площа будинку та його кімнат - це перше, що розраховують при виборі проекту. Від неї залежить кількість поверхів і розташування кімнат в оселі.
Якщо бюджет обмежений, важливо максимально ефективно використати простір. Кожен метр має працювати на вас: продумане планування з оптимальним набором приміщень, жодного зайвого коридору або перегородки, які ускладнюватимуть догляд за будинком.
Навіть невеличкий котедж може стати затишним і зручним, якщо адаптувати його під ваш стиль життя. Особливо цікавим нещодавно став індивідуальний проект пересувного будинку для тих, чий сенс життя полягає у подорожах. Котедж розміром 4х9 м з просушеного брусу 200*150 мм був зроблений за бажанням замовника спеціально для встановлення на рухому платформу. Усередині контейнера передбачена кухня і санвузол. У протилежному від кухні кутку є кімната, яка відгорожена за допомогою вбудованої шафи, що й послужила перегородкою. Таким чином, компактний простір використовується оптимально і містить всі необхідні умови для створення комфорту під час переїздів. Він може використовуватись і як стаціонарна, і як пересувна конструкція. Така споруда чудово підходить як для особистого користування, так і для бізнесу - кемпінгів, мотелів чи баз відпочинку. Вона невеличка і проста у догляді. Такий будинок швидко себе окупить, а деревина викличе відчуття більшої близькості до природи. Не дивно, що наш клієнт із Чехії вирішив зупинитися саме на дерев’яному мобільному котеджі. Але як є бажання і фінанси зводити великий дім - чому б і ні. Тільки варто зважити витрати на опалення, прибирання та поточне обслуговування великої площі. Якщо ж все-таки більшість часу ви проводите в роботі чи подорожах, можливо, саме компактний, добре продуманий будинок стане кращим вибором.
Персоналізація бюджету та комплектації будинку
На етапі проектування важливу роль грає індивідуальний підбір матеріалів під ваш смак і фінансові можливості. Передбачивши всі витрати на початку, в кінці ви отримаєте оптимальне співвідношення між якістю, функціональністю та вартістю. Для того, щоб ви краще розуміли можливості такої персоналізації, подивіться, як ми адаптували готовий проект «Корзан» з каталогу «Домінант». Замовник забажав зробити зміни, які б ще більше покращили будиночок, на його погляд. Таким чином, над навісом тераси з’явився чудовий балкон, який додав споруді декілька значущих метрів. Ще однією важливою зміною в цьому проекті став вибір матеріалу для стін - замовник вирішив відійти від класичного сухого профільованого бруса й надав перевагу оциліндрованій колоді. Таке рішення одразу змінило настрій усього будинку: округлі форми надали фасадам м’якості й особливої казковості. Саме за цю атмосферність і зовнішню виразність колодчасті будинки так люблять прихильники затишної архітектури. Щоб всередині будинку був завжди приємний мікроклімат - теплий взимку і прохолодний улітку, в проект заклали соснові колоди діаметром 200 мм. Це оптимальна товщина дерев’яних стін по периметру, яка забезпечує всесезонний комфорт. А от частина внутрішніх перегородок виконується каркасним методом. Це дає змогу зекономити на стіновому матеріалі, полегшити конструкцію і додати трохи легкості в інтер’єр з колод. В результаті індивідуального доопрацювання готового проекту «Корзан» клієнт отримав простір, повністю адаптований до його уявлення про ідеальний будинок - не просто дачу для вихідних, а повноцінне житло, в якому хочеться жити щодня.
Персональний підхід стосується не лише проектування, а й комплектації будинків. Базовий комплект за замовчуванням включає все необхідне - і стіни, і крокви, і всі конструктивні елементи. Але якщо замовник хоче зробити щось по-своєму - будь ласка. Отже, наш клієнт вирішив самостійно зайнятись каркасом даху. Ми з легкістю адаптували комплектацію - підготували лише зруб, без кроквяної системи, і все чітко врахували на етапі виробництва.
Нам довіряють проекти будь-якої складності, бо ми не просто будуємо - ми слухаємо і розуміємо тонкощі. Кожну будівлю можна допрацювати, змінити, підлаштувати під ваші ідеї. Ми відкриті до діалогу і з радістю допомагаємо реалізовувати найсміливіші задумки. «Домінант» - це завжди індивідуальність, професійність і справжнє бажання зробити для вас дім, у якому ви станете щасливішими!

























