- Статті
- 0 вподобання
- 5025 покази
Що може бути краще, ніж провести вихідні або зупинитися в дорозі у мальовничому куточку природи на свіжому повітрі і з відмінною кухнею? Хіба що поселитися в елітному дерев’яному готелі на березі моря, а краще океану, з меню «все включено»! Люди цінують своє здоров’я, свій спокій і вибирають дерев’яні будиночки для того, щоб провести відпустку з користю і наповнитися силами. Для тих, хто бажає вигідно розпорядитися своїм капіталом і вкласти його в будівництво дерев’яного готелю, компанія «Домінант» розробила каталог готельних комплексів, котеджів і баз відпочинку для зручного і легкого вибору підходящого проекту. Наше завдання сьогодні - стати вашим навігатором серед безлічі цікавих варіантів будівель.
Рекомендації з планування готельного комплексу від компанії «Домінант»
Спочатку при виборі готелю варто керуватися цілями його придбання і місцем розташування. Будівля має бути місткою, практичною, продуманою до дрібниць і вписуватися в природний пейзаж місцевості, прикрашаючи і доповнюючи, а не виділяючись із загального вигляду. Ми розробили невеликі підказки для тих, хто ще не стикався з готельним бізнесом, але вже чітко сформував своє бажання присвятити цьому напрямку найближчі пару років. Рекомендуємо, в першу чергу, ознайомитися з умовами оренди землі, на якій ви будете зводити готель. Далі варто уточнити поточні витрати на комунальні та інші платежі. Також варто врахувати витрати на створення проектів різних необхідних інженерних систем. І тільки після цього вибирати саму конструкції, з огляду на ціну будови і її зведення. Не варто забувати і про внутрішнє оздоблення, яка буде привабливою для гостей готелю. Дизайн і меблювання - одні з вирішальних факторів по вибору місця відпочинку для кожного з нас. Ефектне оформлення готелю становить, як правило, значну суму витрат.
Є безліч параметрів, властивих саме дерев’яним будівлям, за якими ви можете зорієнтуватися у своєму виборі. Так, як ми використовуємо оциліндровану колоду, сухий профільований брус або подвійний брус з утепленням, то вартість готових виробів значно економить ваш бюджет, адже за рахунок дерев’яної конструкції стін знижено навантаження на фундамент будинку, а це знижує матеріаломісткість будови. Рекомендуємо обов’язково зайти на нашому сайті в розділ «Технології виробництва» і ознайомитися докладніше з особливостями всіх брусових будівель в різному виконанні. Також важливим фактором вибору нашого проекту готелю, є той факт, що багато проектів від нашої компанії здаються під ключ, що вельми зручно і дозволяє позбутися безлічі клопоту. Готельні комплекси від дачних будиночків відрізняються своїми масштабами, кількістю поверхів і масивністю конструкцій. Так само вони можуть бути сезонного типу і використовуватися для сталого функціонування і взимку, і влітку.
Етапи проектування готельних комплексів
Можна розділити проектування готельного комплексу на три етапи: аналіз, розробка концепції та створення проектної документації. На першому етапі аналізується простір місцевості. Тут важливо вже володіти інформацією про вартість землі, необхідної документації на неї та узгоджується проект будівлі з необхідними офіційними установами, отримуються всі необхідні дозволи. З огляду на наші рекомендації, варто зауважити, що дизайн і меблювання повинні бути обрані вже на другому етапі для створення проекту будівлі перед його затвердженням. У цей момент аналітики і архітектори враховують всі можливі варіанти проектування і приступають до безпосередньої реалізації проекту на папері. Обов’язково нагадаємо вам, що ви можете замовити в компанії «Домінант» дизайн інтер’єру разом із замовленням будівництва зрубу. Після затвердження макета можна приступати до третього етапу - розробки проектної документації. І тільки після цього приступають до реалізації проекту в життя.
Таким чином, від ідеї ми приходимо до реалізації чіткого плану в дію. Це вже не мрія, а гідна мета, яка має гарну перспективу приносити дохід. Тепер ви вже точно знаєте як буде виглядати ваша мрія і який рівень витрат вам потрібен для її реалізації. З усіма етапами проектування та створення готельного комплексу вам із задоволенням допоможе компанія «Домінант». Але для початку найприємніше - вибір того, як буде виглядати ваша мрія. Пропонуємо вам кілька найпопулярніших проектів готелів від нашої фірми.
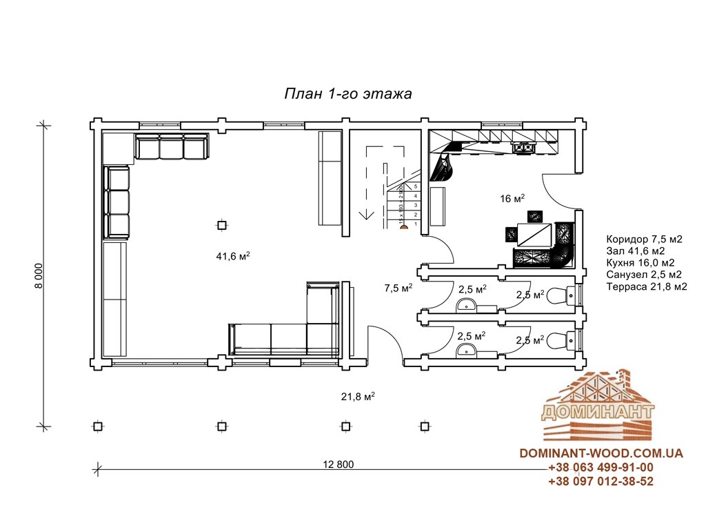
Готель з оциліндрованих колод: проект «Гостедар»
Цей проект хороший з усіх сторін, як не глянь. Включає в себе 8 номерів з індивідуальними санвузлами. Його симетрична грація і біле мереживо зрубу більш імпонують лісовим пейзажам. Сходи, в даному випадку, виступають як окремий елемент декору і тераса доповнює загальний вигляд. Ця будова створена бути базою відпочинку і в комплекті з невеликим рестораном буде чудовим комплексом для відпочиваючих, де можна не тільки відпочити, а й смачно перекусити. Перевага проекту «Гостєдар» в тому, що за площею займаної території він дуже компактний і при цьому досить місткий.
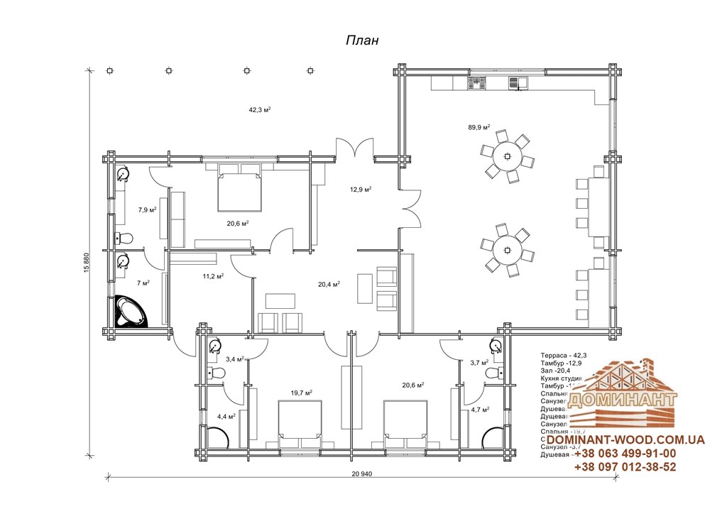
Готель з сухого бруса: проект «Венсора»
Незвичайність цього проекту зашкалює. Тут і нестандартне планування приміщення, і унікальний екстер’єр. Виглядає проект солідно і комфортно, це враження навіть посилює внутрішня обстановка. Величезний зал створений для колективного проведення часу, а велика кухня для гучних заходів. Другий поверх передбачає дві величезні спальні. Дуже сучасний варіант вирішення простору для літнього відпочинку в спеку. Тінь тераси і її розташування допоможе насолодитися чудовим краєвидом околиць в прохолоді, а вечорами - красивим заходом. Мансардні вікна розташовані в ряд по обидва боки будинку. Це забезпечить спальням набагато більше світла, ніж у звичайних проектах і додасть будинку ультрасучасний шик. Використовуючи сухий брус, дизайнер підкреслив родзинку споруди і зробив акцент на іноземному походження проекту, оскільки замовлення було зроблено для закордонного клієнта. Варто відзначити те, що проект «Венсора» може виступати як частина готельного комплексу, так і як окремий проект таунхауса, місткий для кількох сімей.
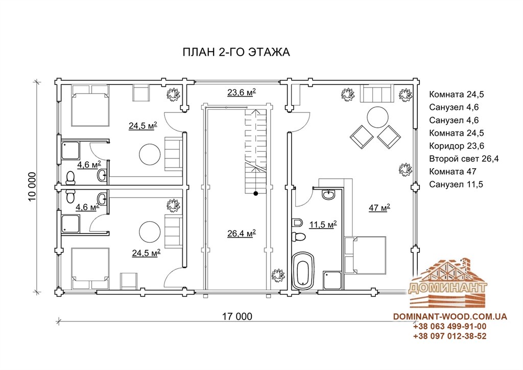
Готель з подвійного бруса з утепленням: проект «Дамейя»
Подібні проекти дуже вигідно будуть виглядати на гірських і морських курортах. Абсолютно самостійний проект може бути включений в ряд лінійок подібних будівель, як велика база відпочинку. Тут є загальна кухня-студія на три номери, яка чудово поєднує в собі і функцію залу, де можуть збиратися всі відпочиваючі для загальних розваг. Також це добре економить простір, але не заважає індивідуальному відпочинку. Для баз відпочинку така комплектація є перевагою ще й тому, що дає можливість створити економ варіанти для відпочиваючих і розширити свої функціональні можливості і місткість. Готельні будинку такого типу підходять як для індивідуальних проектів, так і для використання їх в групі. Приватним господарям, які хочуть створити мініатюрні готельні комплекси, проект «Дамейя» буде ідеальний і прибутковий.
Одноповерховий гостьовий котедж: проект «Леро»
Відмінна складова літньої морської бази відпочинку котедж «Леро». Цей компактний будиночок 4 на 6 м2 виглядає акуратно і привабливо, стоячи на піску недалеко від лінії моря. З боку створюючи враження мініатюрності, котедж все ж оснащений індивідуальним санвузлом, терасою і кухнею-студією. Перевагою цього проекту є можливість отримати його під ключ. Хоча компанія «Домінант» завжди йде на зустріч своїм клієнтам і готова будь-який зі своїх проектів підготувати під ключ. Перевагою проекту також виступає те, що стовпчастий фундамент «Леро» створений для хиткою ґрунту, а значить можна спати спокійно, будучи впевненим, що ви перебуваєте в надійній конструкції.
Гостьовий котедж з мансардою: проект «Променад3»
Проекти з мансардою завжди виглядають імпозантнішими і розкішнішими за інших. Даний котедж розрахований на те, що він буде йти в комплексі великого гостинного двору або готелю, розташованого в зеленій зоні. Крім вигідного екстер’єру, мансарда надала можливість створити простір для тераси на другому поверсі. Такі номери, як у проекті «Променад3», створені накшталт VIP, адже кожен з них, як на першому, так і на другому поверсі, володіє великою спальнею і окремою терасою. Це дає високий рівень комфорту і самітність, за якою найчастіше ми і приїжджаємо відпочивати на природу.
Двоповерховий готель: проект «Амарінта»
Цей проект може виступати партнером котеджу «Променад 3» так, як оснащений 4 номерами і теж розрахований на поєднання з ресторанним комплексом. Зовні вони разюче відрізняються, але в контексті різноманітності місцевості, можуть йти в одному комплекті. Готель Готель «Амарінта» виглядає компактнішим. Оснащений чотирма номерами з великими спальнями, у кожної з яких своя тераса. Зрозуміло, що цей готель також потрапляє в сферу VIP номерів. Перевага тут полягає в тому, що немає суміжних перестінків, що збільшує усамітненість і робить можливості цих номерів ширшими. Адже тут можуть жити як представник однієї компанії, так і мешканці, які потребують повної самоти.
Триповерховий готель: проект «Бранда»
Створено цей проект для великого заміського комплексу відпочинку, як один з корпусів. Він вражає з першого погляду своїми масштабами і говорить про те, що готовий приймати великі компанії з максимальним комфортом. Номери розташовані по чотири на кожному з поверхів із загальною терасою, що дає певний рівень комфорту і усамітнення. При цьому загальна тераса сприяє спілкуванню та новим знайомствам. Для підприємця, який планує масштабний підхід в готельному бізнесі, готель «Бранда» - прибуткове капіталовкладення.
Вілла для елітного відпочинку: проект «Гасент»
Елітна, фешенебельна вілла «Гасент» являє собою комфортабельне місце для відпочинку, а незвичайний дизайн в стилі Вінсента Ван Гога робить проект ще більш привабливим для туристів. Величезна кількість терас, своя лаунж-зона, друге світло - все говорить про найвищий рівень відпочинку. Уява, та й реальність теж, малюють наявність басейну і тропічних рослин в ландшафті. Ця вілла створена приймати велику кількість гостей на шикарних вечірках. Власник такого проекту явно успішна людина, яка може собі це дозволити. А власник мережі таких вілл, який здає їх в оренду, успішний бізнесмен, який знає толк в якості і комфорті.
Всі перераховані проекти можуть бути реалізовані в безлічі варіацій і доповнень, а також входять до величезної колекції проектів нашої фірми. Компанія «Домінант», при цьому, готова спеціально для вас і по вашим вимогам розробити унікальний проект готелю або котеджу відпочинку, який буде відповідати вашим смаком і передавати ваш характер, а також ідеально вписуватися в місцевий ландшафт, зберігаючи його первісність. Вдалого вам вибору!



































