- Статті
- 0 вподобання
- 1079 покази
- Планування котеджу з дерева, Стиль дерев'яного будинку, Корисні поради, Технології будівництва
Побудувати будинок своєї мрії означає не просто підібрати матеріали та зробити креслення стін, а створити простір, де пануватимуть затишок, тепло та унікальна атмосфера. Ми впевнені, що кожна оселя має бути відображенням особистості господарів, отже, пропонуємо рішення, які відповідають різним стилям життя та вподобанням. Компанія «Домінант» створює проекти будинків з дерева або проекти з каркасних модулів, які поєднують сучасний дизайн, функціональність і екологічність. Будинки, збудовані нашими майстрами для клієнтів з багатьох куточків світу, свідчать про різноманітність прагнень і смаків замовників. Але для кожного ми зробили щось дійсно особливе - чи то був індивідуальний проект, чи типовий з каталогу. Сьогодні знайомимо вас з вподобаннями наших клієнтів, щоб надихнути на власний будинок мрії.
Популярний вибір проектів будинків з оциліндрованих колод
Будинки з оциліндрованих колод - це класика, яка ніколи не втрачає популярності серед більшості клієнтів. Навіть в спекотних Еміратах ми встановили сосновий зруб по проекту «Ноуваль», який став справжнім ексклюзивом посеред місцевих пальм. Такий вибір ідеально підходить для тих, хто цінує гармонію з природою, прагне створити затишок і особливу атмосферу в кожному куточку свого дому. У цьому розділі ми зібрали найпопулярніші проекти котеджів з оциліндрованих колод, які стали улюбленцями наших клієнтів.
«Алегро»: проект будинку 6 на 8 м
«Алегро» дуже привабливий і одним своїм виглядом транслює атмосферу затишку й тепла. Він ніби зійшов зі сторінок дитячої, доброї казки, де все можливе, а добро завжди перемагає зло. Погляд на цю хатинку милують приємні округлості колодчастих стін, мальовничий балкончик та масивний, мансардний дах. В таких дахах можна робити мансардні вікна, які відкривають всю красу неба прямо з кімнат. Слово «алегро» в перекладі з італійської означає «весело і бадьоро». Цим терміном позначають швидкий темп в музиці. Бадьорість духу, веселощі і насичений комфортом ритм життя в будиночку «Алегро» обирають клієнти як в Україні, так і за кордоном.
«Алегро» може слугувати будинком для постійного проживання або дачним котеджем. В обох випадках задовольняє всі вимоги по комфорту. Має дуже зручне внутрішнє планування в габаритних розмірах 6 на 8 м, яке включає два поверхи з балконом, терасою, невеличкою кухнею, вітальню, спальню і санвузол. Раціональне планування та стандартний розмір 94,6 м² робить проект недорогим і доступним для більшості бажаючих будуватись. Наявність лише однієї спальні трохи обмежує можливість розмістити гостей на ніч, але тимчасово в цьому допоможе зал, де достатньо місця, і можна поставити пару диванів. Один з наших клієнтів поділив простір мансарди на дві просторі кімнати по 13 м². Інший клієнт з Польщі придбав у нас комплект будинку «Алегро» і самостійно займався його будівництвом, адже для здійснення мрії немає кордонів. Навіть якщо майстри «Домінант» не можуть виїхати на монтаж за кордон через заборону у зв’язку з війною, наші клієнти успішно складають пронумеровані нами комплекти будиночків, наче конструктор. Котедж «Алегро» є яскравим взірцем житлового котеджу з оптимальним співвідношенням ціна/якість. Він вартий особливої уваги, якщо ви шукаєте максимально сприятливе для здоров’я житло, зроблене повністю з натурального матеріалу, та ще й за прийнятні кошти!
«Міладіна»: будинок 11 на 9,8 м з трьома спальнями
Один із найяскравіших проектів у нашому портфоліо - «Міладіна». Разом з його будівництвом господар отримав суттєві переваги життя в котеджі з трьома великими спальнями та великими терасами. Просторий, світлий і наповнений теплом, маєток покликаний стати ідеальним місцем для щоденних радощів і родинних свят. Планування проекту розташоване на площі 160,8 м². Широта простору всередині будівлі створює ідеальні умови для реалізації цікавих дизайнерських рішень. Тільки уявіть: велика вітальня площею 31 м² для спільних вечорів, затишні спальні для кожного, а ще - відчуття спокою, що панує з самого порога. Це справжній острівець затишку, де кожен мешканець знайде свій куточок для відпочинку, натхнення чи творчості.
Будівництво трикімнатного маєтку - це вибір людей, які думають сьогодні про завтра. Це про затишок, інвестицію в сім’ю та можливість мати дім, який підлаштовується під вас, а не навпаки. Сучасний світ, сповнений вірусами і війною, диктує свої умови, і дедалі більше людей працюють вдома. Одна зі спалень маєтку «Міладіна» може стати ідеальним кабінетом з природним освітленням і тишею для продуктивної роботи. Ми знаємо, як втілити вашу мрію про дім, і готові побудувати для вас цей розкішний маєток. «Міладіна» просто створений для тих, хто мислить прогресивно та цінує комфорт, екостиль і сімейний затишок!
«Барон»: одноповерховий будинок 10 на 13 м
Ця модель вже підкорила серця багатьох господарів, які високо оцінили якість наших робіт. Просто погляньте на карту реалізованих проектів «Домінант» - там кожен будинок розповідає свою історію затишку. Проект «Барон» - це втілення ідеального житла, де враховано кожну дрібницю для комфортного життя. Саме житла, підкреслимо, а не просто дачного чи курортного котеджу. Назва «Барон» говорить сама за себе - це дім для тих, хто може дозволити собі найвищий рівень комфорту, природний стиль та найвищу якість. Тут гармонія архітектури й функціональності створює простір, який задовольнить найвибагливішого власника та стане місцем, де кожен мешканець почуватиметься особливим. В проекті «Барон» всі зручності сплановані на одному рівні, тому господарям не доведеться ходити по сходах в буденному житті. Але знадобиться немаленька ділянка землі, щоб поставити цей будинок, та ще й залишилось місце для садочку або лазні поруч.
Унікальні особливості проекту «Барон», які роблять його по-справжньому затишним і комфортним, це наявність трьох спалень, камін і роздільний санвузол. Хоча всі наші планувальні рішення носять рекомендаційний характер, складно уявити дерев'яний будинок без каміна. Адже що може бути краще, ніж зимовий вечір, проведений біля теплого вогню в компанії рідних? Камін - це не просто елемент декору, а символ домашнього затишку, що створює вдома неповторну атмосферу. Розділений санвузол - ще одна важлива деталь. Завдяки такому рішенню у ванній кімнаті з’являється місце для душової кабінки, що додає зручності для кожного члена родини. Проект «Барон» розроблено з урахуванням максимальної функціональності. Тому, коли настане час втілити вашу мрію про власний будинок, приділіть увагу даному проекту, адже найвимогливіші клієнти «Домінант» вже оцінили всі його переваги!
Пропозиція проектів котеджів з сухого, профільованого бруса
Котеджі з сухого, профільованого бруса - це гармонійне поєднання природної краси дерева з сучасними технологіями. Завдяки ретельному висушуванню прес-вакуумним методом, струганий брус зберігає свої властивості на довгі роки, забезпечуючи стабільність конструкції без значної усадки, що притаманна непросушеній деревині, та комфортний мікроклімат у будь-яку пору року. У цьому розділі ви знайдете сучасні проекти котеджів з сухого, профільованого брусу - як суцільного, так і клеєного, які обирають наші клієнти для комфортного життя.
«Олеандра»: житловий котедж на 113,8 м² з двома спальнями
Проект «Олеандра» має цікаву історію. Адже він з’явився в нашому каталозі після того, як ми побудували цей будинок повністю на основі індивідуальних запитів клієнта. Розташований на Закарпатті, він став втіленням усіх уявлень господаря про свій комфорт і затишок, значить цей проект гідний уваги та здатен послужити гарною оселею для більшості наших замовників. «Олеандра» містить дві просторі спальні, затишну вітальню, поєднану з кухнею, терасу для приємного відпочинку на свіжому повітрі, тепловий тамбур і технічні приміщення. Такий набір кімнат ідеально відповідає потребам родини, забезпечуючи зручність і можливість насолоджуватися природою безпосередньо біля будинку. Всі приміщення розташовані на одному рівні, що додає додаткового затишку і практичності. Загальна площа котеджу, включно з терасою, складає 113,8 м². Видовжена форма будівля має розміри 8,3х17,6 метрів.
Товщина брусу 200 мм забезпечує високі теплоізоляційні властивості, еквівалентні майже 90 см цегляної стіни. Отже, будинок «Олеандра» стане затишним прихистком навіть у найсуворіші зимові дні, а влітку тут завжди буде прохолодно. Деревина сосни не лише тепла, але й «дихає», створюючи оптимальний мікроклімат у приміщенні. Стіни майже не потребують оздоблення, рекомендується лише фарбування. Це найздоровіша оселя для здоров’я людини, яку тільки можна уявити! «Олеандра» - це більше, ніж будинок, це місце, де кожен куточок був заздалегідь продуманий для покращення вашого життя.
«Ріджен»: будинок 10,4 м на 8,5 м для родини
Статний і сучасний, цей будинок із сухого профільованого бруса 200×150 мм втілює стиль, практичність та витончену естетику. Він ідеально відображає ритм сучасного життя свого власника та його бездоганний смак. Проект «Ріджен» теж має цікаву історію створення в Ясногородці Київської області.
Натхненням для замовника став один із наших готових проектів «Кальміс3к». Проте, бажання адаптувати ідею під власні потреби призвело до створення особливого дизайну, виконаного з використанням сухого профільованого бруса. В результаті «Ріджен» став втіленням сучасності, натуральності й елегантності. На площі 144 м² розмістилися три спальні по 12 м², простора вітальня, санвузол і технічна кімната. Головною родзинкою став простір другого світла над вітальнею, який додав величності та освітленості оселі.
«Ізарна»: чотирикімнатний будинок з навісом для авто
Наш клієнт, що вибрав проект «Ізарна», мріяв про власний будинок з мансардою. Також замовник побажав мати біля будинку стильний навіс для автомобіля. Завдяки цьому рішенню «Ізарна» ідеально підходить багатьом клієнтам, у яких автомобіль є щоденним засобом пересування. У цьому будинку переплелися мінімалізм і функціональність. Мансардний поверх і тераса відкривають безліч можливостей для реалізації найсміливіших дизайнерських ідей, роблячи кожен куточок особливим. Габарити 11,6×14,4 м дозволяють створити простір, де все продумано для комфорту та затишку сімейного життя.
Проект передбачає три спальні та великий, просторий зал, що становить студійний простір разом з їдальнею. Одна з них завбачливо знаходиться на першому поверсі, що зручно для гостей або тих, кому важко підійматися сходами. Також на першому рівні є тамбур, топкова, просторий санвузол, велика вітальня з виходом на літню терасу і кухня. Другий поверх - це справжній рай для родини: дві великі спальні, санвузол і величезний хол площею 40,5 м². В будинку «Ізарна» завжди знайдеться місце для теплих сімейних зустрічей або затишних моментів усамітнення. Кожен мешканець отримає свій куточок для відпочинку, а простора вітальня й літня тераса об’єднають усіх для незабутніх спільних моментів.
Найкращі варіанти утеплених котеджів з подвійного брусу
Утеплені котеджі з подвійного брусу - це втілення сучасного підходу до будівництва енергоефективних будинків. Завдяки подвійній конструкції брусу з шаром утеплювача всередині, такі котеджі забезпечують комфортну температуру в будь-яку пору року, мінімізуючи витрати на опалення. Ми щасливі запропонувати вам вибір будинків, з якими енергоефективність виходить на новий рівень, доповнюючи екологічність і створюючи теплий, затишний дім.
«Брілана»: будинок з трьома спальнями
Проект «Брілана» з’явився в результаті індивідуального підходу до створення затишного простору для життя. Розроблений спеціально для Іспанії, цей проект враховує всі особливості місцевого клімату й архітектурні традиції. Завдяки технології подвійного бруса з утеплювачем, стіни будинку ефективно утримують прохолоду в спекотні дні й зберігають тепло взимку. Це робить «Брілану» ідеальним вибором як для південних регіонів, так і для холодніших широт. Будинок площею 142 м² має зручні розміри 11,8×11,9 м і поєднує в собі функціональність та естетику. Зовнішні стіни виготовлені з подвійного бруса з утепленням, а внутрішні перегородки - з сухого профільованого бруса розміром 60×150 мм.
Просторе планування передбачає:
- Три спальні, дві з яких мають власні санвузли для максимального комфорту.
- Затишну вітальню - місце, де вся родина може збиратися разом.
- Функціональну кухню для приготування смачних обідів і вечерь.
- Робочий кабінет для тих, хто цінує комфортну атмосферу навіть під час роботи.
Цей одноповерховий будинок стане ідеальним варіантом як для затишного сімейного життя, так і для гостинного прийому друзів або використання у якості курортної вілли. Проект «Брілана» відповідає всім сучасним уявленням про комфортабельне життя. Плюс енергоефективна технологія дерев’яного домобудівництва гарантує економічність, екологічність і довговічність будівлі. Замовляйте будівництво будинку «Брілана» вже зараз, адже це перспективна інвестиція в затишок, комфорт і вашу мрію.
«Фанней»: будинок з великими терасами
«Фанней» - це вибір прогресивних людей, хто прагне жити сучасно й екологічно, а також оптимізувати свої затрати на життя. Завдяки технології подвійного бруса з утеплювачем, цей будинок не лише зберігає тепло, а й допомагає суттєво економити на опаленні. Він поєднує енергоефективність зі стильним дизайном, який одразу привертає увагу: асиметричний дах, вузькі вікна та чіткі геометричні лінії надають будівлі неповторного характеру. Цей не дивно, зважаючи на творчу особистість її господаря, який сам спланував свою оселю та довірив майстрам «Домінант» її будівництво з подвійного, утепленого бруса.
Тож в інтер’єрі «Фанней» переважає свобода простору та студійна концепція приміщень. У будинку все продумано для зручності, функціональності та задоволення господарів.
На першому поверсі розташовано:
- простора кухня-студія з каміном, що стане серцем дому;
- затишна спальня для гостей або членів родини;
- великий кабінет площею 22,9 м² для комфортної роботи вдома;
- передпокій, санвузол і тераса на 18,1 м² для приємного відпочинку на свіжому повітрі.
Другий поверх - це царство комфорту з величезною спальнею на 42,2 м² з гардеробною та власним санвузлом. Зі спальні передбачений вихід на простору терасу, де можна насолоджуватися панорамними краєвидами та надихатись на нові творчі відкриття. «Фанней» - це абсолютний вибір клієнтів та віддзеркалення характеру своїх господарів. Його незвичайний вигляд і продумане планування підкреслюють стиль життя, в якому є місце для роботи, відпочинку й теплих зустрічей з близькими.
«Каледос2»: маєток з утепленого брусу на 5 кімнат, площа 213,6 м²
Маєток «Каледос2» - це вдосконалена версія проекту «Каледос», яка стала ще масштабнішою, затишнішою і функціональнішою. У новій моделі збереглася витонченість архітектури та презентабельність, але додалися деталі, які роблять його справжньою мрією для великої родини. Перше, що привертає увагу - це високі вікна другого світла, які відкривають розкішну панораму і наповнюють будинок природним світлом. Два просторі тераси під надійними навісами створені для відпочинку на свіжому повітрі. Завдяки інноваційній технології подвійного бруса з утеплювачем, «Каледос2» дарує мешканцям комфорт у будь-яку пору року, зберігаючи тепло взимку та прохолоду влітку. Це найбільш вдалий вибір для такого масштабного будинку, адже в ньому дуже велика площа яку необхідно опалювати. Подвійна стіна з арболітом всередині завдяки своїй прекрасній термоізоляції допоможе господарю значно скоротити витрати на обігрів своєї великої оселі.
План будинку «Каледос2» розрахований на зручне проживання сім’ї, де кожен матиме власний простір, але й залишаться місця для спільного дозвілля. Перший поверх починається з просторого ґанку (16,9 м²) і тамбуру (5,7 м²) для розміщення взуття та верхнього одягу. Вітальня з каміном і другим світлом формують затишний осередок у центрі будинку. Також тут наявна окрема житлова кімната для гостей або старших членів сім’ї. Простора кухня-студія має окремий вихід на терасу (31,8 м²)- ідеальну літню їдальню. Другий поверх включає просторий коридор з видом на друге світло та велику ванну кімнату. Тут спланована головна спальня з гардеробною. Ще дві кімнати, які можна облаштувати під дитячі або гостьові. Унікальна особливість планування - це панорама другого світла, що створює відчуття простору та наповнює будинок затишком і легкістю. Усі рішення в проекті працюють на задоволення потреб мешканців і забезпечення комфорту для кожного.
Технологія утепленого брусу - це не тільки вибір клієнтів, а й наш особистий. Адже ми, як досвідчені фахівці дерев’яного будівництва обрали саме подвійний брус з арболітом для будівництва власного офісу «Домінант» - фірмової візитівки, яку відразу бачить кожен відвідувач нашого виробництва в с. Зарічани Житомирського району. Тому всіх закликаємо створювати своє щасливе життя в енергоефективному, екологічному та сучасному будинку, та самі є головним прикладом своїх прагнень і порад!
Новинки модульних котеджів для життя
Модульна технологія будівництва - це справжня революція у підході до облаштування комфортного життя, що поєднує швидкість зведення, естетику сучасного мінімалізму та функціональність. Завдяки сучасним можливостям поєднання багатьох матеріалів у модульній конструкції, такий будинок можна створити в рекордні терміни без втрати якості. Нові проекти модульних котеджів «Домінант» враховують актуальні тенденції дизайну, енергоефективності та комфорту, роблячи їх ідеальним вибором для тих, хто прагне швидко реалізувати свою мрію про власний дім. Пропонуємо вам новинки житлових модульних будинків, які вражають своєю зручністю та стильним виглядом, бо увібрали в себе найкращий досвід попередніх житлових будівель, виконаних класичним методом.
«Аванті»: комфортабельний котедж з двома спальнями
Перший погляд на цей будинок закохує: тепла деревина фасадів контрастує з елегантним холодом металу, створюючи неймовірно виразний образ. Великі панорамні вікна тягнуться від підлоги до стелі, наповнюють будинок світлом і дарують можливість споглядати краєвиди прямо з вашої вітальні. Адже проект «Аванті» створений для тих, хто цінує комфорт і прагне жити ближче до природи. Компактний, але функціональний будинок площею 91,8 м² ідеально підходить для невеликої сім’ї або пари, яка мріє про затишок і спокій.
У кожному квадратному метрі «Аванті» відчувається увага до деталей. Габарити будівлі 6,8×13,5м оптимально поєднують функціональність і естетичну складову простору. В будиночку сплановані дві просторі спальні по 11,2 м², вітальня площею 16,3 м², кухня, санвузол і передпокій, які додають практичності, а головне - затишна тераса, де ви зможете проводити час на свіжому повітрі і відчувати повною мірою переваги життя на природі у власному будиночку.
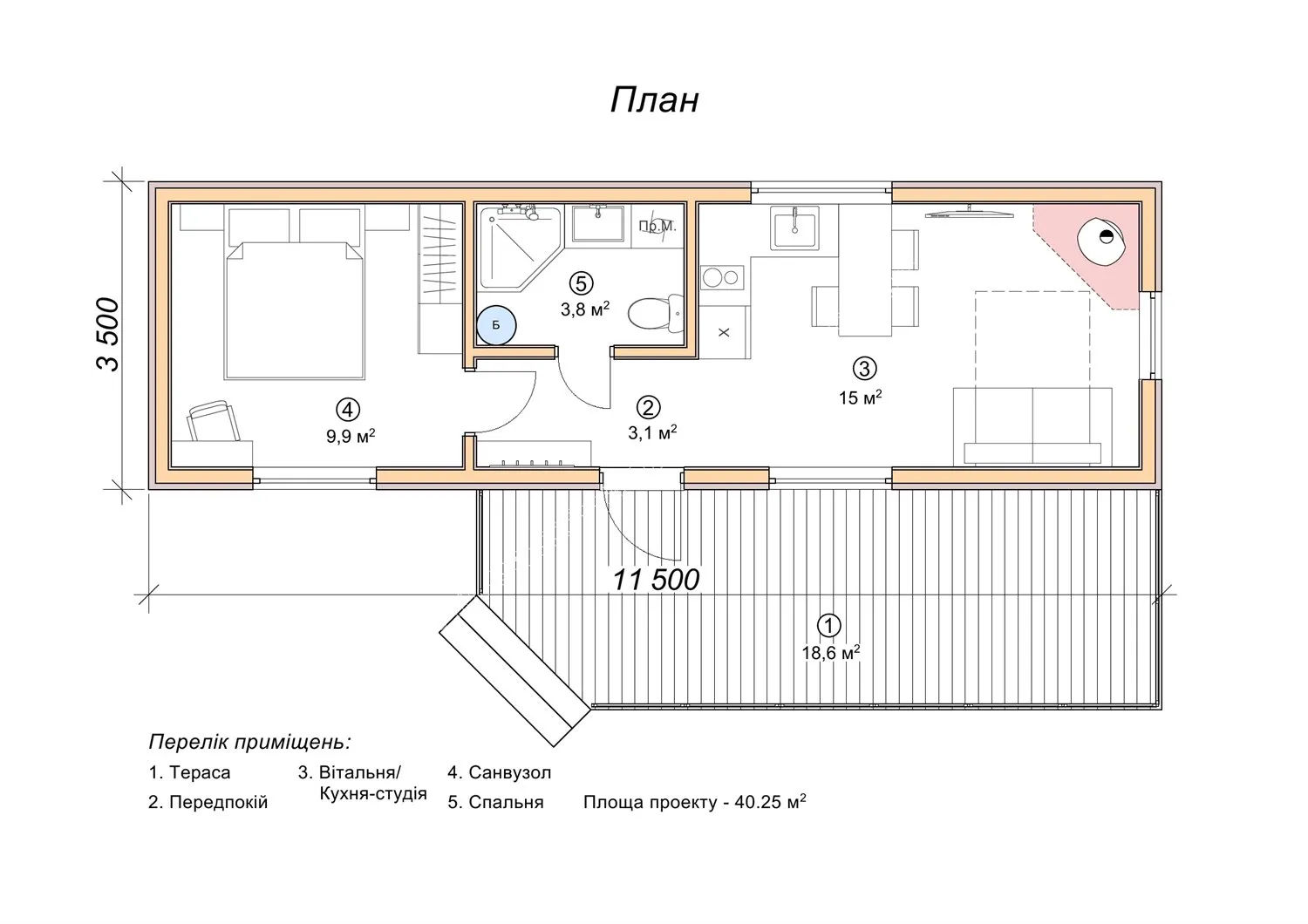
«Тало»: двокімнатний модульний будинок з великою терасою
Попри компактність розміром 40,25 м², цей будинок має все необхідне для комфортного життя. Габарити 3,5×11,5 м забезпечують економію місця на вашій ділянці, залишаючи простір для саду чи квітників. Планування продумане так, щоб ви почувалися максимально комфортно. А саме це передпокій, вітальня з кухнею-студією, спальня, санвузол. Лаконічний дизайн з великими вікнами наповнює приміщення світлом, а простора тераса площею 18,6 м² додає розкішного вигляду.
Будинок, виконаний за каркасною технологією, легкий і водночас міцний. Завдяки модульній конструкції його швидко зводять на ділянці, а після монтажу він одразу готовий до заселення. Усі модулі виготовляються на заводі до повної готовності, включаючи оздоблення та встановлення необхідного обладнання. Потім вони швидко монтуються на вашій ділянці, утворюючи єдину каркасну конструкцію. Обирайте комплектацію «стандарт» або «преміум», переглядайте деталі на сторінці й дізнавайтеся більше про всі можливості будиночка «Тало».
Найближчим часом ми плануємо наповнювати каталог каркасних проектів більшою кількістю моделей, тому обов’язково слідкуйте за новинами блогу «Домінант». Звертайтеся за нашими контактами, щоб обговорити ваш ідеальний проект, будь то будинок з дерева чи каркасних модулів, і почати втілювати мрію про затишне житло просто зараз!




































































