- Статті
- 0 вподобання
- 473 покази
- Планування котеджу з дерева, Стиль дерев'яного будинку, Інтер'єр будинку з брусу, Ціна та комплектація будинку
Люди здебільшого обирають певні архітектурні рішення не тому, що так «потрібно за нормами», хоча й це дуже важливо, а тому що їм це справді подобається. Панорамні вікна, простір без зайвих перегородок, тераса як продовження вітальні - усе це викликає емоції та народжує мрії. Ще на етапі створення проєкту так хочеться надихатися передчуттям проживання у власній оселі! Ось чому ми зібрали п’ять архітектурних рішень, які сьогодні стабільно залишаються у фаворитах, як в Україні, так і в Європі. Пропонуємо обрати те, що відгукується саме вам, або поєднати кілька і створити власний, унікальний будинок!
1. Панорамні вікна та скління «в підлогу»
Панорамні вікна та скління «в підлогу» дає відчуття простору і виглядає неймовірно гарно. Але давайте будемо чесними - сьогодні панорамні вікна більш актуальні для закордонних замовників. І причина очевидна. В наших реаліях затяжної війни великі площі скла мають свій серйозний мінус. Вибухова хвиля або уламки можуть розбити скло, а великі віконні площини в такому випадку становлять підвищений ризик травмування осколками. Ігнорувати цей фактор зараз просто не можна. Саме тому, якщо ви все ж мрієте про панорамне скління, варто одразу закладати додатковий захист. Загартоване або триплекс-скло, яке не розлітається на дрібні уламки. Спеціальні протиосколкові плівки. Алюмінієві або сталеві ролети, що створюють фізичний бар’єр. Краса будинку, звісно, важлива. Світло важливе. Але ще важливіше, щоб у вашому домі було безпечно. І якщо поєднати естетику з продуманими технічними рішеннями, панорама може залишитися частиною проєкту без зайвих ризиків.
Якщо ж уявити мирний час, як ви в комфорті власної оселі ніби зливаєтесь з природою зовні: сніг тихо падає за склом, влітку видно зелений сад, а захід сонця стає частиною інтер’єру - це, насправді, прекрасно. Панорамне скління наповнює будинок світлом, робить кімнати візуально більшими й додає легкості навіть компактному плануванню. При цьому панорамні вікна - це не лише про естетику. Сучасні енергоефективні склопакети добре утримують тепло взимку та захищають від перегріву влітку, тому будинок залишається комфортним у будь-яку пору року. Великі світлові прорізи також роблять фасад більш сучасним і виразним. Саме тому скління «в підлогу» давно перестало бути рідкісним рішенням і стало одним із найулюбленіших варіантів у приватному будівництві.
Дуже привабливим і стильним прикладом будинку з панорамним склінням, ще й оснащеним парилкою, виступає наш проєкт «Ейва». Це вибухове поєднання зовнішньої естетики, природної деревини та комфортного планування. Тут ви точно знайдете все, чому радітимуть ваші серце і очі!
2. Відкрите планування (open space)
Відкрите планування (open space) - це рішення, коли кухня, їдальня та вітальня об’єднані в один простір без капітальних перегородок. Такий підхід робить будинок візуально більшим, світлішим і зручнішим для щоденного життя. Усе відбувається в одному середовищі: готування, спілкування, відпочинок. Простір не розбитий вузькими коридорами чи зайвими стінами, тому навіть будинок середньої площі виглядає просторим і легким.
Популярність open space пояснюється простотою і комфортом. Сім’я перебуває разом, навіть займаючись різними справами. Великі вікна, вихід на терасу, кухонний острів або обідній стіл стають центром життя в будинку. Водночас зонування зберігається - його створюють світлом, меблями, різними рівнями стелі або підлоги. Окрім естетики та комфорту, open space має ще й практичну перевагу - економічність. Чим менше внутрішніх перегородок, тим менше витрат на матеріали, оздоблення та роботи. Зменшується обсяг кладки або каркасу, скорочується кількість дверей, знижується вартість чистових робіт. У результаті бюджет використовується раціональніше, а будинок отримує сучасне планування без перевитрат!
Розкішний приклад open space проєкту - це котедж з високими стелями «Тонільма». Цікавий зовнішній дизайн проєкту припаде до душі справжньому поціновувачу архітектури та естетики дерев’яного зруба. Нестандартно високі стіни навіть наводять на думку, що це двоповерховий котедж. Але він має лише один поверх, простір якого гнучко перетікає з однієї функціональної зони до іншої майже без перегородок. Лише спальня і санвузол відокремлені перестінками. Студія тут займає 53,6 м² і включає функціональні зони передпокою, вітальні, кухні та їдальні. Дерев’яний котедж «Тонільма» дарує своєму власнику не лише всі переваги життя в будинку з натурального дерева, а й справжнє задоволення від щоденного перебування у просторі, легкому і вільному від перегородок.
3. Тераса як продовження будинку
Тераса сьогодні закладається в проєкт одразу, а не додається потім. Вона логічно продовжує вітальню або кухню-їдальню, створюючи плавний перехід із внутрішнього простору назовні. Уявіть, як ви відчиняєте великі розсувні двері - і межа між будинком та садом ніби зникає. Підлога плавно переходить назовні, лінія стелі продовжується, простір стає цілісним. Ви бачите зелень, небо, відчуваєте повітря. І що скажете в цю мить? «Ось так має виглядати мій дім. Тут ранкова кава. Тут довгі розмови з друзями. А ось тут робота з ноутбуком під легким шумом листя або вечірній відпочинок у тиші.»
Будинок з терасою - це дуже практичне рішення. Тераса додає корисні метри без різкого збільшення бюджету, особливо якщо вона одразу запроєктована під спільним дахом. Навіс захищає від дощу й сонця. Правильна орієнтація по сторонах світу дозволяє комфортно користуватися простором більшу частину року. Саме тому замовники все частіше не «додають» терасу пізніше, а одразу включають її в основу проєкту. Сучасний маєток із профільованого брусу «Мейдін» добре передає цю ідею. Його архітектура з затишними терасами під оригінальними навісами нагадує елегантну яхту з кількома рівнями, відкритими палубами та великими ілюмінаторами. У цій динамічній формі простір задає особливий ритм життя, плавно перетікаючи з приміщень на вулицю, залишаючи при цьому мешканців у зоні комфорту.
4. Друге світло - простір без перекриття між поверхами
Двосвітний простір - це архітектурне рішення, коли над частиною будинку, зазвичай у зоні вітальні, відсутнє міжповерхове перекриття. Стеля піднімається на висоту двох поверхів, відкриваючи об’єм, світло й повітря. Такий підхід кардинально змінює сприйняття інтер’єру: приміщення виглядає масштабним, статусним і значно просторішим, ніж його фактична площа. Особливо ефектно друге світло працює в поєднанні з панорамними вікнами, коли світло заповнює простір від підлоги до самої покрівлі. Окрім візуального ефекту, другий світ формує центр композиції будинку. Саме тут розміщується головна зона відпочинку, камін, сходи або дизайнерське освітлення. Водночас це рішення потребує грамотного проєктування: важливо продумати опалення, акустику та циркуляцію теплого повітря. За правильного технічного виконання двосвітний простір створює відчуття відкритості й архітектурної глибини, яке складно досягти в стандартному плануванні.
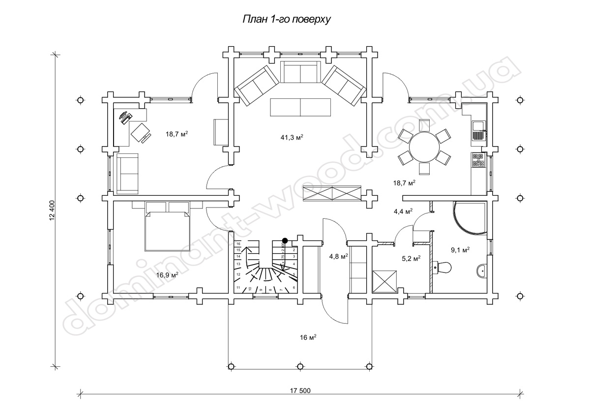
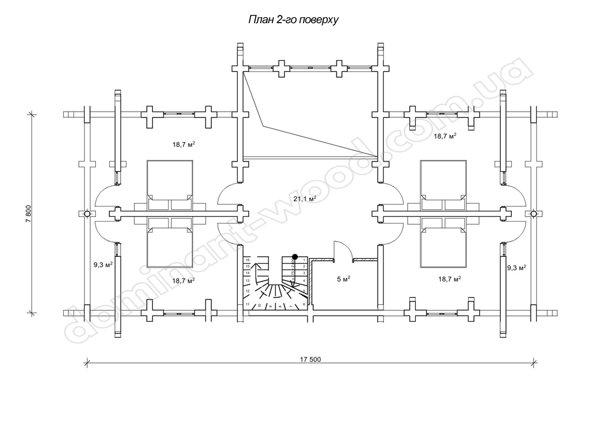
Наприклад, монументальний маєток «Мезар» розміром 7,8×17,5 м і загальною площею 255 м² є одним із найсолідніших рішень у каталозі «Домінант» для постійного проживання. Просторі приміщення на двох поверхах легко вміщують велику сім’ю, а за потреби окремі кімнати можна відвести для гостей. Серед характерних особливостей проєкту «Мезар» - друге світло над залою, балкони, що спираються на дерев’яні колони, та панорамні вікна, які займають майже весь головний фасад. Але не тільки у великих спорудах можливо зробити друге світло. Наприклад, в компактних котеджах це цілком можливо, ще й утворюється затишний антресольний поверх. Маленький будиночок «Інфант2» має дуже привабливий і по-справжньому затишний вигляд. Великі вікна біля входу ніби відкриті назустріч світу, а літня тераса створює всі умови для зручно організованого відпочинку поруч із домом. Цей атмосферний котедж уже давно користується популярністю серед замовників. Родзинкою його внутрішнього планування є спальне місце на антресолі та «друге світло» розміром всього 15 м².
І тепер головне запитання - який формат ближчий саме вам? Розкішний, масштабний маєток з другим світлом, високими стелями та відчуттям простору, що вражає з першого кроку? Чи компактний, затишний будиночок з антресольним поверхом або балкончиком над кухнею, де кожен метр продуманий і все знаходиться поруч? Обидва варіанти мають свій характер і свою атмосферу. Один підкреслює статус і масштаб, інший - камерність і тепло домашнього життя.
5. Плоский або мінімалістичний дах
Людям подобається це рішення через відчуття порядку й простоти. Нічого зайвого - лише чисті лінії та продумана форма. Плоский дах асоціюється з сучасним стилем життя, технологічністю та європейською архітектурою. Лаконічні форми, рівні лінії фасаду, відсутність складних скатів створюють стриманий і впевнений образ. Такий дах добре поєднується з панорамними вікнами, великими терасами та відкритим плануванням, формуючи цілісну сучасну архітектуру. Будинок виглядає акуратно, пропорційно та актуально незалежно від площі. За умови якісно зробленої гідроізоляції та правильно організованого водовідведення, плоский дах відкриває додаткові можливості: експлуатовану покрівлю, лаунж-зону, встановлення сонячних панелей.
Тут надзвичайно цікаво розглянути один з найстильніших та інтригуючих проєктів - «Пандора». Проєкт виконується з подвійного, утепленого брусу, який робить будинок сучасним, енергоефективним рішенням. Це просто розкішна вілла для відпочинку з більярдом і лазнею. Стіни цієї будови під майже плоскою покрівлею, наче скринька, містять безліч чудових переваг, всупереч широко відомій легенді. Так, ми дійсно ламаємо шаблони і звичні уявлення комфорту, обираючи такий бездоганний проєкт, в якому можливе не тільки комфортне існування, але й насолода життям і дозвіллям!
Архітектура приватного будинку - це завжди поєднання смаку, способу життя та практичних рішень. Саме з таких деталей і складається простір, у якому ви будете жити щодня. Оберіть те, що відгукується саме вам, або поєднайте кілька рішень у власну концепцію. А якщо потрібна професійна порада чи індивідуальний проєкт - звертайтеся, і ми допоможемо перетворити ідею на продуманий, комфортний та сучасний будинок!

































