- Новини
- 0 вподобання
- 872 покази
- Індивідуальні проекти «Домінант», Споруди «Домінант» в Україні
Уявіть собі прохолодний осінній вечір. Вітер гойдає верхівки дерев, а дрібний дощик ритмічно стукає по вікнах. Так, осінь незабаром заволодіє світом. І тоді особливо захочеться сховатись в затишку власного будинку, де панують тепло, спокій і комфорт. Це бажання може стати цілковитою реальністю завдяки компанії «Домінант». Адже ми спеціалізуємся на будівництві утеплених будинків з масиву дерева. В такому будинку навіть у найгіршу погоду завжди тепло і приємно від хвойної свіжості, що дарують стіни із соснової деревини. Сьогодні ми презентуємо один з наших проектів маєтку з утепленими стінами із подвійного, соснового брусу.
Як створюється план будинку під замовлення
Маєток із подвійного утепленого бруса габаритами 17,9 на 17,7 м² розташований в Житомирському районі. Проект будинку був розроблений з уважним врахуванням всіх деталей на основі побажань господарів. При першому погляді на будівлю, відразу привертає увагу те, що вона збудована на цокольному, кам’яному поверсі. Тому зовнішній вигляд цього будинку, що вібрав шик природних стихій дерева і каменю в одну розкішну, монументальну споруду - це справжнє свято для поціновувачів сучасного дизайну. Скати покрівлі складаються в цікаву, зигзагоподібну лінію, а симетрія в оформленні головного фасаду придає оселі своєрідний колорит.
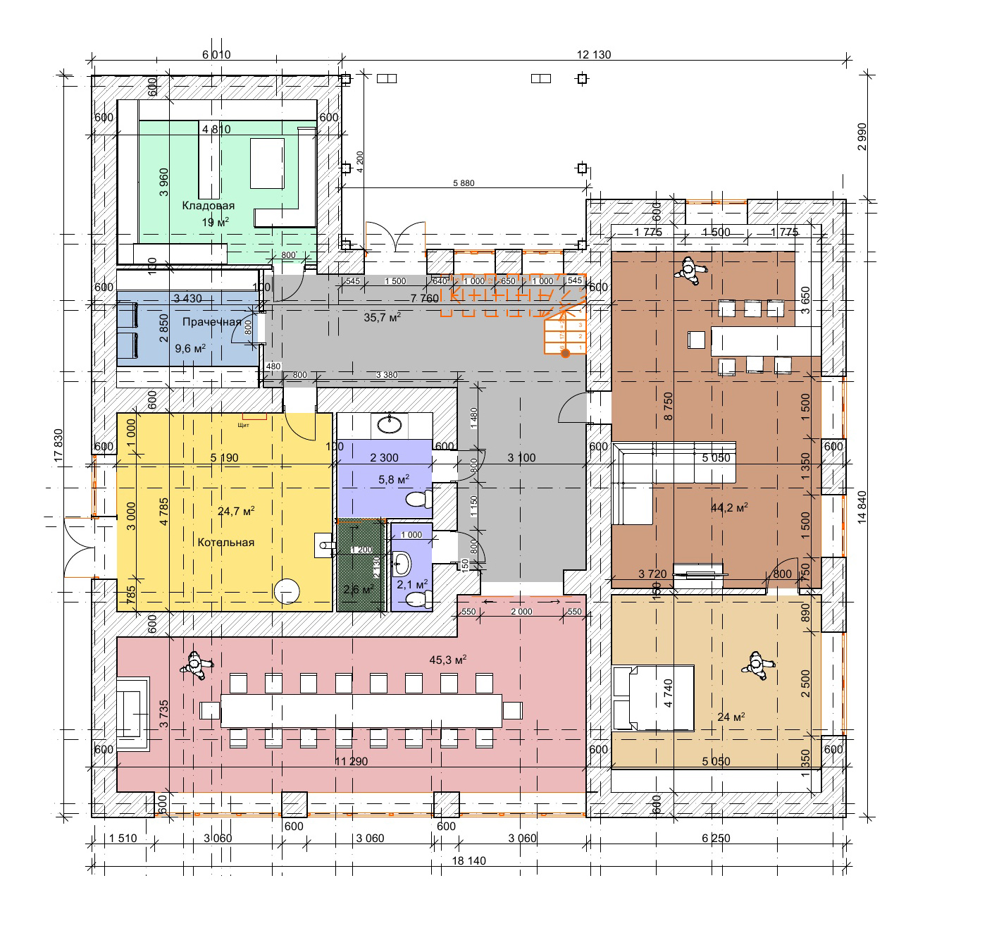
Однак зовнішня краса – це лише вершина айсберга. Планування кімнат маєтку з брусу заслуговує на особливу увагу. Адже воно також виконувалось з врахуванням запитів замовника та розташування споруди на ділянці. План включає простору залу з високими стінами і вікнами від підлоги до стелі, три житлові кімнати, санвузол з душовою і кухню з виходом на панорамний балкон-терасу, звідки відкривається неймовірний вид на ліс і озеро. Це справжнє мистецтво – об’єднати зовнішню ефектність дизайну з внутрішнім комфортом та заключити все це в добротну оправу з масивних, утеплених стін. І за весь свій довгий шлях у дерев’яному домобудівництві ми майстерно оволоділи таким мистецтвом сворення справжніх взірців родинного осередку, де людям буде приємно продовжити будувати своє щасливе життя в стінах, які захистять їх від усіх негод зовнішнього світу.
Як замовити і побудувати індивідуальний проект будинку
Замовити і побудувати власний план оселі, особливо легко, якщо ви вже уявляєте, як вона виглядатиме. Архітектору «Домінант» лише залишиться заключити ваше бачення у професійну форму проекту будівлі з врахуванням всіх особливостей технології. Навіть, якщо ви хочете будинок, але не уявляєте, який він має бути, вам забракло ідей і шукаєте натхнення - запрошуємо вас відвідати офіс «Домінант». У нас завжди є що вам запропонувати. Ми врахуємо всі ваші побажання і запропонуємо оптимальний план будинку і порадимо відповідну технологію виробництва і будівництва. Цікавитесь поєднанням різних матеріалів у житловому будинку? Як показує наш сьогоднішній проект, це не лише можливо, але й виглядає дуже ефектно. Можливо, ви захочете також спробувати щось подібне.
Технологія подвійних стін з брусу, утеплених всередині арболітом, застосована в будинку, який ми показали в цій новині, вважається одним з найкращих шляхів захистити господарів від холоду або сильної спеки. Це ще й гарна можливіть економити на опалювальних приладах. Детальніше про специфіку арболіту, як утеплювача ви можете дізнатись у відповідній публікації нашого сайту. Подвійний брус з арболітом є особливо актуальним стіновим матеріалом в сучасних умовах, коли з енергоносіями постійні проблеми. Крім того, легка, але дуже стійка подвійна брусова конструкція дозволяє уникнути зайвих витрат на складний фундамент і встановити його на цокольний поверх, як ми зробили цього разу. Подвійний брус легко поєднується з будь-якими іншими матеріалами, тим самим утворюючи цікавий, комбінований дизайн, в якому проявляється фантазія і творчий потенціал мешканців.
Компанія «Домінант» широко відома індивідуальним підходом до кожного нового проекту, тому ми – саме ті, хто допоможе вам реалізувати найзаповітніші мрії з будівництва житла. Якщо у вас є своє бачення ідеального будинку, ми з радістю розробимо для вас особливий і неповторний проект, як це було вже зроблено безліч разів для наших клієнтів з найрізноманітніших куточків світу. Зателефонуйте до нашого офісу і зробіть перший крок до реалізації омріяного житла!




























