- Новини
- 0 вподобання
- 1601 покази
- Готові проекти, Будови Домінант в Україні
Порівнюючи вартість та особливості різних типів і розмірів соснового брусу, який використовується в проектах каталогу «Домінант», можна підібрати проект, що повністю відповідатиме особистим потребам. Деякі з наших проектів, такі як «Лекід1», «Лекід2» та інші з цієї серії, відповідають вимогам більшості клієнтів щодо бюджету та зручного планування, тому ці котеджі постійно в топі наших замовлень, і ми завжди готові індивідуально підходити до їхньої реалізації.
Котедж «Лекід2» з сухого, профільованого брусу
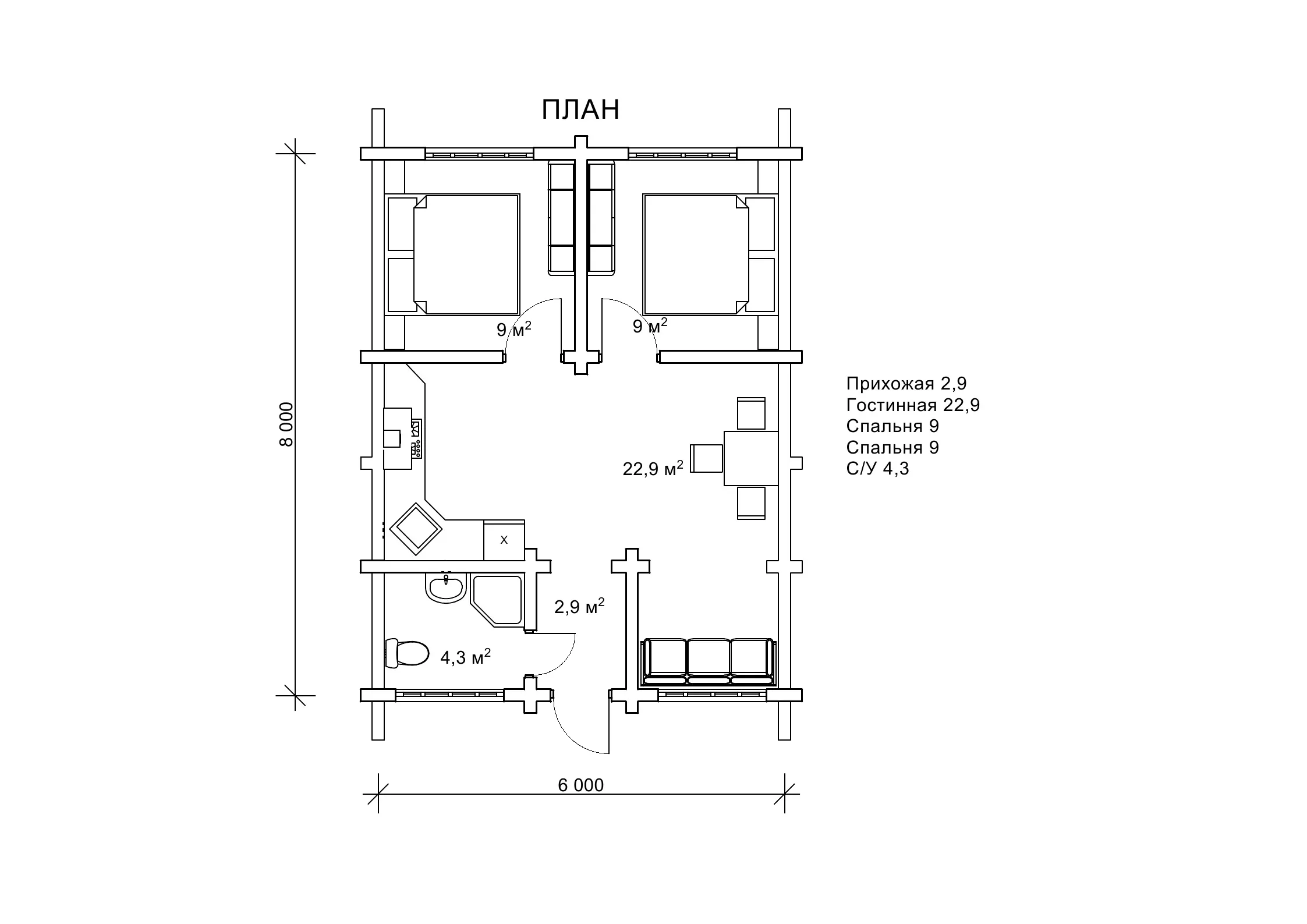
Проект унікального трикутного будинку «Лекід2» зацікавлює буквально кожного. Його вражаючий дизайн з масивним двосхилим дахом виділяє його серед безлічі будинків. Величезні панорамні вікна розташовані на передній та задній стіні, з верхнім краєм, що відтворює трикутний контур даху, надають будинку надзвичайної привабливості. Здається, що будинок спостерігає за навколишнім світом великими, здивованими очима. Площа будинку в оригінальному проекті з оциліндрованих колод становить 48 м².
В середині наявні дві спальні, санвузол і кухня – вітальня. Прямо на сторінці проекту вам надається можливість самостійно обрати необхідний діаметр колод або виконання з сухого, профільованого брусу. Саме це і зробив наш замовник, обравши для свого будиночку у якості стінового матеріалу сухий профільований брус 150*150 мм. Виконаний зі струганих соснових брусів, висушених у прес-вакуумній камері, будинок набув лаконічного і сучасного вигляду. Наживо цей реалізований проект можна побачити в Одеській області. Такий котедж не потребує додаткового утеплення, вирівнювання стін, обробки шпалерами або штукатуркою. Збудувавши проект «Лекід2» з сухого, профільованого бруса, ви отримуєте екологічно чисте та здорове житло, а також значно заощаджуєте на оздобленні будівлі!
Проект «Лекід2» - гарний вибір не тільки для особистої дачної ділянки, а також і для комерційних цілей. Готельний комплекс з таких будинків, як «Лекід2», прикрасить будь-який природний пейзаж. Будівельники компанії «Домінант» виконають замовлення на комплект котеджу як в Україні, так і на експорт. Для тих, хто бажає отримати більше корисної площі в стінах трикутного котеджу обов’язково радимо розглянути проект «Лекід6», який визначально пропонується в нашому каталозі з сухих профільованих брусів, а також містить антресольний поверх. Ефектний зовнішній вигляд трикутного котеджу-куреня у поєднанні з комфортом внутрішнього простору стануть запорукою довгого і щасливого життя в оточенні затишку та тепла.
Котедж «Лекід3» з оциліндрованих колод
Усі будинки з серії проектів «Лекід» об’єднує одне - А-подібна форма споруди. Звичайно, це визначає функціональність будівлі, а також її інтер’єр. Оригінальна трикутна форма котеджу надихає на створення унікальної обстановки всередині будинку. Специфічна конфігурація, що нагадує звужену піраміду з нахиленими стінами, відкриває безліч можливостей для творчого дизайну інтер'єру, що сприяє ідеальному відпочинку. Він поєднує старомодну чарівність із економічністю, адже будинок складається лише з мансарди, що приваблює багатьох замовників завдяки доступному бюджету і простоті експлуатації.
Якраз для будівництва проекту «Лекід3» наш клієнт побажав додаткове облаштування мансардних вікон. Це дуже вдале рішення, адже саме ця модель з лінійки «Лекід3» має чи не найбільшу площу і параметри забудови 8 на 8 м. Тому мансардні вікна збільшать доступ природного освітлення крізь масивний дах і зроблять інтер’єр більш стильним і затишним. Щодо обраного матеріалу для складання стін – вибором замовника стала оциліндрована колода діаметром 200 мм. Це також всесезонний вибір товщини соснової стіни. В будинку з таких масивних колод буде завжди приємний мікроклімат. Взимку теплий затишок, влітку - освіжаюча прохолода з ароматом хвої.
Щодо внутрішнього наповнення котеджу, в ньому передбачено дві спальні по 12 м² кожна, а також простора вітальня площею 35,6 м², де розташована функціональна кухонна зона, м'який куточок для відпочинку та обідній стіл. Санвузол займає 4,4 м², забезпечуючи необхідний комфорт. Оригінальний дизайн проекту «Лекід3» поєднується з високим рівнем внутрішніх зручностей, що робить цей котедж ідеальним не тільки для відпочинку, але й проживання. Замовлення на будівництво такого будинку-куреня було виконано в Дніпропетровській області, селищі Обухівка. Якщо ви цінуєте класичний стиль, варто звернути увагу саме на проект з колод «Лекід3». А якщо бажаєте ще більше простору та оригінальності в споруді, радимо розглянути варіант цього трикутного котеджу з антресольним поверхом – «Лекід5».
Компанія «Домінант» із задоволенням зробить усе можливе для будівництва вашого ідеального будинку. Ми гарантуємо комфорт, безпеку та затишок у зроблених нами будинках, де ви зможете насолоджуватися чудовими вихідними далеко від міської метушні. Чисте повітря, затишок в оселі та спілкування з близькими – це справжнє щастя. Вибір за вами, реалізація – за нашими майстрами!
















