- Новини
- 0 вподобання
- 4007 покази
Підводячи підсумки року 2018, що минає, можемо сказати, що він для співробітників компанії «Домінант» був дуже продуктивним і щедрим на цікаві проекти. Наша місія: поліпшення якості життя, здоров’я, а також навколишнього комфорту всіх домовласників. А щоб виконати цю важливу місію, ми постійно будуємо красиві, якісні і екологічно чисті будинки з натурального дерева, в яких тепер безліч людей в Україні і за її межами відчувають себе щасливішими і здоровішими. Так і сьогодні, для тих, хто бажає звернути на себе увагу, а також полюбляє незвичайні і нестандартні рішення, наша компанія пропонує розглянути проект «Лекід2», який можна сміливо назвати одним з топових серед наших будівель.
Популярний проект котеджу зі зрубу «Лекід2»
Досить невеликий, але абсолютно функціональний будиночок «Лекід2» площею 48 м2 кардинально вирізняється з-поміж інших проектів за рахунок величезного двосхилого даху, яка опускається до самого фундаменту, роблячи цей будинок дуже незвичайним. Великі вікна своїми формами повторюють трикутні обриси будинку і наповнюють котедж світлом і повітрям. Саме завдяки таким вікнам будиночок не виглядає громіздко і похмуро навіть під таким масивним дахом. Такий стиль виконання віддалено схожий на давньо японський. Але складають проект «Лекід2» з матеріалів власного виробництва «Домінант» - оциліндрованих колод дерева сосни. Обов’язково відзначимо, що всі колоди проходять обробку антисептиком (захист від гнилі, грибка і цвілі) і антипіреном (захист від швидкого займання). Всередині будинку є всі необхідні приміщення для повноцінного і комфортного відпочинку.
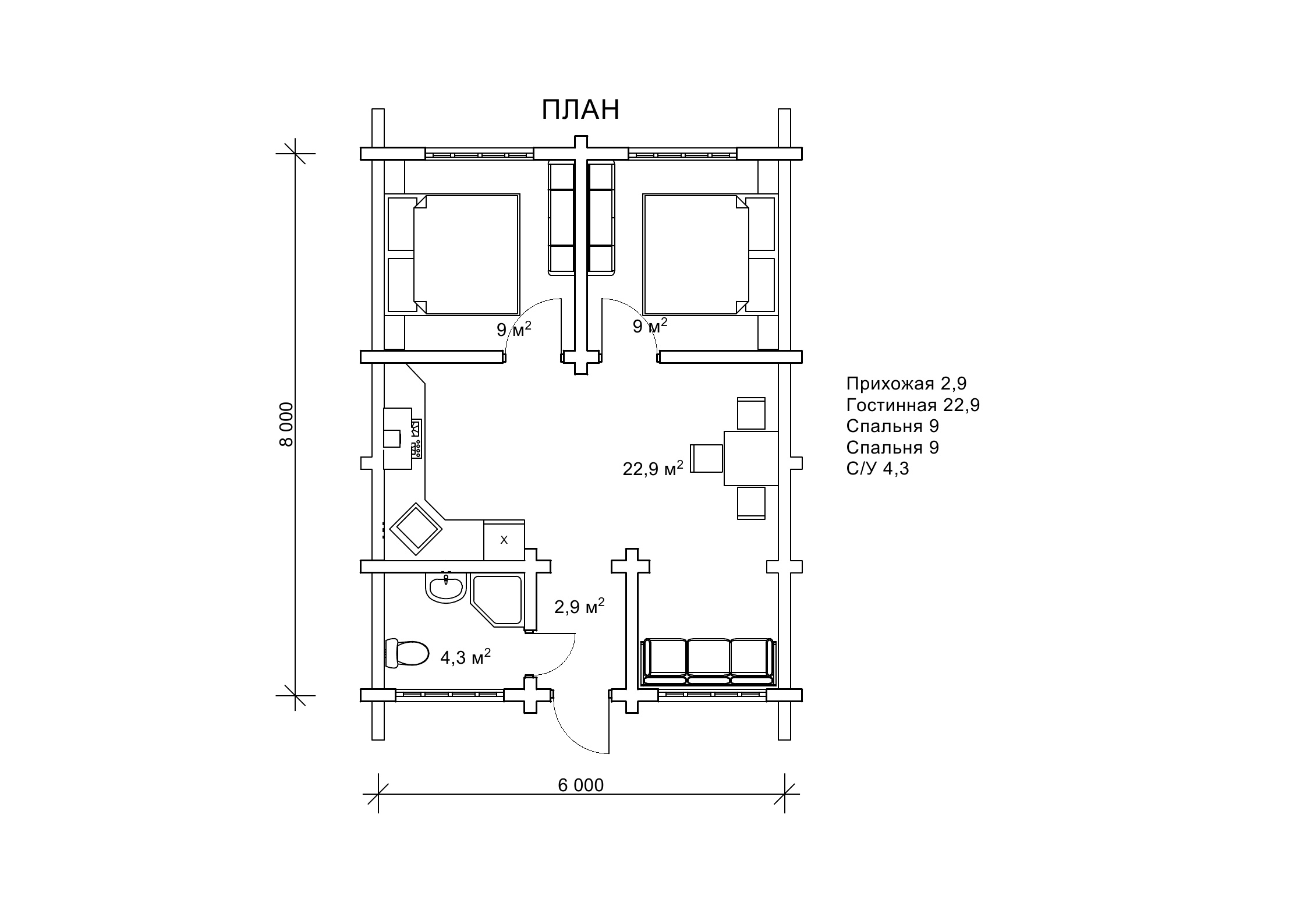
З невеликого ганку з навісом, ви потрапляєте в невеличкий 2,9 м2 передпокій. Цього місця абсолютно достатньо для розміщення тумби для вуличного взуття і шафи для верхнього одягу. Далі знаходиться вітальня, її площа складає 22,9 м2. При бажанні вітальню можна зонувати і обладнати тут кухню. Або зробити студію. У будь-якому випадку місця достатньо і для обіднього столу, і для ігрової зони, і для зони відпочинку з затишним диваном або кріслами. Також в будинку є ванна кімната площею 4,3 м2 та дві спальні - по 9 м2 кожна. Відповідно, таке планування дозволить кожному з членів сім’ї відчувати себе комфортно і без сорому.
Нове замовлення з будівництва проекту «Лекід2» на цей раз реалізується в Кіровоградській області, Кіровоградському районі, село Катеринівка. Клієнт оцінив по достоїнству всі переваги готового проекту, який раніше вже був побудований в Полтавській області. Тому «Лекід2» будується за оригінальними параметрами без будь-яких змін: площа 48 м2, колода діаметром 160 мм. Така товщина колоди означає, що будиночок буде використовуватися тільки в теплу пору року. Тому, якщо ви шукаєте для себе оригінальний і комфортний дачний будиночок, уважніше придивіться до проекту «Лекід2».
Одноповерховий дерев’яний зруб займе небагато місця на ділянці, у вас залишиться достатньо землі для реалізації своїх дачних фантазій. Облаштувавши на ділянці цікаві спіральні клумби, ви можете отримати часточку Азії на дачі. Будиночок «Лекід2» посприяє цьому. А влаштувавши альпійські гірку - отримаєте вигляд «альпійської села». Цікавий дизайн і колірна гамма (світла колода і темно-шоколадний дах, віконні рами та вхідні двері) дуже доречно і оригінально виглядатимуть в будь-якому інтер’єрі. Хочемо звернути увагу на проект «Лекід2» з комерційної точки зору. Ми гарантуємо що і на базах відпочинку і в готельних комплексах, такі будиночки будуть користуватися попитом у ваших постояльців. Адже будиночки виглядають трохи казково, а всі хочуть побувати в казці.
Одноповерховий будинок 6х6 м - проект «Лекід1»
Ми ніяк не можемо залишити без уваги «брата-близнюка» проекту «Лекід2». Це будинок «Лекід1». Він відрізняється меншими розмірами - 36 м2. Всередині також є вітальня, санвузол і дві спальні. В цілому будиночок такий же комфортний і являє собою відмінний варіант для використання в комерційних цілях.
Але у наших замовників, все ж проект «Лекід2» користується більшою популярністю. У будь-якому випадку кожен клієнт розраховує для себе, що йому підходить більше. Ми в свою чергу гарантуємо якісне та своєчасне виконання вашого замовлення. Якщо ви подумаєте і подбаєте про замовлення проекту зараз, то вже навесні зможете почати дачний сезон в своєму комфортному дерев’яному котеджі, або заселяти гостей в нові будинки по проектам «Лекід1» і «Лекід2» на своїй базі відпочинку. Наші фахівці завжди готові до реалізації ваших бажань і ідей.
Попереду у нас ще багато нових і цікавих проектів з будівництва дерев’яних будинків з брусу. Ми точно знаємо, що зможемо зробити щасливішими ще безліч людей в своїх чудових зрубах, побудованих «Домінант». Мрійте, а співробітники компанії «Домінант» в новому році, можуть стати вашими персональними чарівниками і здійснити мрію про власний будинок - втілення самої природи, комфорту і краси!













