- Новини
- 0 вподобання
- 833 покази
Якщо ви маєте намір побудувати будинок, і у вас є особисті вподобання щодо його дизайну - ми готові розробити проект на основі ваших уявлень про ідеальне житло. Так як ми візьмемось за здійснення ваших бажань, вам непотрібно буде довго вибирати будинок зі стандартних проектів, а після цього витрачати час на його зміни відповідно до власних потреб. Переваги індивідуального проектування вдало демонструє нова робота «Домінант» - будинок з сухого, профільованого брусу, зроблений відповідно до унікальних побажань клієнта. Локація будинку: Кременчуцький район Полтавської області.
Як створюється індивідуальний проект маєтку
Звернувшись до компанії «Домінант», ви отримуєте можливість реалізувати будь-яку дерев'яну конструкцію без обмежень у дизайні та розмірах. Якщо ви надаєте перевагу природним матеріалам та сучасним архітектурним формам, які підкреслюють справжню красу дерева, вам обов'язково сподобається будинок, про який ми розповімо далі. Це комфортабельний котедж з висушеного профільованого бруса, спроектований на двох поверхах. Він ідеально підходить для створення оригінального дизайну житла та отримання найвищого рівня комфорту.
Оскільки ми є виробничою компанією, наші проекти дерев'яних конструкцій розробляються з урахуванням особливостей технології. Якщо клієнт бажає, наші спеціалісти можуть виконати фінальне оздоблення зрубу. Однак обговорення індивідуального проекту завжди розпочинається з вибору типу та розміру соснових брусів, з яких складатимуться стіни, та які в подальшому визначатимуть експлуатаційні характеристики будівлі. З якого брусу краще будувати будинок ми детально розповідаємо в одній з публікацій блогу. Подальші запитання стосуються уявлень та концепцій клієнта щодо майбутньої споруди, його побажань та ідеалів майбутнього домівки. На основі отриманих відповідей наші архітектори приступають до розробки проектного рішення, враховуючи технологію дерев'яного будівництва та особисті уподобання клієнта.
На цей раз замовник зупинив свій вибір на просушеному, суцільному брусі. Товщина брусів по периметру будинку складає 200*150 мм, а внутрішніх перегородок 150*150 мм. Однією з конструктивних особливостей будинків з профільованого, висушеного бруса є можливість поєднувати між собою стіни з різних розмірів брусів. Багато хто робить максимальну товщину зовнішніх стін і трохи менший розмір внутрішніх перестінків. Це відчутно економить бюджет споруди ніяк не впливаючи на внутрішню шумо- і теплоізоляцію.
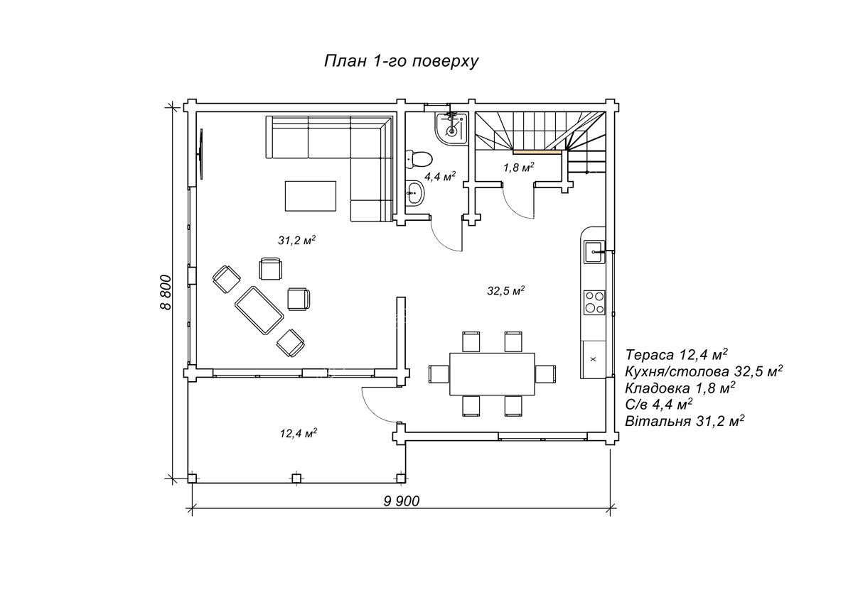
Загальна площа будинку склала 152 м2, включаючи два поверхи і терасу під навісом. Другий поверх має невелику висоту бокових стін, але за рахунок мансардної стелі під нахилом відкриває безліч можливостей для створення цікавого дизайну. Загалом, саме різноманітність геометричних форм відіграє головну роль у створенні загального образу маєтку. Особливо варті уваги вікна другого поверху, форма яких повторює нахил покрівлі. Взагалі всі вікна в маєтку зроблені великими, що прикрашає його зовні, а всередині сповнює світлом і затишком. Виступ, зроблений під терасу біля входу, компенсується заглибленням її в середину споруди. Всі архітектурні лінії злагоджено складаються в завершений, гармонійний образ, і маєток виглядає просто неперевершено. Розміри його забудови досить компактні - 8,8 на 9,9 метрів. Але завдяки наявності двох поверхів такий простір можна облаштувати усім необхідним для комфортабельного життя.
Перший поверх маєтку включає терасу, вітальню і кухню-студію, а також санвузол та сходи. Досить вільне зонування першого поверху та мінімум перегородок забезпечує можливості швидких змін у планування простору за власним настроєм. Тут можна пересувати меблі, обідню зону або м’який куточок, в залежності від того, який краєвид ви сьогодні бажаєте спостерігати у панорамні вікна. На другому поверсі розташовано коридор, санвузол і дві спальні, одна з яких містить просторий гардероб. Сучасний маєток з дерева, прикрашений великими вікнами, оснащений двома спальнями, став ідеальною заміською оселею для нашого замовника, де втілюються усі його уявлення щодо внутрішнього комфорту та зовнішньої естетики.
Які переваги індивідуального підходу до будівництва і проектування
Індивідуальний підхід у будівництві та проектуванні надає клієнту можливість попередньо оцінити зовнішній вигляд майбутнього будинку, переконатися у якості втілення своїх уявлень стосовно нового житла. Індивідуальне проектування є ідеальним рішенням для тих, хто прагне жити відповідно до власних уподобань та оточувати себе всіма необхідними зручностями. На відміну від типових проектів, які масово використовуються і підходять більшості людей, індивідуальні проекти дозволяють врахувати потреби клієнта, включаючи не тільки загальноприйняті, стандартні приміщення, але й простір для особистих хобі, роботи або розваг.
Після розробки проектного рішення, та установки базового комплекту, господар може продовжити обирати комплектацію зрубу індивідуально. Це дозволить облаштувати свій будинок відповідно до особистих запитів, а не купувати готовий варіант під ключ без урахування специфічних потреб. Замовник може взяти на себе відповідальність за оздоблення будівлі та вибір необхідних елементів, таких як покрівля, вікна, двері та інші. Або він може купити додаткове обладнання та фінішні матеріали від наших постачальників. Наші майстри готові завершити оздоблення дерев'яного будинку, враховуючи вибір господаря щодо матеріалів та його бюджетних можливостей. Це стане завершальним етапом реалізації індивідуального проекту будинку.
Досвідчені фахівці «Домінант» знають, як створити ідеальний житловий простір з врахуванням унікальних вподобань та потреб. Ми професійно втілююємо індивідуальні проекти у життя. Звертайтесь до справжніх майстрів своєї справи за будинком, який володітиме унікальним, неповторним стилем та безумовно, стане вашою гордістю!



















