- Новини
- 0 вподобання
- 1481 покази
Невеликий будиночок площею двадцять квадратів можна підприємливо застосувати під різні цілі. Це може бути садовий або дачний будиночок, гостьовий котедж або лазня. У будь-якому випадку мініатюрний будиночок на ділянці допоможе організувати присадибну площу з користю. Сьогоднішня публікація демонструє приклад такої споруди із висушеного, профільованого брусу.
Технічний проект збірки дерев'яного будиночка
Реалізація будь-якої будівлі завжди починається з її проекту. Тому, в першу чергу, потрібно визначитися з параметрами та плануванням будиночка, щоб архітектор «Домінант» міг скласти технічний проект зі збирання дерев'яної конструкції. Такий проект, виконаний у спеціальній програмі, дає уявлення про кількість матеріалу, що входить у будівлю, тим самим визначаючи її коректну вартість. Будь-яка ідея клієнта, будь-який індивідуальний запит щодо планування та дизайну будиночка максимально точно опрацьовується та відображається у проекті нашим архітектором. Таким чином, отримана в результаті будова абсолютно відповідає смаку господарів, а отриманий технічний проект дозволяє ще до початку будівництва оптимізувати вартість за рахунок зміни розмірів приміщень, висоти стін, форми даху, товщини та кількості перегородок тощо.
На цей раз ми отримали завдання від замовника побудувати гостьовий будиночок, в якому планувалося облаштування лазні. Те, які розміри будиночка і які будуть приміщення, замовник придумав сам. Крім того, важливо було визначитися із матеріалом виконання. В даному випадку було обрано сухий, профільований брус 150х150 мм. Це гідний вибір для будівництва дерев'яного будиночка. Адже просушений і гладко відшліфований брус відрізняється гарною стабільністю, він не схильний до розтріскування та усадки. Крім того, такий матеріал не вимагає витратних оздоблювальних робіт, а лише фарбування зовні та всередині будиночка. Розмір бруса 150х150 мм для стінового матеріалу будиночка робить його всесезонним. Тут буде тепло взимку та прохолодно влітку. Унікальні властивості соснового дерева зроблять будиночок теплим, дихаючим та сповненим хвойною свіжістю.
Технічний проект дерев'яного будиночка вважається завершеним після повного схвалення та затвердження замовником. Дуже важливо, щоб замовник був у курсі всіх нюансів будівлі і знав, звідки береться кожна деталь, що впливає на вартість будівлі.
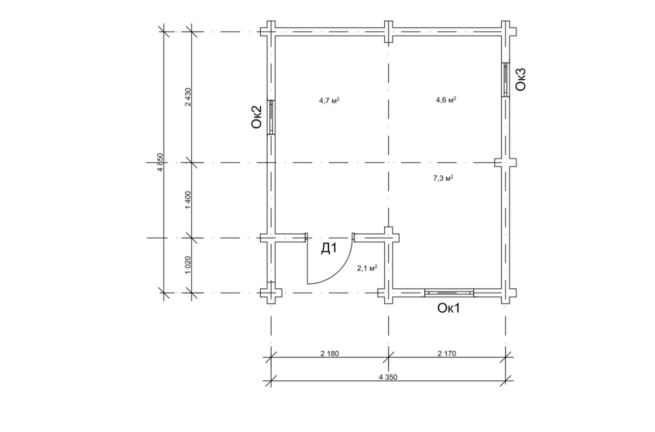
Проект гостьового будиночка із сухого бруса характеризується параметрами 4,8 на 4,3 м, площа будівлі 20,09 м2 по осям. На вході в будиночок є маленький ґанок розміром 2,1 м2, а в середині будівлі три приміщення відокремлюються каркасними перестінками. Такий підхід до виготовлення перегородок значно заощаджує бюджет будівлі та розширює можливості оформлення інтер'єрів. Адже каркасні перестінки можна облицьовувати не тільки під дерево або обшити вагонкою, а й оформити іншими способами. У гостьовому будиночку передбачено три приміщення розмірами 4,7 м2, 4,6 м2, 7,3 м2. Такий розподіл функціональних зон підходить для облаштування лазні, де обов'язково потрібно відокремлювати парилку та душову. Якщо ви плануєте побудувати гостьовий котедж з однією спальнею, то можна робити всередині перегородки тільки для відокремлення санвузла. І тоді вийде комфортний однокімнатний будиночок для приватного використання або під комерційні цілі.
Установка будиночка із сухого бруса на ділянці замовника
Складання брусового будиночка відбувалося у Дніпропетровській області, с. Новоселівка згідно з попередньо затвердженим технічним проектом. Завдяки ретельній розробці проектів кожен будиночок від компанії «Домінант» можна скласти з готового будинкового комплекту самостійно. Як правило, проблем зі складання наших дерев'яних конструкцій, ніколи не виникало. А з прикладами таких робіт за кордоном можна ознайомитись у попередній новині «Домінант».
Якщо ви придбали готовий до збирання комплект дерев'яного будиночка, то обов'язково подбайте про те, щоб перед його встановленням було підготовлено фундамент. Дерев'яні конструкції не встановлюються просто на землю. Обов'язково має бути належна основа під дерев'яний зруб, щоб він прослужив краще та довговічніше.
В даному випадку робітники «Домнант» побудували базову комплектацію профільованого зрубу лазні на стрічковий фундамент з бетону. Після завершення будівництва базової комплектації клієнту потрібно завершити обробку будиночка, а саме поставити вікна, двері, накрити дах та пофарбувати стіни. Якщо господар хоче обладнати лазню у своєму гостьовому котеджі, то чим краще обшити стіни парилки можна прочитати на нашому сайті.
Оздоблення дерев'яного зрубу, встановленого нашими робітниками, можна проводити самостійно, або замовляти такі додаткові роботи у нас. Вартість додаткової комплектації до кожного проекту «Домінант» дивіться у закладках «Комплектація під ключ».
Як бачите, якщо у вас є бажання побудувати гостьовий будиночок чи баньку – ми втілимо ваше бажання у кращому виконанні. Дивіться приклад гостьового будиночка із сухого бруса і надихайтеся на свою споруду, яка подарує вам неймовірний затишок дерев'яного зрубу!









