- Новини
- 0 вподобання
- 599 покази
- Споруди «Домінант» в Україні, Готові проекти «Домінант»
Деякі наші дерев’яні будиночки настільки припали до душі замовникам, що з часом перетворилися на справжні серії - з різними технологіями, варіантами планувань і оновленими деталями. Їх замовляють знову і знову, щоразу додаючи щось своє, тож кожен дім має власний характер, навіть якщо народжений з одного проєкту. «Інфант2» спроєктований на основі гостьового будиночка «Інфант», який настільки популярний серед замовників, що архітектор «Домінант» розробив його версію з деякими змінами по вподобанням одного з клієнтів. Дізнайтесь більше про цей будиночок - можливо, саме він стане вашим місцем натхнення!
Історія проєкту «Інфант2»
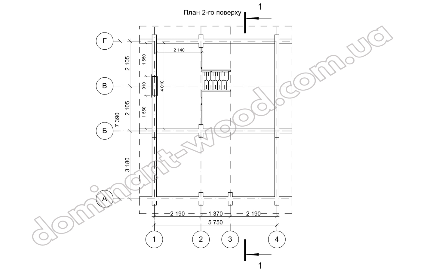
Погодьтеся, що колодчастий будиночок «Інфант2» виглядає дуже мило. Він ніби дивакуватий гном, який тільки що зійшов зі сторінок доброї, дитячої казки. Його великі вікна - очі здивовано виглядають з-під високого капелюху-мансарди, козирок якого продовжується у вигляді навісу над затишною терасою при вході. Цей невеликий будиночок з мансардою займає всього 5,3×5,7 м. Але на площі 41 м² вдалося розмістити все необхідне для повноцінного життя в будь-яку пору року. На першому поверсі - затишна вітальня, кухня й санвузол. А поруч - маленька тераса, куди так приємно вийти зранку з чашкою чаю чи ввечері подихати прохолодним повітрям. На мансарді розташоване спальне гніздечко площею 9,2 м² - місце, куди можна дістатися навіть приставними сходами. Дітям така ідея подобається найбільше: трошки схоже на схованку, трошки на казкову вежу.
Цей проєкт з’явився завдяки популярності попередньої моделі - «Інфант». Замовники настільки полюбили її, що архітектор «Домінант» створив оновлену версію проєкту «Інфант2» - трохи змінену, з урахуванням особистих побажань одного з клієнтів. А щоб іще більше адаптувати котедж до постійного проживання, наш замовник побажав зробити терасу просторішою, а сам домокомплект зробити з більш масивного діаметру колод - 200 мм. Цієї товщини соснових стін сповна вистачить, щоб отримати максимально природний і стабільний мікроклімат всередині дерев’яного будиночка. Влітку тут буде прохолодно без кондиціонеру, а взимку тепло буде довше утримуватись в приміщеннях, що дозволить дуже гарно економити на опаленні. Завдяки таким чудовим конструктивним рішенням, які ми із задоволенням втілили в життя, наш замовник у Вишгородському районі отримав собі всесезонний будиночок з просторою терасою.
Будівництво проєкту «Інфант2» з просторою терасою
В новому виконанні з майже вдвічі більшою терасою «Інфант2» набув більших габаритів, а саме 5,7х7,4 м. Також він виглядає масивніше за рахунок більшому діаметру колод, що закладені в комплекті стін. Якщо порівнювати всі моделі проєкту, можна спостерігати, як він поступово змінював свій вигляд від гостьового, садового будиночку до теплого всесезонного котеджу з терасою. Простора тераса суттєво вплинула на архітектурну композицію проєкту, надавши йому більшої гармонійності та функціональної гнучкості. Завдяки їй житловий простір природно переходить у зовнішнє середовище, створюючи відчуття відкритості й простору. Тераса стала важливим елементом планувальної структури, що забезпечує зручну зону для відпочинку та спілкування, водночас підкреслюючи естетику фасаду. Вона додала будинку виразності, покращила інсоляцію прилеглих приміщень і підкреслила єдність архітектури з ландшафтом. Що залишилось незмінним, так це його чарівний шарм затишного колодчастого котеджу.
На нашому сайті ви не тільки знайдете собі оселю за смаком та безліч прикладів її реалізації, але й цікаву інформацію щодо облаштування будиночків та окремих приміщень. Отже, якщо ви обираєте собі або вже будуєте будиночок з терасою, радимо публікацію «Тераса: ідеї оформлення», де ми розглядаємо терасу у якості майданчику для різних сценаріїв дозвілля. Наприклад, тераса - вітальня або літня їдальня чи тераса-павільйон біля басейну. Що ще стосується саме планування проєкту «Інфант2», так це особливість у вигляді антресолі. Стаття «Антресольний поверх: функції та особливості конструкції» занурить вас в ідеї по оформленню антресолі та облаштуванню там улюбленого куточку для відпочинку, дитячої або спальні. А також в цій публікації ми розглядаємо наші проекти будиночків з антресольним поверхом.
Все, що вас цікавить з приводу замовлення і реалізації дерев’яного будинку - ви або прочитаєте в нашому блозі, або ми підкажемо вам за контактами, що надаються у відповідному розділі сайту. Як ви зрозуміли будь-який проєкт будиночку, що полонив ваше серце, ми залюбки реалізуємо і врахуємо всі ваші особисті побажання щодо планування, аби ви отримали саме те, про що мріяли, що повністю відповідає вашому особистому баченню комфорту. Пам’ятайте: ваш котедж і тераса - це відображення саме вас. Ваших звичок, настрою, способу відпочинку. У кожній лінії, у виборі кольорів і навіть у дрібницях живе частинка вашого характеру. Тож нехай натхнення веде вас до нових ідей і затишних рішень, у яких вам справді добре.




















