- Новини
- 0 вподобання
- 896 покази
- Індивідуальні проекти «Домінант», Споруди «Домінант» в Україні
Індивідуальний підхід в будівництві будинку дозволяє створити простір під особисті потреби і вподобання. Якщо ви точно знаєте, що хочете, ми допоможемо це реалізувати. Пропонуйте свої ідеї, і ми адаптуємо їх під надійну дерев’яну конструкцію, враховуючи всі важливі нюанси. Саме таким чином ми будували літній будиночок для замовників в одному із садових товариств Києва. Отже, розповімо про котедж з оциліндрованих колод, де все зроблено на основі побажань клієнта.
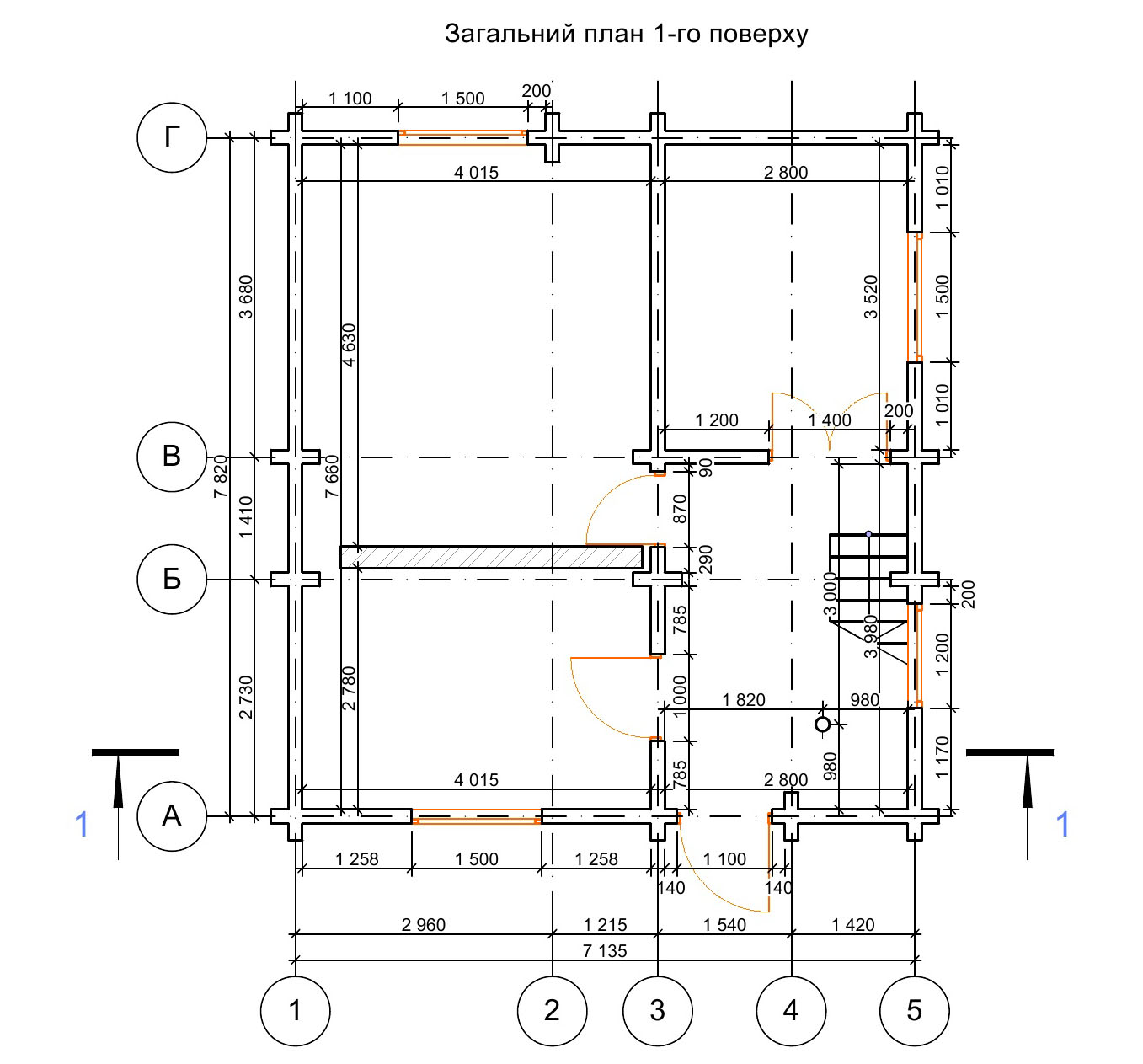
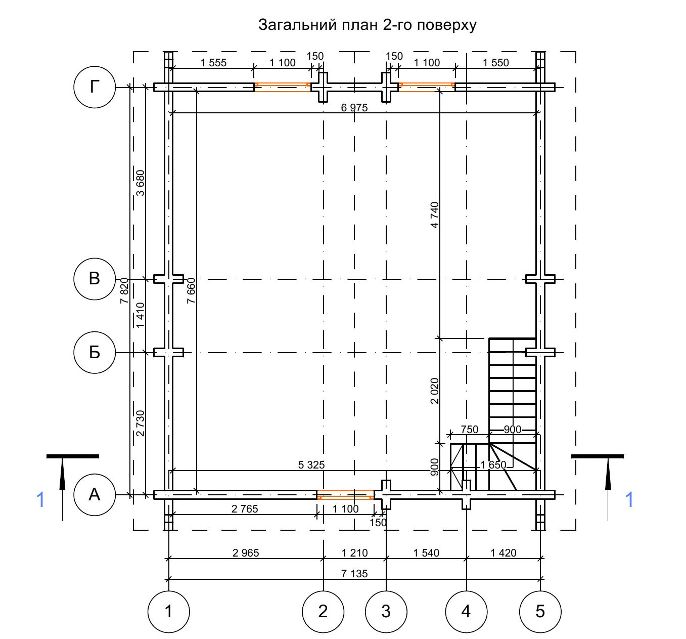
Індивідуальний план дерев'яного котеджу
Простий, дачний котедж став чудовим прикладом індивідуальної реалізації проекту після того, як ми об’єднали всі особисті побажання замовника під одним дахом в двоповерховій конструкції стін з оциліндрованого брусу розміром 160 мм загальною площею 115,26 м². Перший поверх містить передпокій зі сходами наверх, вітальню з каміном і окреме приміщення кухні. А на другому поверсі студійний простір, в якому клієнт вирішив виділяти різні функціональні зони за допомогою інтер’єрних прийомів на власний смак уже після завершення будівлі. Так само в майбутніх планах замовника відокремити приміщення санвузла.
Параметри споруди склали 7,1 на 7,8 м по осях стіни. І в цих габаритах кожен куточок має сенс. Наприклад, зверніть увагу на цегляну стіну посеред споруди. За запитом клієнта ми мали обіграти цю стіну, що лишилась від старого, цегляного будинку під місце для каміну в новому котеджі. На плануванні і фото з локації будівництва гарно видно, як стіна вписалась в загальний конструктив і стала однією зі стін у вітальні. Будівля має максимально просту, квадратну форму, класичний прямокутний силует із високим двосхилим дахом, який поки ще в процесі зведення. Стіни з оциліндрованих колод сповнені ароматами смоли й тепла лісу. Каркас крокв уже на місці, готовий прийняти покрівельний матеріал. Велике віконце на другому поверсі - це не просто отвір у стіні, а майбутній джерело світла, що заливатиме інтер’єр мансарди сонячним сяйвом.
Невеличкий ґанок з навісом додає будинку затишку, запрошуючи зайти всередину й уявити, як тут буде тепло й комфортно. Навколо - спокійна природна місцевість, свіже повітря й простір для відпочинку. Цей будинок ще чекає на завершення, але вже зараз у ньому відчувається потенціал стати улюбленим місцем господарів для проведення відпустки. Він простий, затишний і повністю відповідає уявленням замовника.
Чому більшість наших замовників обирають індивідуальний підхід?
Власний дім - це місце, де народжуються спогади, куди хочеться повертатися кожного дня, де кожна деталь має бути затишною, зручною й підлаштованою під ваш ритм життя. Саме тому багато наших клієнтів обирають індивідуальне проектування - бо хочуть не просто будівлю, а простір, який буде ідеальним саме для них, відображатиме їхні звички, стиль і навіть характер. Звісно, обрати готовий проект - це швидше і простіше, ніж вигадувати щось своє. Типові проекти вже не раз випробували, побудували, перевірили. Але чи врахує стандартне проектне рішення саме ваші наміри, якщо вам хочеться кухню з панорамним вікном, щоб щодня бачити світанок за чашкою кави, чи простору вітальню з високими стелями, де збиратиметься вся родина. А як щодо майстерні? Де ви створюватимете щось особливе. Чи потрібна дитяча з незвичайним плануванням? Чи тераса, що виходить просто на захід сонця? У типових проектах такі нюанси рідко передбачені.
Кожен квадратний метр будинку має працювати на ваш комфорт і створювати саме той простір, куди хочеться повертатися. Коли він спроектований під ваш спосіб життя, у ньому зручно жити сьогодні, завтра і через 10 років. Якщо ви плануєте розширення сім’ї – передбачте додаткову спальню. Любите працювати вдома? Подумайте про окремий кабінет. Часто приймаєте гостей? Значить, не завадить гостьова кімната або велика їдальня. Завдяки індивідуальному підходу будинок не потребуватиме постійних перепланувань і змін - він одразу відповідатиме вашим запитам.
Бага то хто з клієнтів запитує, чи індивідуальний проект несе за собою додаткові витрати. Відповідь - ні, бо оплату за розробку проекту ми зараховуємо як аванс в майбутню будову. Це велика перевага вибору нашої компанії у якості підрядника. Адже ми допомагаємо вам зекономити, бо все робиться саме під вас, без зайвих витрат на непотрібні речі. Наприклад, ще на етапі планування можна передбачити енергоефективні рішення: розташувати вікна так, щоб у будинку було більше природного світла та закласти в проект енергоефективну технологію побудови стін з утеплювачем. У результаті -менші рахунки за опалення та електрику. А ще не доведеться переплачувати за зайві квадратні метри, які потім стоятимуть порожніми. Все буде саме таким, як потрібно вам: жодних «запасних» кімнат і непотрібних коридорів. До того ж ваш будинок буде унікальним. Ви самі обираєте стиль, поєднуєте матеріали, експериментуєте з формами - і в підсумку отримуєте не просто житло, а щось справді особливе. Таке, якого більше ні в кого немає. Обираючи індивідуальне проектування, ви отримуєте будинок, в якому:
- враховуються всі ваші побажання щодо стилістики, технології і бюджету будівництва;
- оптимально використовується простір;
- забезпечується комфорт на багато років.
Отже, будинок мрії - це не розкіш, а результат правильного підходу. Ми добре знаємо, як втілити вашу мрію про дім, який буде відображати ваш стиль і потреби. Зв’яжіться з нами, і ми разом створимо житло, яке стане справжнім відображенням вашої індивідуальності!













