- Новини
- 0 вподобання
- 794 покази
- Споруди «Домінант» за кордоном, Готові проекти «Домінант»
У нас діє проста й зрозуміла система оформлення замовлень як в Україні, так і за кордоном. Фахівці компанії допомагають кожному клієнту підібрати проект будинку або створити його з урахуванням індивідуальних побажань. Кожне нове замовлення ми розглядаємо окремо, добираючи оптимальну технологію будівництва з дерев’яного бруса відповідно до кліматичних умов місцевості. Завдяки високій якості виконання й уважному підходу будинки «Домінант» постійно з’являються у різних країнах світу! Сьогодні демонструємо новий проект - будинок з трьома спальнями «Кселін», комплект якого у нас замовили для будівництва у Франції. Це не перша дерев’яна будівля нашого виробництва у даній країні. Тож ми впевнені, що наші будинки принесуть радість ще багатьом французьким клієнтам! А зараз детальніше зупинимось на особливостях проекту «Кселін», що тепер знаходиться поблизу Ніцци.
Історія створення проекту «Кселін»
Французи - визнані у світі гедоністи. Вони завжди оточують себе комфортом і красою, тому наш клієнт з Ніцци зупинив свій вибір саме на будові з сухого профільованого брусу прес-вакуумної сушки. Це рішення дозволило зробити не лише презентабельний дизайн будинку, а й виявилось дуже практичним. Справа в тому, що якісно просушений у вакуумі брус стабілізується та повністю позбувається схильності до деформації і розтріскування. Такий матеріал не потребує масштабного оздоблення. А для нашого замовника якраз важливо було отримати дім, який не потребуватиме постійного догляду. Проект «Кселін» став гарним прикладом того, як сучасні технології обробки деревини поєднуються з традиційною любов’ю французів до комфорта.
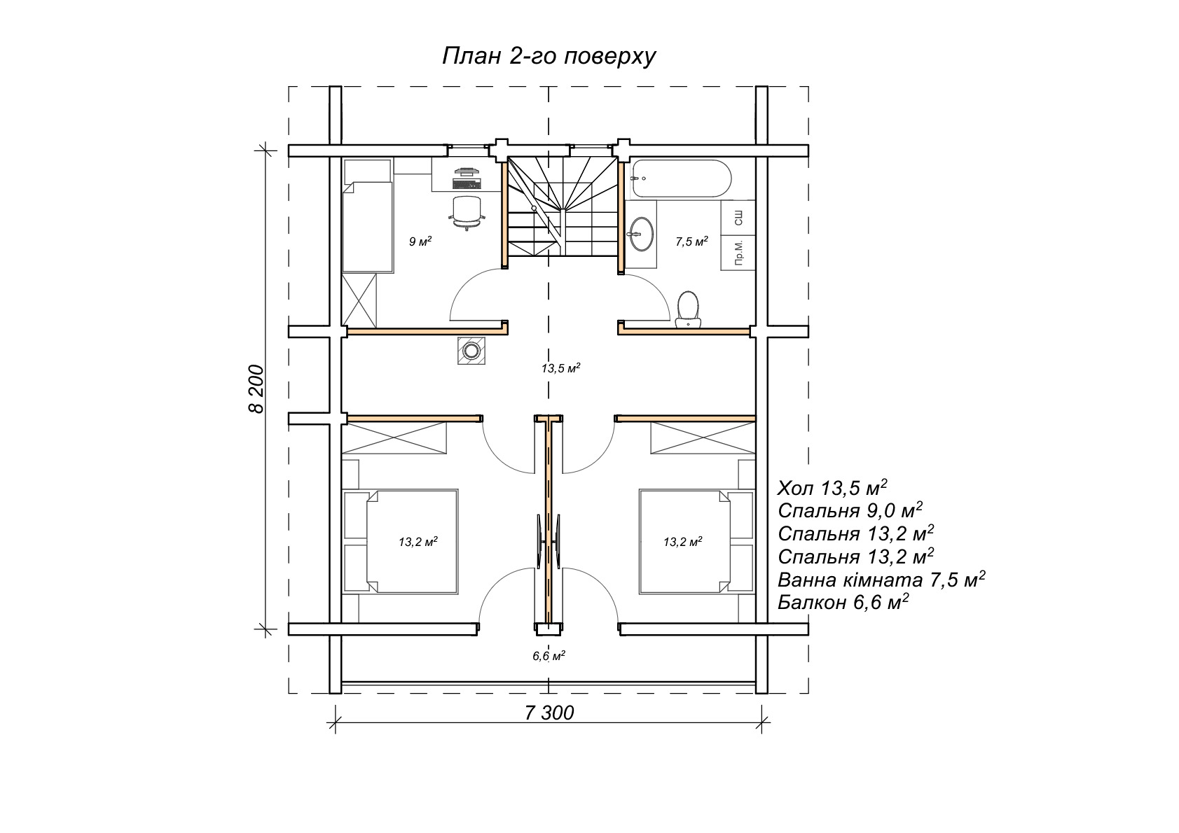
На момент звернення до нас французький замовник уже мав дуже чітке уявлення, якою має бути його майбутня оселя. Уважно вислухавши всі його побажання, ми створили проект, що врахував важливі для клієнта моменти. На першому поверсі ми розташували простору кухню-вітальню площею понад 34 м², де можна збиратися великою родиною навколо каміну, і окремий кабінет для роботи. Продумали зручний хол, тамбур, а також санвузол. Другий поверх ми повністю відвели під приватний відпочинок і усамітнення. Тут сплановано три доволі просторих спальні: дві по 13,2 м2 і одна площею 9 м2. Також на другому поверсі є хол, ванна кімната та балкон, з якого відкриваються мальовничі краєвиди французької провінції. Таким чином кожен мешканець садиби «Кселін» матиме свій особистий простір і повноцінний відпочинок у власній кімнаті. Що ще цікаво, зверніть увагу на такий нюанс на планах будинку нижче - бачите, що міжкімнатні перегородки виконуються каркасним методом? Це суттєво зекономило будівельний бюджет нашому замовнику плюс з’явились можливості оригінально облицювати внутрішні перестінки.
В результаті проект повністю задовольнив очікування власника. Він виявився настільки вдалим і багатофункціональним, що ми вирішили додати його в наш каталог будинків з брусу і назвали на французький манер - «Кселін». Цей прекрасний будинок з трьома спальнями і мальовничим балкончиком поєднав у собі французьке прагнення до комфорта та українську майстерність деревообробки. Тепер проект в широкому доступі для всіх, хто мріє про дерев’яну оселю для великої родини з достатньою кількістю житлових кімнат. І він справді вартий ретельної уваги!
Деталі реалізації проекту «Кселін» у Франції
У поєднанні з барвами місцевих краєвидів «Кселін» виглядає природно і тішить око натуральною красою. А зібрали його місцеві майстри по технічному проекту, наданому «Домінант» разом із готовим комплектом маєтку. Виходить, що будинок легко склався, наче конструктор. Як збірні меблі приїжджають у коробці з інструкцією, так і наші домокомплекти- повний набір усіх дерев’яних елементів для зведення будинку ми відправляємо на експорт з пакетом міжнародних документів та сертифікатів. Стінові комплекти, внутрішні перегородки, кроквяна система - усе пронумеровано й відповідає технічному проекту, попередньо перевіреному та підписаному архітектором і замовником. Усі деталі мають чітке маркування, а в комплекті додаємо докладну схему з нумерацією: що куди ставити, як з’єднувати, з чого починати. Єдине, що варто підготувати заздалегідь - фундамент. Далі монтаж іде крок за кроком за зрозумілим планом. Після завершення монтажу хазяїн отримав повну свободу дій по фінішному завершенню своєї оселі під ключ. Подивіться, як виглядає зібраний базовий комплект на фото, що надіслав нам французький клієнт.
Навіть на рельєфній ділянці дерев’яний будинок встановлюється без особливих проблем. Про нюанси дерев’яного будівництва в гірській місцевості ми вже детально розповіли в окремій публікації нашого будівельного блогу. Будинок з натурального дерева завжди найкраще вписується в мальовничі природні краєвиди. Саме тому будинки з брусу затребувані не лише в Україні, а й за кордоном. Дедалі більше клієнтів з різних куточків світу обирають дерев’яні будівлі «Домінант» як простір для життя й відпочинку. Нещодавніми відкриттями для нас стали Канада і Японія. І ось ми знов повернулись у Францію.
На нашому сайті велика колекція готових проектів: маєтків, котеджі, садиби. Обирайте за смаком будь-яку складність і стиль споруди. Хочете щось оригінальне для себе? Створимо індивідуальне рішення з урахуванням кожної суттєвої для вас деталі. Саме так ми й зробили цього разу: спроектували житловий будинок, який вийшов дуже вдалим. Замовити свій «райський куточок» можна в офісі або через заявку на сайті «Домінант». Працюємо далі, щоб дедалі більше клієнтів в Україні та за кордоном отримували саме ті будинки, які так давно хотіли!












