- Новини
- 0 вподобання
- 1320 покази
- Готові проекти, Будови «Домінант» в Україні
Можливість реалізації власних будівельних ідей – одна з суттєвих переваг вибору дерев'яного зрубу від компанії «Домінант». Ми завжди готові професійно втілювати будь-які індивідуальні проекти, що підтверджує багаторічний досвід завершених проектів та безліч задоволених відгуків з різних куточків світу. Зважаючи на вподобання клієнтів, ми розробляємо унікальні проектні рішення, які повністю відповідають їхнім мріям та очікуванням. Коли людина самостійно творить свій простір для проживання, вкладаючи у нього свою енергію, вона отримує справжнє щастя від такого житла. Один з таких проектів, що повністю втілює ідеї клієнта по створенню домашнього осередку, називається «Олеандра», і побачити його можна в Закарпатській області.
Ідеї клієнта як основа для створення проекту
На основі ідей замовника наші архітектори розробляють індивідуальні проектні рішення, враховуючи технологію дерев'яного будівництва та всі інші вимоги клієнта. Цей процес дозволяє замовнику ознайомитися з майбутнім виглядом будинку ще до початку будівництва, переконатися, наскільки вдало втілюються його уявлення та фантазії стосовно нового житла та внести відповідні правки, якщо це необхідно. Індивідуальне проектування надає можливість отримати житло відповідно до особистих вподобань та оточити себе всіма необхідними зручностями. У порівнянні з типовими проектами, створеними для масового використання, індивідуальні проекти враховують не лише стандартний набір приміщень, що підходить загалом всім, а й простори для особистих хобі, роботи чи розваг.
Можна констатувати той факт, що більшість клієнтів звертаються до нас саме з індивідуальними запитами по плануванню приміщень. На їхній основі створюються вдалі проектні рішення, які ми презентуємо в каталозі наших робіт і проектів будинків. Так само і проект «Олеандра», зроблений під власні вподобання замовника, зайняв почесне місце серед проектів житлових котеджів, виконаних з просушеного в прес-вакуумній сушці бруса.
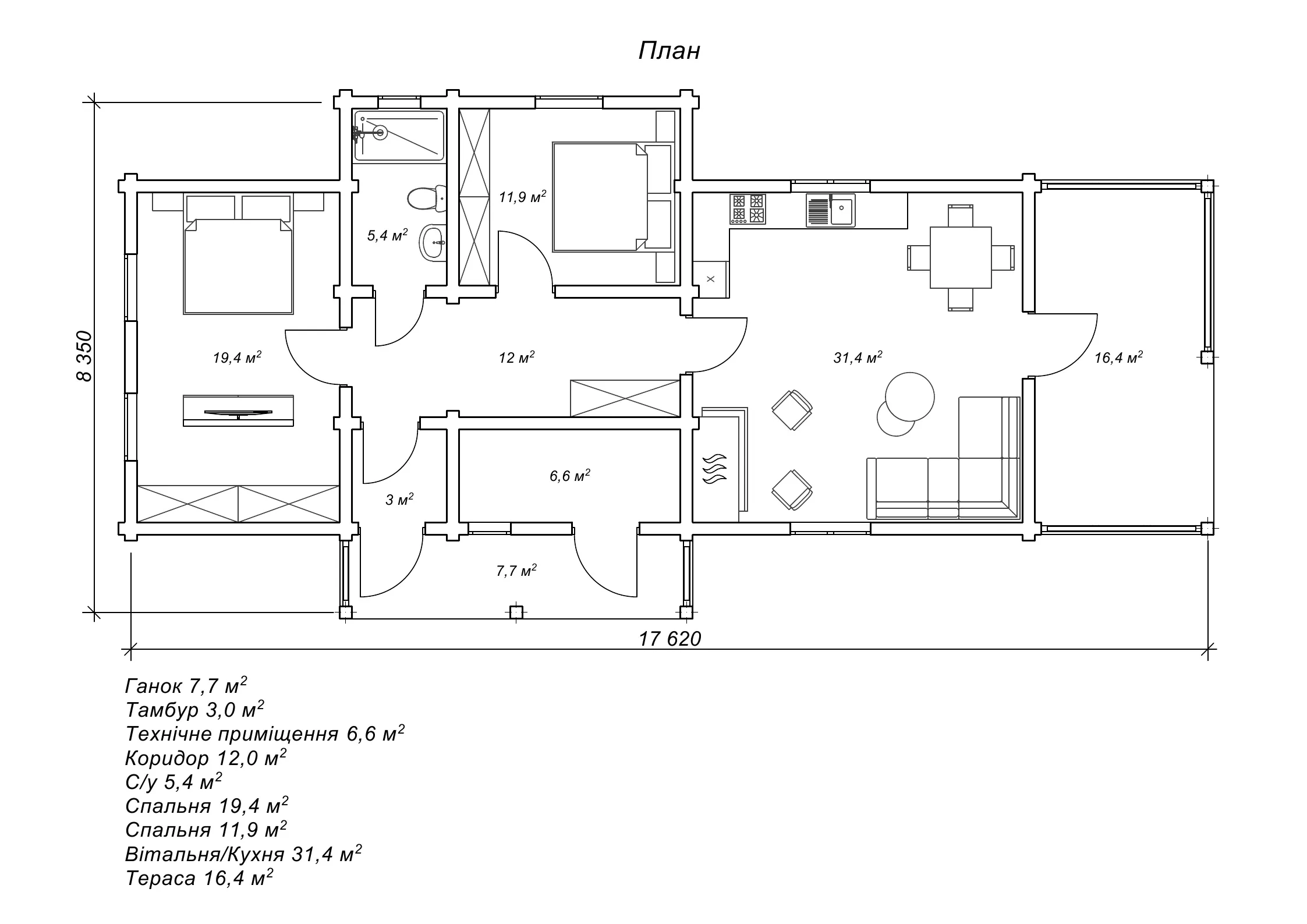
Цей проект включає дві великі спальні, простору вітальню з кухнею, терасу, тепловий тамбур, технічне та інші приміщення. У відповідності до бачення замовника саме такий набір приміщень забезпечить його родині максимальний комфорт і дозволить проводити час біля будинку на свіжому повітрі відкритої тераси, захищеної навісом. Усі приміщення сплановані на одному рівні. Площа котеджу «Олеандра» становить 113,8 м2, враховуючи терасу. Саме за рахунок великої тераси, будинок прийняв видовжену, прямокутну форму і його розміри склали 8,3 на 17,6 метрів. Для спорудження стін було обрано сухий, профільований брус розміром 200*150 мм. Товщина соснового брусу 200 мм і щільне сполучення брусів між собою шип у паз по всій цій площині підходить для круглорічного проживання. Враховуючи низький коефіцієнт теплопровідності соснової деревини, її 200 мм еквівалентні 890 мм цегляної стіни. Тому сосновий будиночок «Олеандра» буде теплим всередині взимку і прохолодним у спекотні дні, адже внутрішній мікроклімат буде підтримуватись природним чином завдяки виконанню будови зі справжнього, теплого і дихаючого дерева.
Зовнішня презентабельність струганих, дерев’яних стін не вимагає ніяких додаткових прикрас у вигляді обшивки фасадів, декорування або облицювання. Достатньо лише підкреслити природну естетику шліфуванням та покриттям для захисту і довговічності. Тому котеджі з брусів можна порівняти з готовими конструкторами, які достатньо легко і швидко складаються та не потребують масштабних фінішних робіт. За окрему вартість майстри «Домінант» можуть зібрати такий готовий будинковий комплект на фундамент замовника та доповнити зруб покрівлею, поставити вікна, двері, тощо. Саме таку додаткову комплектацію ми виконали по замовленню на котедж «Олеандра».
Індивідуальна комплектація проекту «Олеандра»
Для конструкцій зі струганого, профільованого брусу, рекомендується покриття внутрішніх стін безкольоровим воском, що підкреслює природну текстуру дерева, тоді як зовнішні стіни розфарбовують з додаванням кольорового відтінку, забезпечуючи захист від погодних умов. Звісно, що можна робити будь-яке колірне рішення та інтер’єр за власним смаком. І у дерев’яному будинку геть не все повинне бути дерев’яним. Дуже ефектно дерево поєднується з іншими природними матеріалами, наприклад камінь, скло, ковані конструкції. Але саме дерево прекрасне, тому його багата текстура вже слугує неабиякою прикрасою простору. Отже нашим замовникам ми завжди радимо необхідний мінімум оздоблення, але узгоджуємо фінішні роботи по будиночкам так само застосовуючи виключно індивідуальний підхід. У кожного своя формула ідеального будинку, і ми надаємо всі можливості отримати бажану будівлю, укомплектовану відповідно до смаків її мешканців. До базового комплекту проекту «Олеандра», що складається з висушених, профільованих брусів 200*150 мм, замовник побажав послугу монтажу у себе на ділянці, а також покрівлю, вікна і двері. Таким чином ми здали роботу на етапі замкнутого контуру, коли будівля повністю закрита і захищена від зовнішніх, атмосферних факторів, і можна переходити до внутрішніх робіт.
Приклад проекту «Олеандра» та інших наших робіт яскраво свідчить, що ми пропонуємо унікальну можливість втілити всі ваші ідеї в оселі, яка стане вашим відображенням. Фахівці компанії готові реалізувати будь-які ваші задуми, надати поради щодо дизайну, технічних аспектів та матеріалів. Разом ми створимо простір, який відповідатиме всім вашим потребам та бажанням. Нехай ваш будинок стане місцем вашої сили, де кожна деталь відповідатиме вашій індивідуальності!




















