- Новини
- 0 вподобання
- 4919 покази
З радістю розповідаємо про реалізацію нового індивідуального замовлення. Статний красень-зруб по проекту «Ріджен» зараз виконується з сухого профільованого бруса 200*150 мм в Ясногородці Київської області. Практичність, витонченість, унікальна краса і сучасність - маєток з бруса відображає сучасний стиль життя свого господаря і його відмінний смак.
Історія розробки проекту «Ріджен» заслуговує на особливу увагу. Замовнику сподобався готовий проект дерев’яного будинку «Кальміс3к» і надихнув на створення власного творіння з сухого профільованого бруса , стабілізованого в прес-вакуумній сушці і непідвласного усадочним процесам. Крім перерахованих переваг, профільований брус володіє особливою естетикою мінімалізму, що дозволяє втілювати цікавий і лаконічний дизайн хай-тек або сувору геометрію стилю модерн.
Споруда гарного будинку з сухого бруса за проектом «Ріджен»
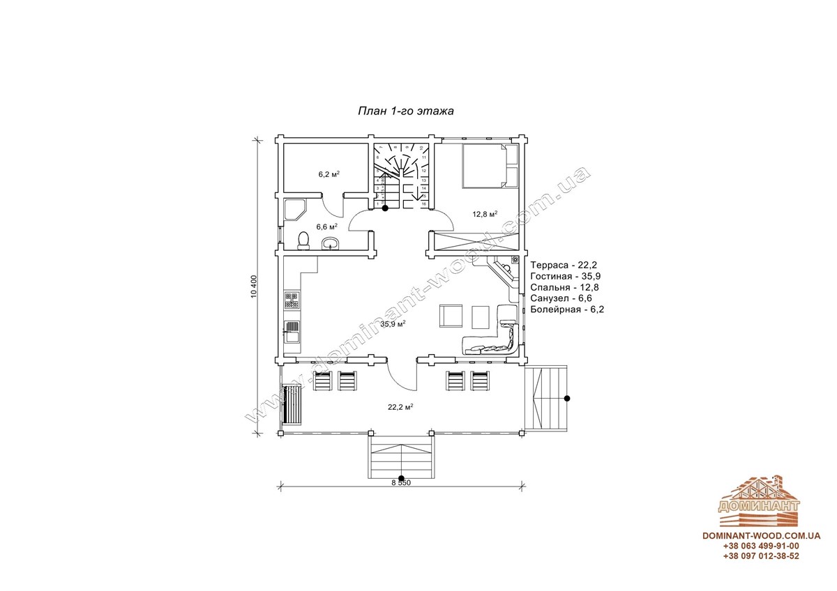
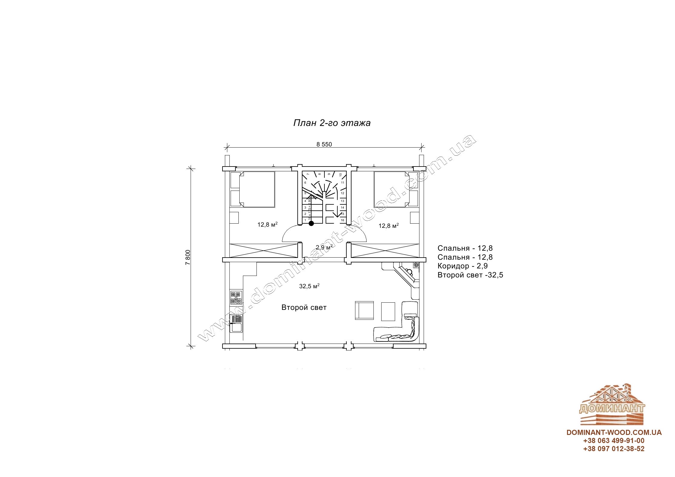
Один з найбільш гідних і дивовижно містких проектів «Ріджен» створений в результаті втілення творчих ідей клієнта нашим архітектором. Місткі параметри будови 10,4х8,5 м і її загальна площа - 144,7 м2 дозволяють зробити всередині будинку все необхідне для створення максимального комфорту абсолютно всіх домочадців.
Дуже міцний, виконаний з профільованого бруса розміром 200*150 мм, велетень зустрічає нас величезною критою терасою, на якій можна розмістити кілька канапок або обідній стіл для всієї родини. Розкішна тераса підкреслює велику кількість простору цієї будівлі і заявляє з порога про його велич. Не розчаровує споруда і своєї внутрішнім плануванням. Справжньою перевагою і родзинкою «Ріджену» є друге світло. Це унікальний простір, який можна використовувати в грі з дизайном самого приміщення та інтер’єром. Уявіть, якого розміру ялинка буде красуватися в залі з другим світлом!
Цей проект створений для великої родини. Тут передбачений куточок особистого простору для кожного і три великі спальні є тому доказом. У проект включені бойлерна і котельня. Це означає, що у вашому домі завжди буде автономне опалення і гаряча вода. Цікаві поради з облаштування господарського приміщення в зрубі рекомендуємо прочитати в нашій попередній статті.
Дерев’яний будинок, створений з любов’ю для сім’ї
Жоден інший будинок не здатний створити таку теплу атмосферу затишку і комфорту, як це робить натуральний дерев’яний зруб . Тепле і живе дерево для зведення стін будинку ідеально підходить для здорового і щасливого проживання сім’ї, для дорослих, дітей і гостей сімейства. Гарний і зручний будинок з дерева «Ріджен» був створений з любов’ю до себе і своєї сім’ї. Такий будинок з сухого бруса - мудрий вибір для всіх, хто цінить особисту свободу, комфорт і практичність, хто розуміється в якості і знає , що вкладення в довговічність свого будинку - найкраща інвестиція. Придивіться до гарного проекту брусового будинку «Рідж» - ви закохані? Значить, він створений для вас!





















