- Новини
- 0 вподобання
- 1748 покази
В сучасному світі панування екологічних трендів та натуральних матеріалів дерев'яні котеджі знаходяться в центрі уваги. Це естетично привабливі, екологічні, функціональні та довговічні споруди. Компанія «ДОМІНАНТ-ВУД» пропонує широкий вибір дерев'яних будівель, які відрізняються своєю високою функціональністю та стильним дизайном. Нещодавно до каталогу компанії було додано кілька нових проектів будинків. Серед наших новинок цього разу вас здивує різноманітність проектних рішень – це і житлові будинки, і гостьові котеджі і навіть проект комерційної лазні.
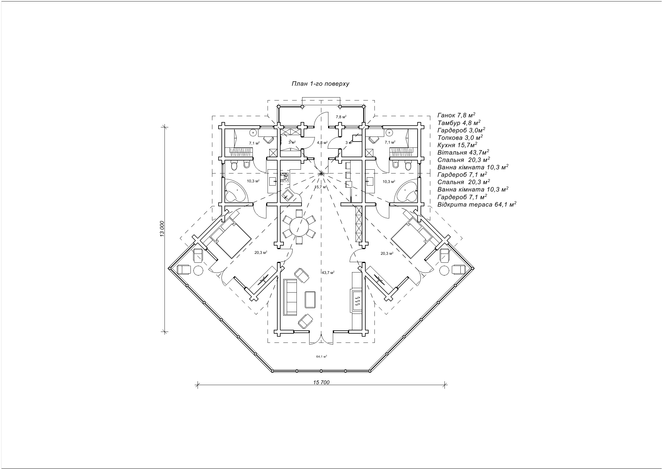
Перша будова серед нових проектів, «Аденор», відрізняється нестандартною, складною формою, яка викликає асоціаціїї з метеликом або квіткою.
Проект виконаний з оциліндрованих колод. Саме з цього матеріалу можна відтворити нестандартні архітектурні обриси, поєднуючи колоди за допомогою косих чаш, а не тільки прямокутних. Така цікава архітектура створює простір для фантазії при оформленні інтер’єру. Особливо це стосується незвичного розташування спалень, що, ніби промені, виходять з вітальні у цьому котеджі. Особливою відзнакою проекту «Аденор» є просторі розміри кожної кімнати. Площа кожної спальні складає більше 20 м2, тут в кожного мешканця буде безліч особистого простору. Також планом будови передбачено багато вікон, що дозволяють великій кількості денного світла проникати всередину, сповнюючи оселю теплом і затишком.
У візуалізаціях проекту «Аденор» від архітектора «Домінант» видно велику терасу на стовпах, яка виступає поєднувальним елементом цоколя та рельєфної ділянки. Це гарний приклад поєднання будови з ландшафтом у гармонійну композицію.
Проект «Аденор» підходить власникам ділянок з вираженим рельєфом та для тих, хто шукає незвичні архітектурні форми у виконанні з натуральних матеріалів. Якщо ви хочете знайти креативні ідеї для будівництва свого власного будинку, звертайтесь до офісу «ДОМІНАНТ-ВУД». Тут ваші найсміливіші ідеї отримають професійне втілення в натуральному дереві!
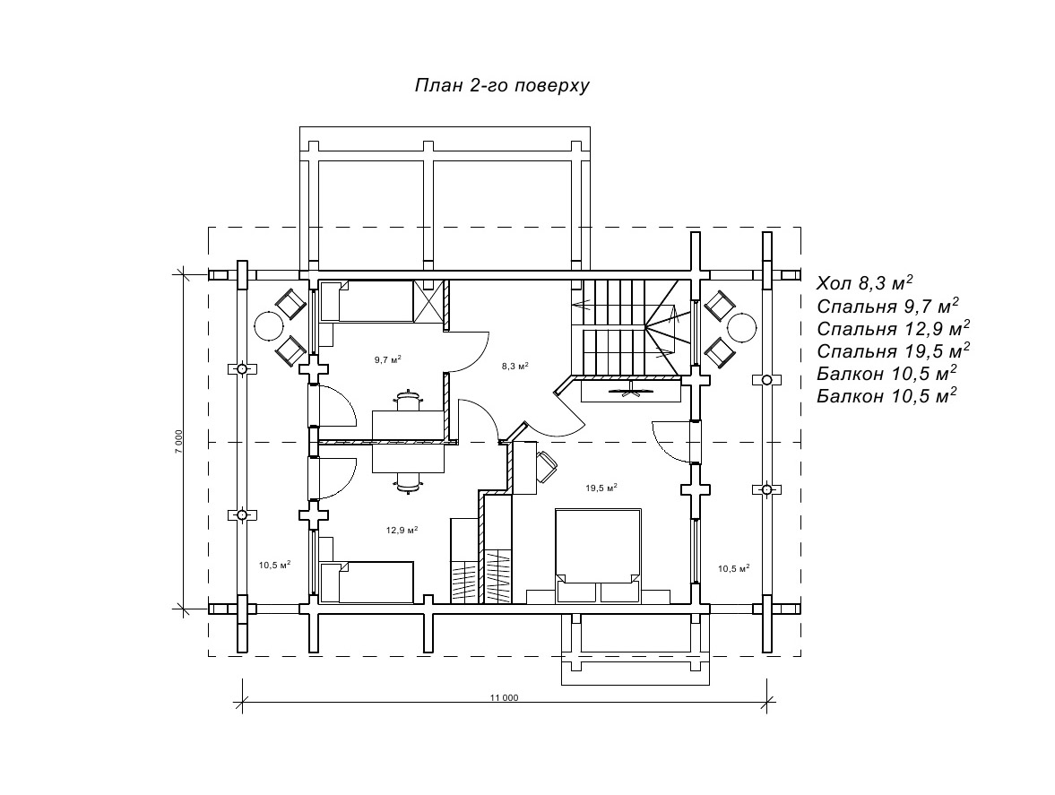
Проект «Елара» також виконаний з оциліндрованих колод, як попередній варіант, але ця модель містить два поверхи.
Двоповерховий будинок з дизайном в стилі сучасної класики можна презентувати як уособлення сімейного затишку. Про це свідчить і внутрішнє наповнення будинку, що містить житлові та підсобні приміщення, забезпечуючи ефективний розподіл простору. Зручне та функціональне розташування кімнат забезпечує максимальний комфорт для мешканців. Зверніть увагу, що на плануванні другого поверху перегородки виконані каркасним методом. Це урізноманітнює варіанти оформлення інтер’єру та економить бюджет будівництва.
Надзвичайно гарною особливістю котеджу «Елара» є симетричні балкони-тераси на другому поверсі, з яких можна насолоджуватись мальовничими краєвидами на довкілля з обох боків будови. Завдяки високоякісним матеріалам виконання, майстерному дизайну та функціональному плануванню, цей проект може задовольнити потреби сімейної пари з декількома дітьми. Якщо ви шукаєте власний куточок затишку, краси та комфорту, котедж «Елара» - ідеальний варіант для вас.
Розглянувши маєтки для постійного та комфортного проживання родини, переходимо до нової пропозиції гостьового котеджу. Котедж «Делла» - цікавий проект гостьового будинку, побудований з висушеного соснового брусу, який має дві спальні, зручну кухню-вітальню та ванну кімнату.
Розмір котеджу становить 60 м2, що ідеально підходить для відпочинку невеликої сім'ї або пари. Архітектура будинку прикрашена величезними панорамними вікнами, які дозволяють насолоджуватися прекрасним видом на природу та двома відкритими терасами, де можна побути на свіжому повітрі. Проект має оригінальну форму, що виходить за рамки стандартних прямокутних будівель, тому котедж буде привабливим для тих, хто надає перевагу нетривіальним речам.
Особлива технологія виконання проекту «Делла» з прес-вакуумно просушеного соснового брусу надає йому високу стійкість від деформацій, спричинених перепадами температур і вологості. Якщо ви хочете мати власний котедж «Делла», ви можете замовити його комплект для будівництва і насолоджуватися комфортом, який він створить на вашій території.
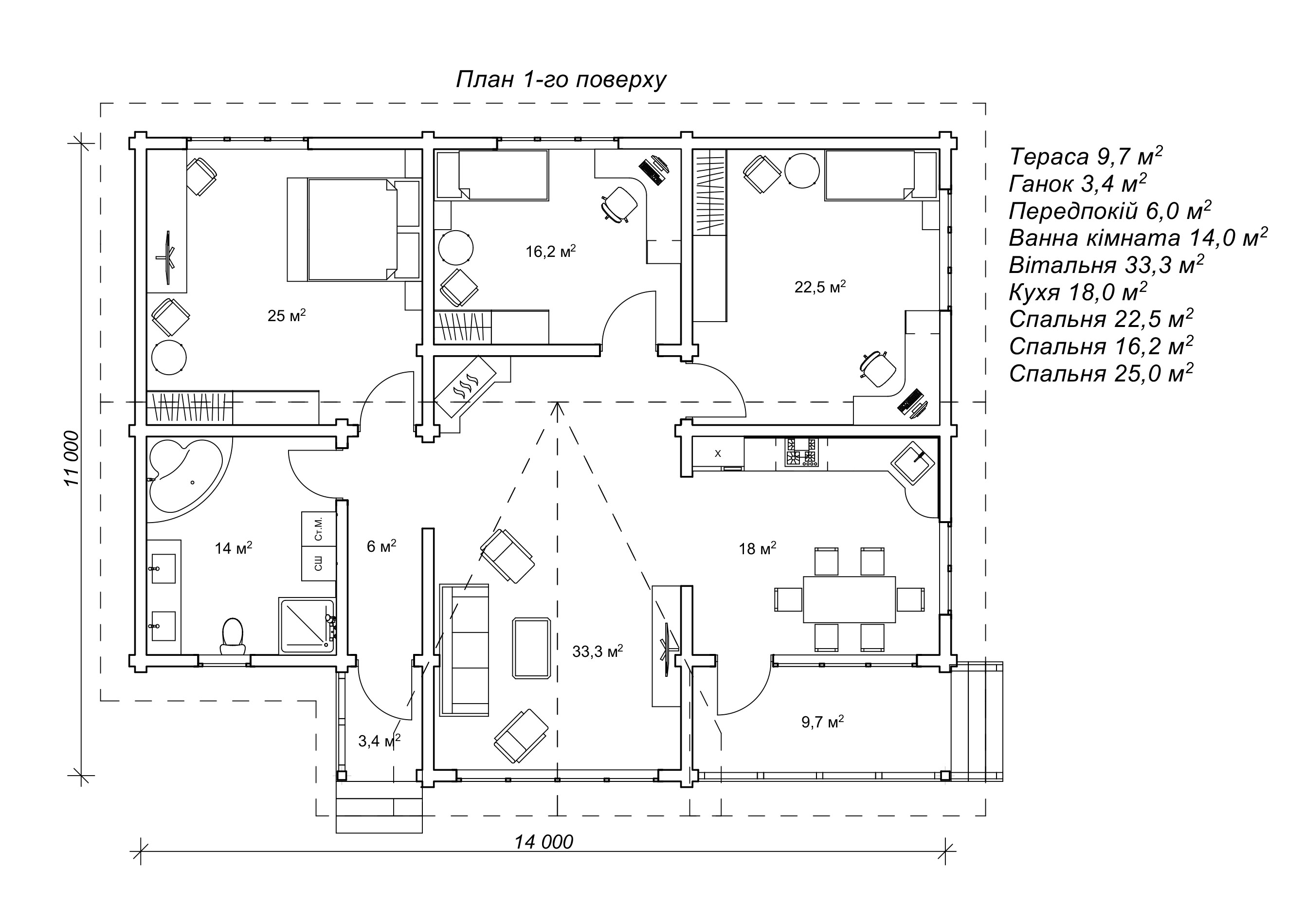
Проект «Батиста» також створений з сухого, профільованого брусу, але в ньому, на відміну від гостьового будиночку «Делла», надаються чудові умови для розкішного проживання на постійній основі. Одноповерхова вілла «Батиста» з висушеного профільованого брусу відрізняється цікавою формою даху над великими панорамними вікнами, що прикрашають головний фасад.
Велика площа скління дозволяє в середині приміщень отримувати достатньо природного світла і повітря, а каркас будівлі з профільованого брусу забезпечує її виключну міцність і естетичність. Загальна площа проекту «Батиста» з терасою складає 148,1 м2, а його план включає передпокій, вітальню, кухню з відокремленими зонами їдальні та приготування їжі, ванну кімнату і три великі спальні, кожна з яких має площу більше 16 м2. Котедж «Батиста» стане ідеальним вибором для тих, хто прагне до облаштування свого життєвого простору на одному рівні без щоденних переміщень по сходам.
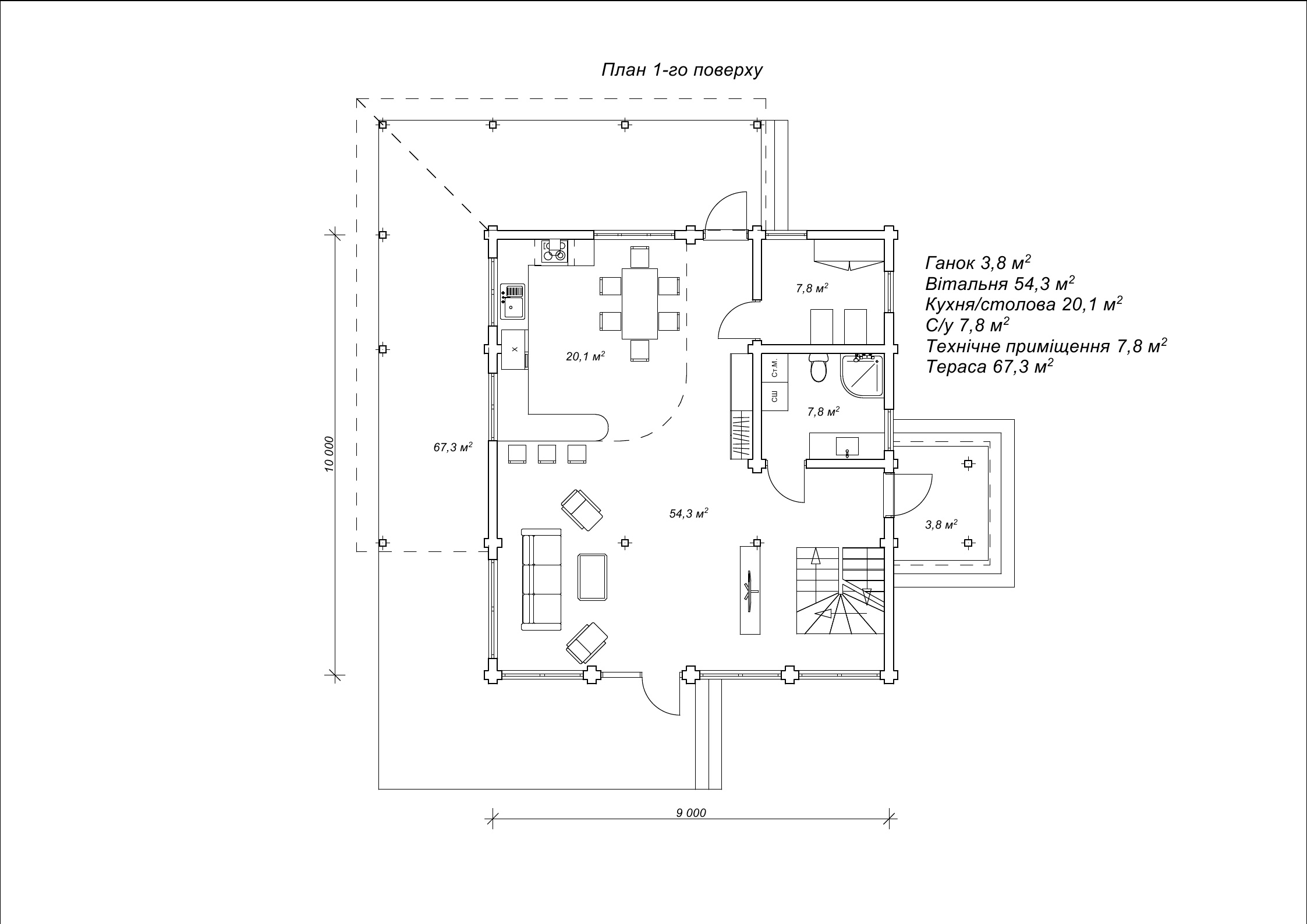
Проект дерев'яного будинку «Ейдіс» - це двоповерховий маєток, розроблений в сучасному стилі з великою кількістю скління та панорамних вікон, що надає можливість насолоджуватись прекрасним видом на природу.
Це чудовий приклад того, як сучасно і цікаво може виглядати дерев’яна споруда. Саме виконання стін зі струганого, профільованого брусу після прес-вакуумного сушіння, надає такого вишуканого та елегантного вигляду проекту «Ейдіс». Цей проект з профільованого брусу має осьові параметри 10х9 м та складається з двох повноцінних поверхів з односкатним дахом та великою терасою. Загальна площа будинку, включаючи терасу, становить 220 м?. На першому поверсі розташовані велика вітальня зі скляними стінами, кухня/їдальня, санвузол, технічна кімната та простора тераса. На другому поверсі знаходяться хол, ванна кімната, гардеробна та дві спальні. Цей проект будинку є ідеальним варіантом для сучасних людей, яких цікавить не лише комфорт але й естетична складова життєвого простору.
Розглянувши різноманітні варіанти житлових та гостьових будов, пропонуємо бізнес проект дерев’яної лазні.
Проект «Майлона» розроблений спеціально як лазня для комерційного використання, і має оригінальний дизайн з великою терасою та зручне планування для прихильників банного відпочинку. Колодчасті округлості додають будівлі затишку та аутентичності.
Як правило, саме дещо казковий вигляд оциліндрованого зрубу сильно приваблює відвідувачів комерційних закладів. Тому для розробки проекту комерційної лазні «Майлона» було обрано саме технологію оциліндрованого зрубу. Загальна площа лазні разом з терасою складає 93,5 м2, а всередині є приміщення для лазневого дозвілля та відпочинку. Масштабна тераса навколо стін створює комфортні умови для проведення часу на свіжому повітрі.
Головною особливістю проекту «Майлона» є велика парилка площею 7,7 м2, яка розрахована на одночасне перебування кількох людей. Такий розмір парної кімнати зручний для гостей, які бажають відпочити в компанії друзів. Простора тераса площею 47,2 квадратних метрів є ідеальним місцем для барбекю та насолоди навколишніми краєвидами після відвідування парної кімнати.
Лазня з колод «Майлона» є вдалою інвестицією для тих, хто прагне розвивати і доповнювати свій бізнес у готельній, туристичній, ресторанній чи медичній сферах. Проект здатен повністю забезпечити комфортний та затишний відпочинок для клієнтів, а також можливість вигідного розширення бізнесу за рахунок додання лазневих процедур. Як бачите, каталог «Домінант» доповнився чудовими моделями котеджів на будь-який, навіть найвибагливіший смак. Це й житлові проекти будинків (одноповерхові і двоповерхові), що виконані з різних видів і розмірів соснових брусів, а також проект, створений для комерційного використання.
Загалом, кожен з цих проектів має свої переваги та особливості, які відрізняють їх один від одного. Однак, всі вони мають спільну рису - це дерев'яні будови, що забезпечують здорове та екологічне життя та відпочинок. Дерево - це натуральний матеріал, який має відмінні теплоізоляційні властивості та дозволяє будівлі «дихати», що сприяє найбільш здоровому середовищу в середині приміщень. Будівництво дерев'яних будинків також є екологічно чистим процесом, що зменшує вплив будівництва на навколишнє середовище та допомагає зберегти природні ресурси. Крім того, дерев'яні будівлі мають високу міцність та довговічність. Це дозволяє їм витримувати різний погодний вплив протягом довгого часу. Таким чином, будівля з дерева є вигідною інвестицією у майбутнє, оскільки вона зберігатиме свою цінність протягом тривалого часу.
Отже, якщо ви плануєте будівництво власного будинку, варто звернути увагу саме на наші нові пропозиції, адже каталог «ДОМІНАНТ-ВУД» постійно доповнюється проектами дерев’яних будов, які задовольняють будь-які потреби та вподобання сучасних клієнтів.





















































