- Новини
- 0 вподобання
- 3461 покази
Деякі проекти дерев’яних будинків настільки популярні серед сучасних замовників, що це зумовило серійне виробництво і будівництво цих проектів в різних технологіях і варіантах планування. Огляд найбільш популярних проектів та їх серійних моделей ми пропонуємо у відповідній публікації. Сьогодні ми раді поділитися новою розробкою від архітектора «Домінант», в якій презентовано серію будиночків ідентичної стилістики, але з різним плануванням помешкань, підлаштованим під різноманітні запити клієнтів. Це три котеджі, виконані в сучасному дизайні на одну, дві і три спальні, кожен з яких має навіс для авто та інші переваги.
Всі проекти серії «Нордіс» виконуються з висушеного, профільованого брусу, якісно зробленого з соснової деревини. Струганий брус має рівні поверхні, поєднуваний профіль та виключно прямі кути. Така сувора геометрія ідеально обточених брусів дозволяє отримати сучасний дизайн будівель у лаконічній, скандинавській стилістиці. Прихильники нордичного мінімалізму знайдуть втілення свого уявлення про ідеальний життєвий простір у серії проектів «Нордіс».
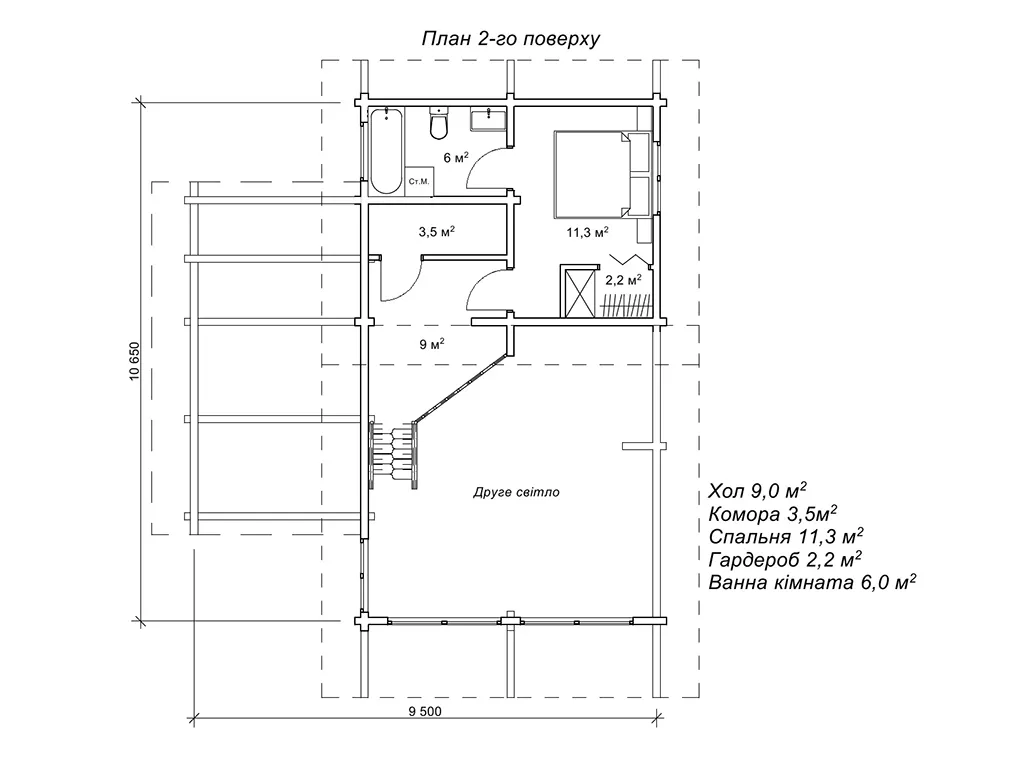
«Нордіс1»: проект котеджу 10,6 на 9,5 м на одну спальню
Почнемо наш огляд новинок будиночків з першого проекту лінійки котеджів «Нордіс1». Зовнішній вигляд проекту вражає своєю сучасністю та естетичним дизайном, а великі вікна не тільки пропускають багато природного світла всередину оселі, але й роблять головний фасад особливо привабливим. Односкатний дах візуально врівноважується навісом для авто, створюючи деяку симетрію для гармонічного і цілісного сприйняття споруди. Параметри забудови складають 10,6 на 9,5 метра, а загальна площа становить 97,9 квадратних метра.

Інтер'єр котеджу розроблений з урахуванням оптимального використання простору та забезпечення максимального зручності для мешканців. Простора кухня/вітальня, розташована в центрі будинку, займає площу 36,9 квадратних метра. Це універсальне приміщення ідеально підходить для готування їжі та відпочинку з родиною або гостями. Великі вікна на головному фасаді забезпечують відмінну освітленість приміщення та надають чудовий вид на навколишню місцевість. «Нордіс1» просто створений для будівництва у мальовничому природному куточку та насолоди життям в оселі з природних матеріалів. В котеджі передбачена одна спальня площею 11,3 м2, що створює ідеальне місце для відпочинку та усамітнення. Невеличка гардеробна в спальні допомагає організовано та охайно зберігати особисті речі. Ванна кімната розміром шість квадратів дозволяє встановити на свій смак душову кабіну або ванну.
Біля входу в котедж облаштоване ідеальне місце для відпочинку. Тут можна встановити лавочку і столик, насолоджуючись свіжим повітрям та краєвидами. Ця тераса просто створена для проведення вечорів або ранкової кави. Під навісом бічного фасаду відведене місце для паркування автомобіля. Загалом, цей сучасний, функціональний та привабливий будинок рекомендується для тих, хто мріє про заміський або дачний котедж, виготовлений з високоякісних та натуральних матеріалів.
«Нордіс2»: проект будинку 10,6 на 9,5 м на дві спальні
Такий вартий уваги будиночок ми просто не могли не збільшити на ще одну спальню, щоб розширити його функціональність. Тому наш архітектор розробив модель котеджу «Нордіс2» з двома спальнями, щоб дачний або гостьовий котедж перетворився на повноцінне заміське житло.
Зовнішній вигляд проекту «Нордіс2» вражає своєю сучасністю та естетичним дизайном, а високі вікна на головному фасаді роблять його просто розкішним та пропускають багато природного світла. Зауважте, що у тих самих параметрах забудови, що й вихідна модель котеджу, а саме 10,6 на 9,5 метра, передбачено набагато більше простору за рахунок додавання антресолі зі ще однією спальнею і ванною.
Завдяки такому архітектурному рішенню ми поліпшили не тільки функціональність котеджу, а й естетичну складову. Адже наявність «другого світла» над вітальнею створює відчуття широти простору та відкриває багато можливостей для створення нетривіального інтер’єру.
Цей сучасний, функціональний та привабливий котедж відповідає всім потребам сучасної людини, яка шукає комфортного заміського життя.
«Нордіс3»: проект маєтку 13 на 10 м з трьома спальнями і навісом для авто
Якщо попередні два проекти з лінійки «Нордіс» позиціонуються як гостьовий котедж та двокімнатний житловий будиночок, то «Нордіс3» являє собою ексклюзивну розробку для тих, у кого достатньо можливостей, щоб облаштувати собі максимально комфортабельне та розкішне житло з екологічних матеріалів. «Нордіс3» - це справжня інвестиція в значне підвищення якості життя та суттєвий вклад господаря в затишок і родинний осередок своїх майбутніх поколінь. Наявність такого стильного та сучасного маєтку заявляє про неординарну особистість власника, високий естетичний смак та відповідний фінансовий статус.
Звичайно, що проект «Нордіс3» володіє збільшеними параметрами, порівняно з двома попередніми котеджами. Адже така розкішна будова потребує багато місця, щоб розмістити ще більше зручностей. Отже, розміри забудови проекту «Нордіс3» складають 13 на 10 м. Загальна площа садиби - 167,8 м2. Погодьтесь, що не так і багато, якщо порівняти з іншими готовими проектами садиб із брусу від компанії «Домінант».
Проект «Нордіс3», так само, як його попередні версії, включає зручний навіс для автомобіля, що вирішує транспортні потреби господарів і гостей. Три спальні свідчать про можливість зручного розміщення та проживання великої родини. Три ванні кімнати сприяє неперевершеному комфорту кожного мешканця будинку. Наявність кабінету розширює можливості працювати або навчатися вдома, що особливо актуально останніми роками коронавірусних карантинів та війни.
Загалом, маєток з профільованого, сухого брусу по проекту «Нордіс3» є одним з найстильніших і найновіших наших проектів, призначених для тих, хто обирає престижне житло, прогресивні технології будівництва та сучасний, скандинавський дизайн. Його зручність і комфорт поєднуються з сучасним і привабливим зовнішнім виглядом, доповнюючи існуючі котеджі «Нордіс1» і «Нордіс2». Такі серійні проекти демонструють, як будь-який готовий проект з нашого сайту можна обіграти, змінити, доповнити залежно від запитів по функціональності, плануванню та дизайну.
Цікаво дізнатись, який з проектів «Нордіс» обрали б саме ви, і чому? Залишайте коментарі до нашого огляду, а ми готові реалізувати будівництво будь-якого проекту або вашого ідеального, індивідуального будинку, спроектованого з врахуванням всіх ваших побажань та вимог. Усі дерев'яні будинки, майстерно зроблені «Домінант» відповідають високим стандартам якості і втілюють особистість та стиль клієнтів. Обирайте «Домінант» для будівництва вашого ідеального дерев'яного житла!
























