- Новини
- 0 вподобання
- 825 покази
- Будуємо лазні, Споруди «Домінант» в Україні, Індивідуальні проекти
Коли до нас надходить запит на щось унікальне, ми з особливим натхненням беремося за роботу. Адже кожна будівля, спроектована за індивідуальними побажаннями клієнта, найкраще відображає особистість її власника та наш професіоналізм і творчий підхід. Сьогодні ми хочемо поділитися історією створення однієї такої лазні, що стала результатом ексклюзивного замовлення. Можливо, саме цей проект надихне вас на реалізацію власного задуму!
Проектування лазні під індивідуальний запит
Соснове дерево має природну здатність наповнювати повітря природними ароматами, які заспокоюють, знімають втому і очищують дихальні шляхи. Ось чому власна лазня з соснових колод є справжнім куточком здоров’я і релаксації. Побудувавши таку лазню, ви можете повністю розслабитись після насиченого дня або зробити лазню джерелом додаткового дохода. Ось, наприклад, одна з наших останніх робіт - оциліндрована лазня, створена за індивідуальним проектом для клієнта з села Гребінки Київського району. Це уособлення класичного зрубу, в якому є все для справжнього комфорту та відпочинку! Вона може справно послужити як для особистого використання, так і для бізнес цілей.
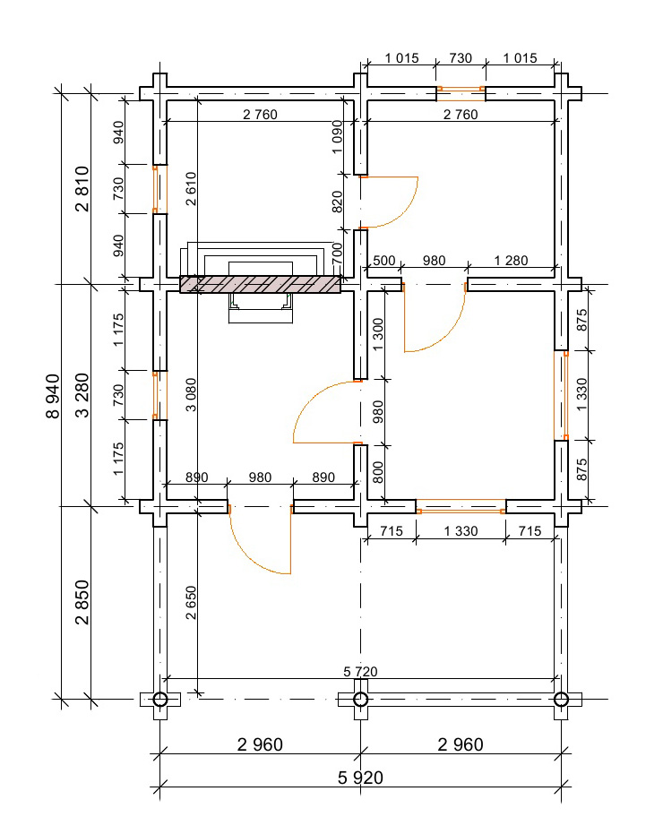
Будівництво за індивідуальними побажаннями - це завжди про деталі, увагу до кожного нюансу й чітку організацію роботи. Ми почали з технічного проекту, що дозволяє не лише продумати всі особливості конструкції, але й точно визначити потрібну кількість матеріалів і їхню вартість. Замовник надав нам власну схему планування, і на її основі ми створили детальний проект дерев’яної частини будівлі. Фінальний, затверджений замовником проект, включив три приміщення, включно з парилкою, і велику терасу, що розташувалася під навісом даху. Це рішення стало ідеальним, адже додало простору для відпочинку на свіжому повітрі. Площа загальна по осям колод з врахуванням тераси склала 52,9 м2, конструкції стін ми зробиили з оциліндрованого брусу 200 мм. Цей діаметр соснової колоди рекомендується навіть для будівництва житлової, всесезонної оселі. Тому у випадку з будівництвом лазні, товстіші стіни сприятимуть чудовому зберіганню тепла. Швидко натопивши приміщення до потрібної температури, в такій лазні не потрібно буде багато дров або електрики, щоб пітримувати температуру на потрібному рівні увесь час. Розташована в мальовничій місцевості, лазня має велику терасу, де можна насолоджуватися природою в будь-яку пору року. Цей елемент перетворює її на ідеальне місце для відпочинку і спілкування з гостями. Параметри забудови разом з терасою склали 5,9 на 8,9 м. Лазня стала справжньою гордістю нашого клієнта, і ми раді, що змогли втілити його мрії у життя.
Протягом усього процесу ми працювали в постійному діалозі із замовником. Такий підхід дозволив не лише максимально оптимізувати витрати, а й створити лазню, що повністю відповідала його побажанням. Клієнт міг змінювати розміри та конфігурацію приміщень, висоту стін, форму даху, розташування вікон і перегородок. В результаті ми отримали ретельно спланований простір, що став віддзеркаленням смаків і потреб свого власника.
Які переваги індивідуального підходу до будівництва лазні
Будівля, що створена саме для вас, по-справжньому втілює ваші бажання і відзеркалює звичний стиль життя. Індивідуальний підхід до будівництва лазні дозволяє зробити споруду унікальною, комфортною і максимально функціональною. Ось кілька ключових переваг, які ви отримуєте, скориставшись нашою опцією індивідуального проектування:
1. Персоналізований дизайн. Ми не нав'язуємо готові шаблони, а створюємо проекти, які відповідають саме вашим уявленням про ідеальну лазню. Вибір архітектурного стилю, планування та навіть найдрібніших деталей повністю залежить від ваших вподобань.
2. Максимум функціональності. Замість того щоб адаптуватися до чужих стандартів, ви отримуєте простір, який спроектовано під ваші потреби. Зручне розташування кімнат, оптимальна висота стін, ідеальна площа - усе продумано і затверджено вами до дрібниць.
3. Можливість обирати матеріали. Соснові колоди, які ми виробляємо на власному устаткуванні - це екологічно чистий матеріал з чудовими експлуатаційними характеристиками. Ми дбаємо про захист кожної колоди від шкідників, цвілі та вогню. До того ж ви завжди можете обрати той варіант з наших технологій виробництва і будівництва, що відповідає вашим вимогам до якості та бюджету.
4. Контроль витрат. Бюджет формується під ваші можливості. Разом ми знаходимо ідеальний баланс між якістю й ціною, а ви вирішуєте, на чому можна заощадити, а де варто вкласти більше.
5. Недороге обслуговування. Лазні з соснових брусів довговічні, зручні та одразу готові до використання. Дерево потребує мінімум обробки, та й поновлювати шліфування і фарбування потрібно не частіше ніж раз на 5-6 років. Плюс високі властивості теплозбереження соснової деревини дають можливість суттєво економити на обігріві.
6. Висока ринкова цінність. Індивідуальні лазні з дерева завжди мають попит. Їхні якість і стильність приваблюють не лише власників, а й потенційних інвесторів або гостей, якщо ви вирішите розвивати бізнес.
Завдяки індивідуальному підходу до кожного замовлення, нам вдається створювати дерев’яні будови, що стають джерелом задоволення, натхнення та успіху. Ми спеціалізуємось на будівництві лазень та інших споруд з соснових колод і завжди раді реалізувати навіть найскладніші та найоригінальніші проекти. Наші майстри професійно втілять в реальність будь-яку вашу ідею, гарантуючи відмінну якість роботи та використання лише найкращих матеріалів. Якщо ви обираєте нас, ви отримуєте не просто будівлю, а справжній витвір, що відображає ваші смаки та потреби!






















