- Новини
- 0 вподобання
- 1361 покази
- Індивідуальні проекти «Домінант», Будуємо лазні, Споруди «Домінант» за кордоном
Ми вкладаємо максимум зусиль в кожне замовлення, здійснюючи персоналізований підхід до кожного проекту з будь-якого куточку світу. Тому міжнародне визнання якості дерев'яних будівель, зроблених потужним українським підприємством «Домінант», набуває нових масштабів, і ми пишаємося цим результатом. Є країни, звідки замовлення на наші будинкові комплекти надходять на постійній основі, і одна з таких країн – це Німеччина. Отже, сьогодні демонструємо комплект лазні, який придбав німецький замовник, самостійно його склав і облаштував на свій смак.
Дизайн проекту під замовлення
На нашому веб-сайті доступний широкий вибір готових проектів будинків і лазень з брусу, які можна замовити для будівництва без змін. Але навіть у вже готові проекти можна внести коригування за вашим бажанням. Натомість, якщо ви маєте власні ідеї, наші фахівці завжди готові спільно з вами розробити унікальний проект, що відповідає всім вашим особистим потребам і вподобанням. І саме такий підхід обрав наш черговий клієнт з Німеччини.
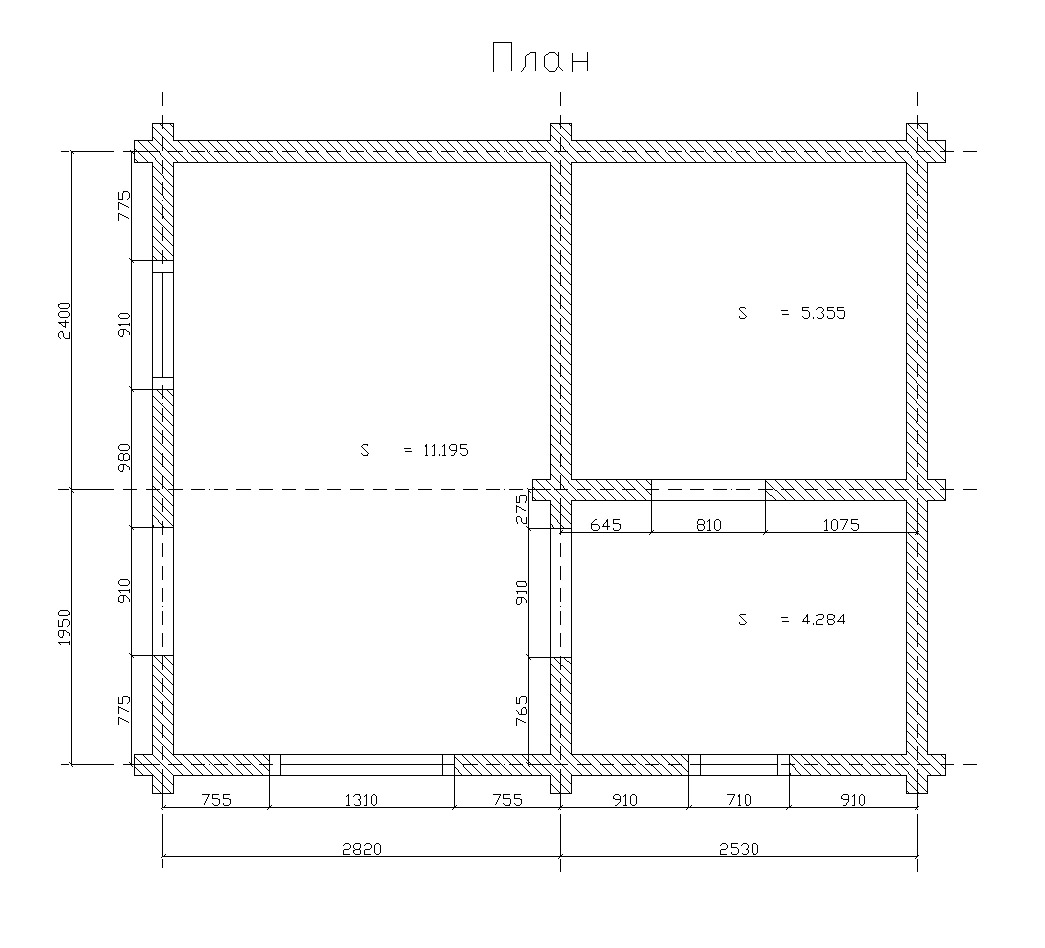
Після спільної роботи наших фахівців і замовника було створено дизайн лаконічної, акуратної та дуже компактної лазні площею 20,8 м2 з парилкою на п’ять квадратів, яка розрахована на 4-6 людей при двоярусному розташуванні лежаків. Параметри споруди склали 5,3 на 4,3 м. Такий, майже ляльковий, будинок легко розмістити навіть на найменшому клаптику землі. В середині є парилка, душ і туалет, а також невеличка кімната відпочинку, яку можна використовувати у якості літньої веранди або закритої альтанки. Стіновий матеріал лазні – сухий, профільований брус 150*150 мм, який майже не потрібно обробляти нічим крім фарбування. Адже попередня обробка пресс-вакуумною сушкою та вогнебіозахисним засобом, що здійснюється на території заводу-виробника, вже надає стіновому комплекту виключної витривалості від деформацій і пошкоджень вогнем, грибком або комахами.
Таким чином, замовник отримав від нас дуже функціональний і простий дизайн лазні, як він і бажав, щоб при подальшому отриманні вже виробленого за проектом комплекту скласти таку лазню швидко і без зайвих труднощів. А вибір заздалегідь просушеної деревини дасть можливість клієнту не турбуватись про майбутню усадку брусів, здійснюючи обшивку парилки. Це значно спрощує всі роботи по облаштуванню необхідного в парилці устаткування та й, загалом, всі фінішні роботи.
Самостійний монтаж та оздоблення комплекту лазні
Як правило, гранична простота і компактність - це ознаки майже всіх німецьких замовлень, що пояснюється особливостями місцевого законодавства і будівельних норм. Німці в більшості випадків надають перевагу мініатюрним будиночкам, де полюбляють облаштовувати парилки на власних подвір’ях. Популярним для Німеччини вибором є один з наших проектів «Малюк», реалізацію якого у різних видах брусу на території Німеччини можна побачити в публікації: «Проекти дерев’яних будинків – наш проект з двох видів брусу». Так само у випадку з індивідуальним замовленням проекту лазні, споруда відрізняється простотою як зовнішнього вигляду так і конструктивних складових.
На нашому заводі всі елементи будинкових комплектів виготовляються відповідно до затвердженого клієнтом технічного проекту та позначаються для замовника, який користується цим маркуванням під час будівництва. Для відвантаження за кордон готового виробу-комплекту лазні, компанія «Домінант» підготувала повну експортну документацію та необхідні міжнародні сертифікати. Після проведення оплати в рамках міжнародного договору поставки наш клієнт зміг транспортувати будинок у вигляді розібраного конструктора до своєї ділянки в Німеччині. Транспортування комплектів котеджів завжди відбувається за рахунок замовників.
Придбавши і збудувавши таку гарну лазню, наш клієнт збагатив свій прибудинковий простір чудовим місцем дозвілля і оздоровлення. Відпочиваючи в своїй сосновій лазні, господар матиме максимальний заряд енергії, адже його будуть заряджати унікальні соснові фітонциди - біологічно активні речовини, які виділяються сосною і мають природні антисептичні властивості.
Результатом нашої спільної роботи стало отримання клієнтом ідеального будиночка - лазні. Варто відзначити, що він також вклав свої зусилля у зведення дерев'яного комплекту лазні на місці, а також гарно облаштував парилку та інше внутрішнє оздоблення, тож тепер може пишатися власною роботою! А ми чекаємо нових замовлень на дерев’яні споруди, які завдяки професійному і якісному виконанню фахівців «Домінант» легко втілити у життя, незважаючи на відстань.















