- Новини
- 0 вподобання
- 1014 покази
- Будуємо лазні, Споруди «Домінант» в Україні, Індивідуальні проекти
Жодна заміська ділянка не буде по-справжньому затишною без садових споруд, які роблять простір кращим і зручнішим. Дерев’яна лазня, альтанка або літня кухня - це маст хев домашнього обійстя. Про одну з таких чудових споруд, а саме лазню, яку ми зробили для клієнта в селі Чкалівка Дніпропетровської області розповімо вам у сьогоднішній публікації. Це компактна лазня, з вигляду наче маленька хатка з казки: дерев'яні стіни, круглі колоди, велике віконце. Ця мініатюрна банька повністю втілює ідею оптимального використання присадибної території, водночас відповідаючи індивідуальним вимогам клієнта щодо її дизайна та функціональності.
Характеристики індивідуального проекту лазні
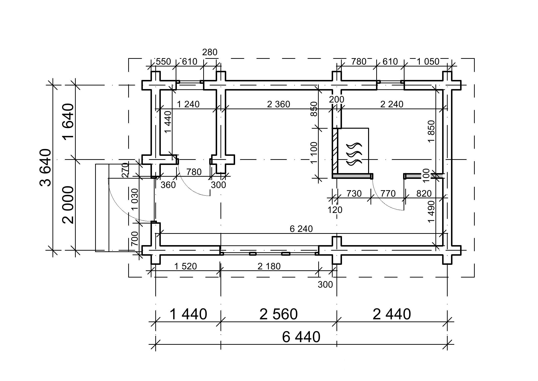
Мініатюрний будиночок з величезним віконцем та округлими дерев’яними стінами нагадує скриньку з дитячої казки, яку так і хочеться відкрити. Усередині споруди є всього одне приміщення, яке завдяки великому вікну, завжди світле і затишне. Незважаючи на компактну площу всього 24,05 м² і розміри забудови 6,4 на 3,6 метрів - всередині міститься все необхідне для банного відпочинку.
Замовнику потрібно було саме таку мініатюрну баньку, щоб вона помістилася на його території біля будинку, на заздалегідь підготовленому фундаменті. Фахівці «Домінант» розробили і втілили індивідуальні особливості плану від замовника в життя. Індивідуальне планування завжди дозволяє отримати будь-яку потрібну споруду, яка повністю відповідатиме особистим запитам та особливостям місця розташування.
Будівництво та оздоблення лазні з колод
Компактна банька на подвір’ї замовника виконана з оциліндрованих соснових колод діаметром 200 мм. Такий розмір соснових колод по теплу можна порівняти з 890 мм цегли завдяки низькому коефіцієнту теплопровідності соснової деревини. З таких брусів навіть рекомендується будувати круглорічні, житлові будови. Замовник обрав для будівництва своєї лазні таку велику товщину колод для того, щоб лазню було можна швидко натопити, і вона довше тримала тепло. Плюс, як ви вже побачили на фото, в лазні зроблена тепла підлога, для чого клієнт попередньо готував бетонну основу, куди закладені труби водяного опалення. Ця лазня дійсно буде напрочуд теплозберігаючою та економною в плані обігріву.
На етапі виробництва корпусу бані з колод, фахівці «Домінант» обробили комплект лазні засобами захисту від грибка, комах та займання, що гарантуватиме клієнту довготривалу, безпроблемну експлуатацію. Завдяки індивідуальному підходу нашої компанії до кожного проекту і замовника, будови з брусу доступні у різних варіантах комплектації. Це надає клієнтам чудову можливість обирати оздоблення за власним смаком і бюджетом
Переваги власної компактної лазні у дворі
Лазня-зруб завжди привертає до себе погляди завдяки колориту натурального дерева. Придбавши собі таку «родзинку» на власне подвір’я, ви уникнете витрат на відвідування громадських закладів зі спа процедурами. Адже, маючи лазню у власному дворі, можна користуватися нею у будь-який зручний для вас час, незалежно від погоди або інших зовнішніх факторів. Це дозволяє насолоджуватися парою тоді, коли цього найбільше хочеться, і завжди підтримувати здоровий спосіб життя. Крім того, власна лазня дає можливість облаштувати простір під ваші потреби. Ви можете вибирати розмір, тип парилки, дизайн інтер’єру та будь-які бажані додаткові опції. Погодьтеся, що таким чином можна отримати справжнє місце сили, де тіло і душа відпочивають. До того ж, власна лазня може стати невичерпним джерелом прибутку, якщо інвестувати в неї, як в комерційний об’єкт.
Сучасна технологія виробництва і будівництва споруд з оциліндрованого бруса з прогресивними способами обробки дерева, а також врахуванням процесів усадки, дозволяє поставити якісну і довговічну баньку на присадибній ділянці. Головне - обрати проект, що відповідає особистим потребам, і звернутися до фахівців «Домінант», які допоможуть втілити їх у життя!









