- Новини
- 0 вподобання
- 2789 покази
Дерев'яні сакральні споруди разюче відрізняються від аналогічних, побудованих з цегли. Дерев'яні зруби вражають своєю величчю і дозволяють з головою зануритися в атмосферу церковного таїнства. В таких храмах всі парафіяни будуть відчувати себе комфортно і зможуть проводити тут довгий час завдяки дихаючому натуральному матеріалу, з якого зводиться споруда.
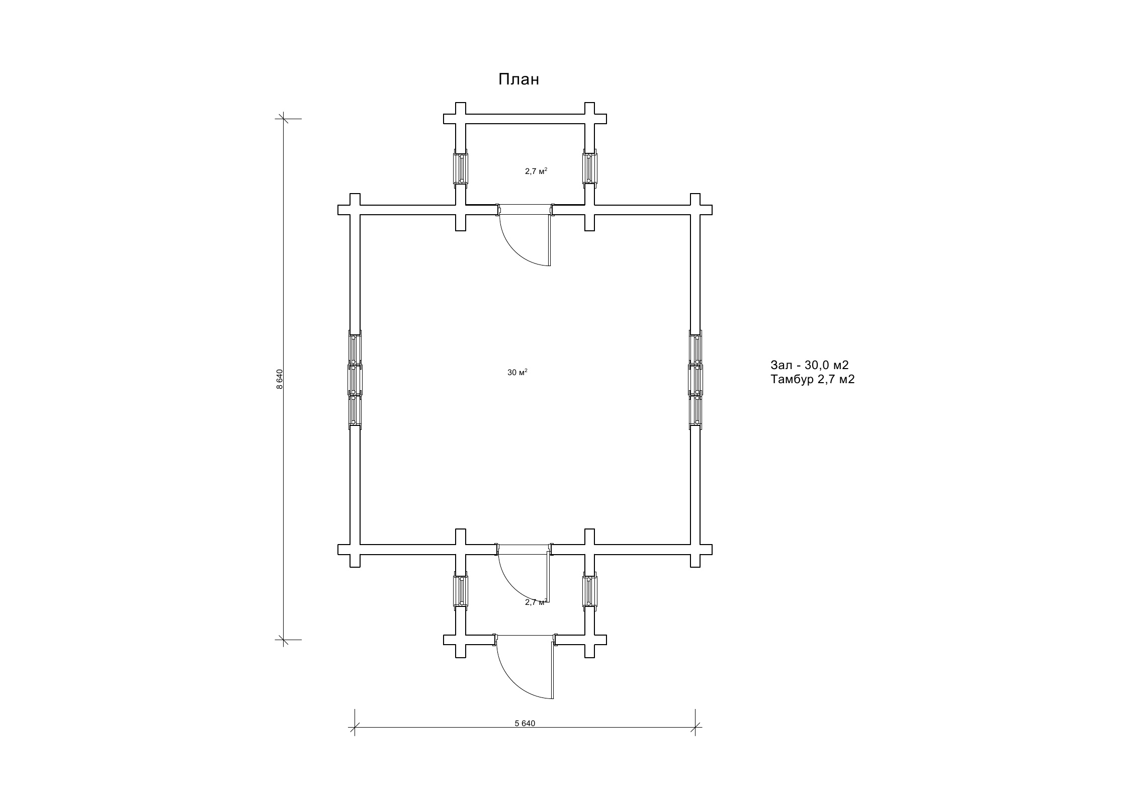
Будівництво дерев'яних церков - це один з напрямків діяльності компанії «Домінант». Нещодавно ми розповідали про будівництво зрубу церкви за проектом «Храм Володимира Мономаха» в Черкаській області . В даний момент наші майстри доповнюють цю споруду каплицею з дерева 8,6х5,6 м за проектом «Каплиця Ікони Божої Матері».
Будова виконується з оциліндрованих колод діаметром 180 мм. Проект каплиці передбачає два тамбура, один знаходиться на вході і виконує роль теплового буфера, інший - з тильного боку споруди може послужити в якості господарського приміщення. «Каплиця Ікони Божої Матері» може бути не тільки доповненням до храму, а й зводитися як самостійне спорудження. У такому випадку воно буде ідеальним варіантом для тієї місцевості, де немає церкви. Невелика сакральна споруда не замінить повною мірою храм, але дозволить всім бажаючим поставити свічку і поговорити з Господом. Незважаючи на невеликі розміри, будова виглядає досить оригінально і прикрасить собою як найближчий храм, так і околицю.
За весь час діяльності компанії «Домінант» ми побудували безліч святих споруд, тому ми маємо великий досвід в даній сфері. На сайті представлені різні проекти, серед яких ви обов'язково знайдете той, який буде вам до душі.
Дерев'яні храми заворожують своїм зовнішнім виглядом і немов повертають нас у часі, дозволяючи доторкнутися до старовинних традицій наших предків. Неперевершену атмосферу гармонії з природою і духовними силами несе в собі простий і в той же час красивий проект дерев'яної каплички . Окрасою проекту виступають хрестоподібні віконця і башточка з хрестом. Затишок і спокій наповнюють цей милий куточок спілкування з Богом, надихаючи і налаштовуючи кожного парафіянина на вчинення дієвої молитви.












