- Новини
- 0 вподобання
- 1439 покази
Практично кожна наша робота виконується індивідуально по вподобанням господарів. У компанії «Домінант» можна замовити будь-яку дерев’яну конструкцію, яку досвідчені майстри реалізують якісно і в домовлені терміни. Споруда з сухого брусу в Київській області стала ще одним з яскравих прикладів реалізації індивідуального проекту. У чому ж особливості цього будиночка? Читайте далі подробиці будівництва і дивіться фото котеджу з сухого брусу.
Проект котеджу під індивідуальне замовлення
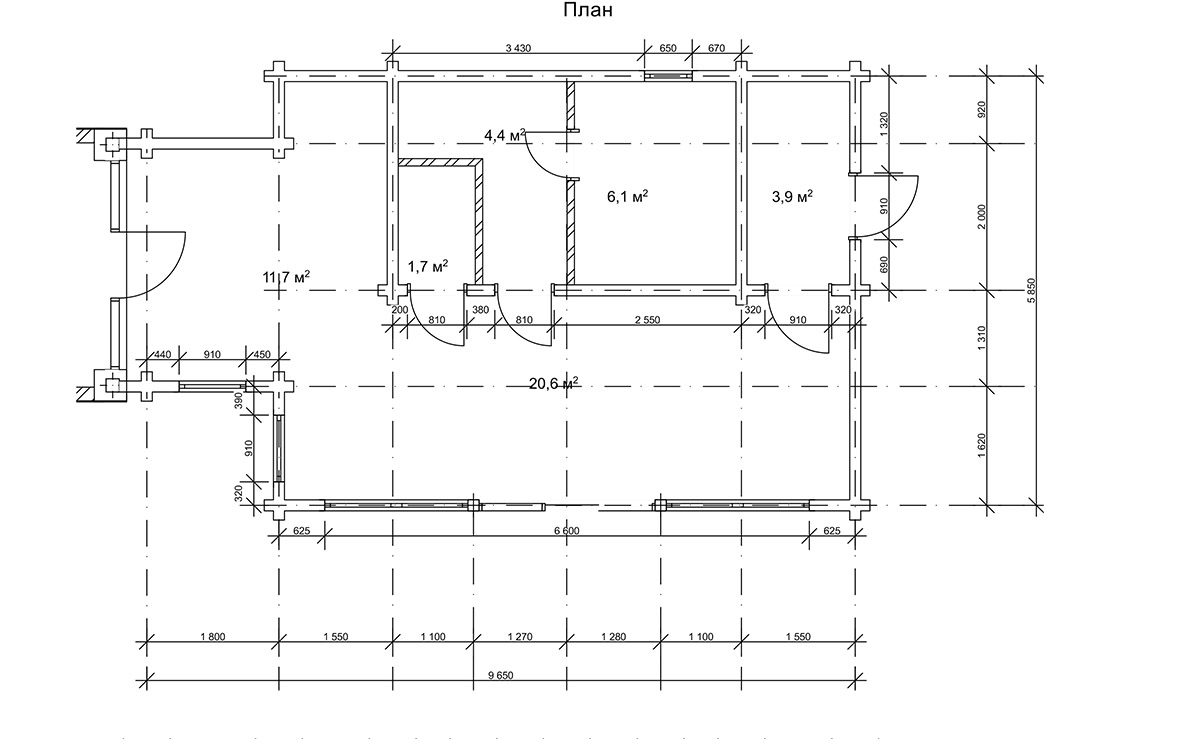
Виходячи із завдання, поставленого нам замовником, котедж з сухого бруса повинен був доповнити вже наявну на ділянці будову. Тобто в цьому випадку ми виконували добудову з сухого, профільованого бруса 150*150 мм на фундаменті замовника, що примикає до іншого спорудження. Параметри забудови склали 9,6 на 5,8 м, а загальна площа котеджу 52,6 м2. Ефектною особливістю котеджу стали великі вікна від підлоги до стелі на передньому фасаді будівлі. Дизайн котеджу з великими вікнами завжди більш привабливий для клієнтів. Присутність панорамного скління означає велику кількість природного освітлення, а значить достаток світла і затишку всередині приміщень. Будинки з великими вікнами завжди більше цінуються, ніж інші, особливо в разі комерційного призначення будівель. В даному випадку котедж повинен послужити в якості лазні, про що, в принципі, свідчить планування його внутрішніх приміщень. Проект передбачає наявність парилки, душовою, санвузлу, комори і кімнати відпочинку, яка як раз розташована перед панорамним склінням. Це означає, що після банних процедур в котеджі з сухого бруса можна буде насолодитися навколишньою природою, не залишаючи комфорту споруди.
Наш новий проект котеджу під індивідуальне замовлення послужить ще однією комфортною зоною для гостей в комплексі відпочинку. Для такої лазні не буде потрібно масштабних оздоблювальних робіт. Бруси відшліфовані на чотирибічному верстаті і стіни потрібно лише пофарбувати зовні і всередині. Плюс сухий, профільований брус стабілізовано в прес-вакуумній сушці до однакової вологості за всіма параметрами. Такий матеріал не дає усадку, тому в експлуатації не несе особливих турбот. Вибір сухого, профільованого брусу з соснової деревини можна назвати максимально вигідним для будівництва комерційної споруди такого типу. Господар швидко окупить вкладені в будівництво фінанси, а гості зможуть насолодитися максимально природним мікрокліматом дерев’яного будови.
Особливості реалізації індивідуального проекту дерев’яного будинку
Як правило, до нас звертаються замовники, які в загальних рисах уявляють, яким має бути будинок. Виходячи з вподобань майбутніх господарів, наш архітектор створює проект будинку, який в процесі розробки змінюється, узгоджується з замовником, поки не стає ідеальним для клієнта. У випадку з нашою новою роботою по будівництву будинку з сухого бруса, ми отримали і виконали абсолютно конкретне технічне завдання. Справа в тому, що побудований нами будиночок доповнив іншу споруду, утворюючи ніби одну з нею будову. На плануванні котеджу видно, з якого боку йде з’єднання двох конструкцій. Навіть коли клієнти звертаються з певним техзавданням або зі своїм, уже розробленим проектом споруди, нам потрібно адаптувати його під нашу технологію будівництва. Тому створення проекту споруди з бруса і розробка технічної документації по складанню дерев’яної конструкції обов’язкові для того, щоб зробити комплект будиночка грамотно і якісно його зібрати на фундаменті замовника.
Тобто основною особливістю реалізації індивідуального замовлення дерев’яного будинку можна назвати розробку проекту дерев’яної конструкції. Індивідуальний проект показує входить кількість матеріалу в базову комплектацію котеджу, тим самим визначаючи її вартість, яка фіксується в договорі підряду. На додаток до проекта по збірці дерев’яного зрубу замовнику надається креслення горизонтального зрізу фундаменту, щоб клієнт зайнявся підготовкою основи, поки наш завод виробляє будинковий комплект.
Друга ключова особливість індивідуального проекту будинку - це можливість реалізувати оригінальну або взагалі унікальну будову з плануванням, що підходить саме вам. Звичайно, масу різноманітних варіантів ви знайдете в каталозі готових проектів «Домінант». Але єдине і неповторне житло, якого більше ні в кого немає, створюється саме на основі індивідуальних проектів.
Так як ми вже два десятки років спеціалізуємося на дерев’яному житловому будівництві, наші майстри вміють втілювати в життя будь-які ідеї дерев’яних будівель. Тому звертайтеся невідкладно в наш офіс, якщо у вас вже є ідея своєї будівлі! Ми підберемо вам відповідну технологію виробництва і будівництва дерев’яного зрубу, враховуючи при цьому всі ваші побажання. Якщо ж у вас поки немає ідеї з будівництва свого котеджу, надихайтеся будиночками з каталогу проектів «Домінант», який ви знайдете в головному меню нашого сайту. Звернувшись до нас, незабаром ви станете власником розкішного дерев’яного зрубу!










