- Новини
- 0 вподобання
- 1735 покази
Взимку відвідування лазні дарує особливо яскраві емоції. Морозна погода на вулиці і жар всередині парної створюють неймовірний контраст відчуттів! А хвойна свіжість соснових стін дерев'яної баньки служить цілющою інгаляцією, що в тандемі з парними процедурами чудотворно впливає на здоров'я. «Хто любить народ, той повинен зводити його в баню» стверджував німецький поет Генріх Гейне. Тож не дивно, що в Німеччині лазні так само популярні, як у нас. І сьогодні ми розповімо про будівництво декількох проектів дерев'яних лазень саме в Німеччині.
Особливості експорту дерев'яних зрубів в Німеччину
Замовники побажали придбати кілька комплектів лазень для спорудження в Німеччині. Архітектор «Домінант» розробив індивідуальне планування дерев'яних конструкцій. Як правило, при експорті до Німеччини, кожна споруда розробляється відповідно до індивідуальних побажань клієнтів. Специфікою дизайну дерев'яних конструкцій для німців виступає гранична простота і лаконічність. Щороку ми реалізуємо по кілька будівель в Німеччині, і всі вони відрізняються компактністю і простотою. Крім того, ще однією характерною особливістю німецьких будівель виступає той факт, що там в основному затребувані дерев'яні лазні. Яскравий приклад реалізації комплексу бань в Німеччині можна побачити в одній з наших публікацій. Сьогодні презентуємо два проекти дерев'яних лазень нашого виробництва, експортованих до Німеччини і зібраних місцевими робітниками під контролем фахівця «Домінант».
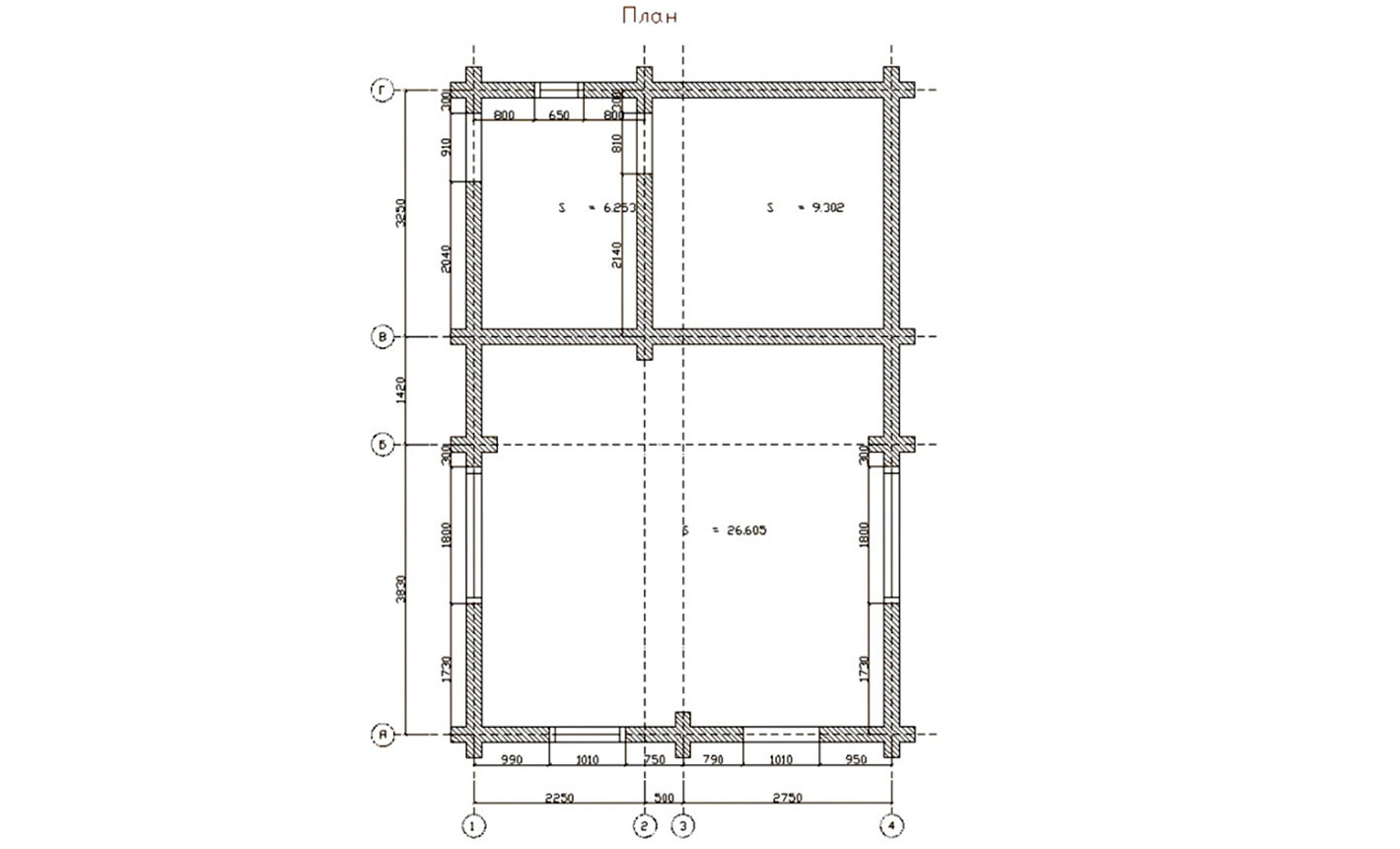
Зруб лазні 8,5 на 5,5 м з колод діаметром 200 мм
Один з проектів бань, реалізованих в Німеччині, побудований з оциліндрованих колод діаметром 200 мм і характеризується розмірами 8,5 на 5,5 м. Висота стель становить 2,6 м, що зазвичай пропонується в стандартних моделях будинків з брусу.
Точно так, як інші німецькі споруди, дана споруда має максимально простий дизайн, прямокутну форму, класичний, двосхилий дах. Великі вікна чудово гармонують зі стінами соснового зрубу і дозволяють в повній мірі споглядати водойму близько лазні. Акуратність і прагматичність, властива громадянам Німеччини, ідеально втілюються в даній конструкції, де всі параметри підібрані і розраховані оптимально.
Щодо внутрішнього планування варто зауважити, що лазня складається з двох повністю розділених приміщень, між якими немає суміжних дверей. Тобто можна сказати, що одна будова складається з двох незалежних приміщень. У першому приміщенні площею 15,5 м2 планується парилка і душова, а друге приміщення площею 26,6 м2 буде використовуватися в якості закритої альтанки або кімнати відпочинку. Таке планування повністю відповідає уявленню господарів про свій комфорт, і ми з радістю втілюємо бажання клієнтів в кожному побудованому об'єкті.
Зруб лазні 3,8 на 2,6 з колод діаметром 200 мм
Мініатюрна будова площею 9,8 м2 є зразком лаконічності і мінімалізму. Тут сплановані одні двері і два маленьких віконця. Висота стіни до стелі стандарт - 2,6 м. Усередині передбачена одна перегородка, що відокремлює передбанник розміром 5,2 м2 від парилки розміром 2,8 м.
Таку лазню з легкістю можна встановити навіть у маленькому дворику і насолоджуватися безмежним доступом до банних процедур у будь-який час. Зазначимо, що для таких маленьких конструкцій найчастіше вибирають мінімальний діаметр колод, пропонований нашим виробництвом. Це діаметр 160 мм. Але нашому замовнику припав до душі більш масивний вид конструкції, який створюється завдяки використанню оциліндрованих колод діаметром 200 мм. Та й теплоізоляція таких стінок краще, що є важливою перевагою для лазні.
Враховуючи попит на такі мініатюрні садові та господарські споруди з дерева, ми виділили окрему категорію «Будиночки» у каталозі сайту «Домінант». У цьому підрозділі можна вибрати будиночок-студію або садовий будиночок за вигідною вартістю. Ці будиночки виглядають просто казково завдяки привабливим округлостям зроблених з колод стін. За бажання будь-який такий будиночок можна пристосувати під лазню і отримати власне джерело радості та здоров'я.
Ідея будівництва лазні особливо актуальна за часів епідемії та постійних локдаунів. Коли всі контакти в реальному житті зведені до мінімуму, єдиною віддушиною можуть стати посиденьки у лазні. А вибір саме дерев'яної лазні подарує багато переваг. Це швидке будівництво, мінімум капіталовкладень за рахунок мінімальної обробки та максимум насолод від тепла та приємного хвойного запаху соснового зрубу. Ваша зроблена з колод лазня вже чекає своєї реалізації в каталозі проектів бань «Домінант»!













