- Новини
- 0 вподобання
- 850 покази
- Індивідуальні проекти «Домінант», Споруди «Домінант» в Україні
Будинок з натурального дерева на лоні природи - це справжній скарб для тих, хто потребує відновлення після жахливих подій, що кожен день відбуваються навколо. За таких напружених умов, погодьтеся, хочеться хоча б трошки перепочити, відволіктись, щоб мати сили на подальшу працю і боротьбу за перемогу. От ми й розробили для цього ідеальне рішення: гостьовий котедж з подвійного брусу, спеціально створений для тих, кому треба перевести дух і поновити сили. Читайте далі, щоб дізнатися деталі про цю будівлю у комплексі відпочинку біля Житомира.
Індивідуальний дизайн будинку відпочинку
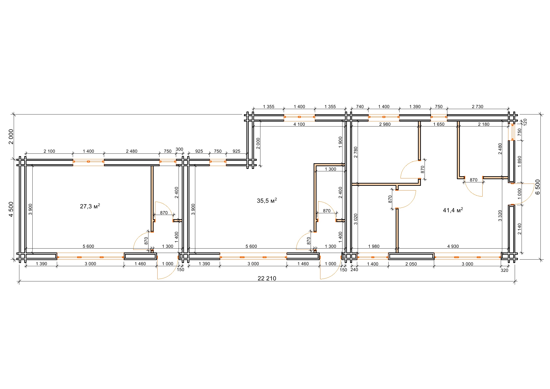
Наш замовник, який колись розпочинав свій комерційний проект з використанням нашої технології будівництва з подвійного брусу з утепленням, точно знав, чого хоче. Він запропонував нам свій ідеальний план нового гостьового котеджу, і ми втілили його мрію на площі 115,4 м². Одноповерховий будинок видовженої, прямокутної форми 22 на 6 м спланований на декілька апартаментів для відпочинку, і так само як інші будови в комплексі Kolyba Club, виконується з подвійного ряду брусів, заповненого арболітом. Дизайн нового будинку відпочинку є втіленням витонченої естетики сучасного стилю, яскраво транслює природну красу справжнього дерева, а ще максимально гармонійно виглядає в комплексі інших дерев’яних споруд на території комплексу.
Примітною фішкою дизайну будівлі виступає плоский дах - дуже простий, практичний і бюджетний. А ще він відкриває широкі можливості для активного використання, саме в даному випадку він призначається для розташування великої літньої тераси. Враховуючи той факт, що котедж має комерційне призначення, він має бути не тільки привабливим, але й функціональним, комфортним для проживання та вигідно окупити інвестовані кошти. Тому весь простір в будинку, і навіть дах, активно використовується і розподіляється на окремі апартаменти під оренду.
Всі мінуси натурального дерева як будівельного матеріалу тут зведені до мінімуму. Гостьовий будинок з подвійного, утепленого брусу підійде як для літнього відпочинку, так і для постійного проживання. Адже завдяки високій енергоефективності стін тут буде довго зберігатись тепло взимку і довго залишатиметься прохолода влітку. Тобто мікроклімат у таких будівлях завжди оптимальний, незважаючи на пору року. Товщина стін з утепленням становить 300 мм, але за показниками теплозбереження вони конкурують із суцільною сосновою колодою у 500 мм! Подвійний брус із арболітом - це технологія, яку ми рекомендуємо використовувати з метою досягнення найкращої енергоефективності, і навіть власний офіс «Домінант» ми зробили собі саме по такій технології.
Вигоди гостьового котеджу, побудованого з утепленого брусу
Гостьовий будинок з подвійного брусу принесе багато приємних переваг як для відвідувачів, так і для власника. З першого погляду на проект можна тільки уявити, як чудово розташуватись у сучасному котеджі, а на додачу отримати доступ до величезної тераси на даху, де лежаки розташовані в рядочок і можна ніжитись під сонцем чи ховатися під великими білими парасольками. Тому в першу чергу почнемо з розгляду переваг для гостей закладу.
Чому котедж сподобається гостям?
- Широта простору і різноманітність дозвілля. Погодьтеся, що чим більше простору для відпочинку - тим більше відчувається свободи і задоволення від навколишньої природи. У гостьовому котеджі гості зможуть годинами релаксувати на терасі, милуючись краєвидами, а потім усамітнитись в затишних апартаментах першого поверху або піти до розкішного ресторану, де по відгуках дуже смачно годують.
- Сучасний дизайн. Котедж не виглядає як типова хатинка для ночівлі. Це стильний, світлий простір, де так і хочеться проводити час, робити селфі чи організувати міні-вечірку з друзями.
- Контакт з природою. Навіть найзавзятіші міські мешканці зрадіють можливості відчути природу, не жертвуючи комфортом. Ще більшому злиттю з природою посприяє натуральне дерево, з якого виконані стіни будинку відпочинку, а також усі інші будівлі в ресторанно-готельному комплексі. В такому натуральному середовищі, сповненому цілющими деревними смолами, відбувається оздоровлення організму і зміцнюється імунітет.
Яку вигоду отримає власник гостьового котеджу?
- Прибутковість. Визначально з деревини будувати вигідно, особливо це стосується комерційних об’єктів. Справа в тому, що дерево майже не потребує масштабного оздоблення та декорування, його взагалі не потрібно прикрашати. Для довговічного, естетичного вигляду дерев’яних стін не потрібно їх рівняти чи обшивати, достатньо шліфування і фарбування. Всередині можна покрити стіни безкольоровим воском, який тільки підкреслить природну текстуру деревини. А зовні рекомендується застосувати фарбу з додаванням кольору для захисту її від вітру, дощів та вигоряння на сонці. Ще в будівлях з профільованого брусу рекомендується герметизувати зовнішні міжвінцеві шви. Всередині можна не герметизувати, враховуючи щільність прилягання профілів та 180 мм шар утеплювача в стіні. Ось чому власники комерційних закладів надають переваги дерев’яним спорудам, бо при мінімальних фінансових вкладеннях вони отримують швидкий і досить великий прибуток. Плюс відвідувачі завжди готові платити більше за відпочинок в екологічно сприятливій, природній атмосфері, тікаючи з бетонних, міських стін.
- Привабливість для гостей. Один тільки вигляд на терасу може стати магнітом для клієнтів. А в поєднанні з вдалим плануванням та зручною інфраструктурою, заклад набуде ще більшої популярності.
- Легкість та економність в обслуговуванні. Належним чином оброблений і змонтований котедж з подвійного брусу з утепленням легко підтримувати у відмінному стані. Поновлення фарбування потрібно буде не раніше ніж через 5-6 років. Ще що є чудовим бонусом на користь утепленого гостьового котеджу з брусу - це велика енергоефективність подвійних стін з арболітом в середині. Вона дає велику економію на обігріві взимку, а влітку - економію на кондиціонерах. Низька вартість експлуатації і обслуговування будинку з брусу з утепленням приваблює багатьох, хто прагне найвигіднішим чином інвестувати у власний бізнес. Тому й маємо такий великий відсоток саме комерційних об’єктів серед наших замовлень. Взагалі, дерев’яний котедж - найкраще, що можна уявити для відпочинку й усамітнення серед природи.
Як ми впевнились на основі всього вищезазначеного, вибір очевидний! Тому запрошуємо вас погортати наш каталог проектів будинків із подвійного брусу та знайти свій ідеальний котедж. А ми вже подбаємо про його реалізацію або створимо для вас новий, повністю унікальний проект гостьового чи житлового будинку!




















