- Новини
- 0 вподобання
- 1979 покази
Кожна людина має свій неповторний стиль і характер, не буває в світі двох абсолютно однакових людей. Навіть близнюки мають відмінності в зовнішності і характері. Працюючи не перший рік у сфері дерев'яного будівництва, ми з упевненістю можемо сказати, що не буває двох однакових будинків. Навіть побудовані за одним проектом будинки відрізняються між собою. Різне оздоблення і декоративні елементи, перепланування приміщень будинку можуть повністю змінити весь його вигляд і стиль. Будь-який готовий проект дерев'яного зрубу в нашому каталозі можна доопрацювати по-своєму і скомбінувати з іншим проектом, як ми і зробили при реалізації нового проекту будинку з оциліндрованих колод. Далі розповімо докладніше про цю споруду.
Проект оциліндрованого будинку під замовлення
Замовнику припали до душі два готові проекти зрубів від компанії «Домінант», це проекти «Яніна» і «Манвіна». У кожному з проектів клієнт вибрав те, що йому сподобалося найбільше. Наш архітектор вміло об'єднав побажання клієнта в індивідуальний проект. Вийшло, що за зовнішніми даними новий котедж нагадує проект «Яніна», а ось внутрішнє планування відповідає проекту «Манвіна».
Зараз будинок побудований в базовій комплектації в Бориспільському районі, Київської області. Для будівництва клієнт вибрав оциліндровану колоду з діаметром 200 мм. Така товщина колоди соснової деревини дозволяє постійно проживати в будинку. У ньому буде тепло і затишно взимку, прохолодно влітку за рахунок ідеальної теплоізоляції сосни. Крім того, товщина деревини забезпечить відмінну шумоізоляцію (вам не будуть заважати звуки вулиці). А здатність натурального дерева «дихати» гарантує відмінну паро здатність. У будинку завжди буде зберігатися оптимальний, комфортний для життя, рівень вологості. Навіть в спекотне літо в дерев'яному будинку вам не знадобиться кондиціонер. Укладання колод по системі «місячний паз» і якісна герметизація міжвінцевих швів позбавляють клієнта від «містків холоду». Також вся деревина нашого виробництва має антисептичний захист від грибків, гнилі і оброблена спеціальним антипіреном від займання. Це позбавить господаря від додаткових турбот на найближчі шість років, після чого рекомендується проводити певний догляд за дерев'яним будинком.
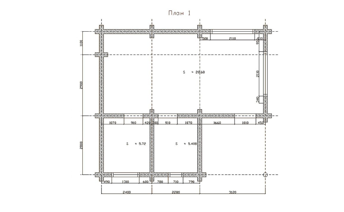
Поділ приміщень в будинку зі зрубу каркасними перегородками
Загальна площа проекту оциліндрованих зрубу, побудованого під індивідуальне замовлення, становить 106,4 м2. Це сучасний двоповерховий котедж для проживання великої родини. У плануванні будинку враховані всі вподобання замовників. Тут вистачить місця і для активного проведення часу і для ледачого відпочинку. При вході в будинок знаходиться невелика тераса. Тут можна поставити лавочку або крісло-гойдалку і насолоджуватися відпочинком на свіжому повітрі. У кутку можна помістити невеликий чайний столик.
Заходячи всередину котеджу з тераси, ми потрапляємо в простору вітальню площею 28,68 м2. Простору достатньо для сімейних зборів і посиденьок. Можна виділити місце для невеликого кінозалу з пуфами, подушками і великим телевізором. Можна виділити тут місце і для їдальні. При бажанні можна кімнату зробити у вигляді кухні-студії. Є місце і для куточка з книгами, і для робочого столу. Облаштувати простір ви зможете за своїми уподобаннями та смаком. Також на першому поверсі є ванна кімната площею п'ять квадратних метрів. Це досить простора кімната для установки всіх необхідних предметів, які повинні знаходитися у ванній кімнаті. Поруч з ванною, є ще одна кімната розміром 5,7 м2. Тут можна зробити котельню або госп.приміщення. А можна зробити і окрему гардеробну кімнату.
Другий поверх котеджу - мансардний. Площа його розділена каркасними перегородками на три просторі кімнати і великий коридор. Коридор ділить всі кімнати між собою, так що сусіди не будуть заважати один одному. Площа кімнат другого поверху - 8,3 м2, 9,5 м2, і 12,4 м2. Це можуть бути три окремі спальні. Можна залишити одну кімнату для гостей або зробити в ній робочий кабінет або творчу майстерню.
Господар зможе сам вибрати призначення приміщень, і що важливо зазначити, за допомогою каркасних перегородок дуже легко розділяти кімнати в дерев'яному будинку. Тобто, якщо ви вже вибрали проект, але не визначилися з кількістю необхідних кімнат - можна вже після зведення зрубу зайнятися плануванням. Погодьтеся, зручно увійти в будинок і зрозуміти, що і де краще розташувати. Це набагато простіше, ніж представляти на ескізах майбутнє планування. А каркасні перегородки дуже легко встановлюються після побудови дерев'яного будинку і ділять простір так, як ви це відчуваєте, перебуваючи у власному будинку. Детально про монтаж каркасних перегородок пропонуємо почитати на нашому сайті, де ми присвятили цьому питанню окрему статтю.
В цілому, наш новий проект оциліндрованого будинку, що вміщає всі переваги і красу дерев'яної споруди, стане запорукою довгого і щасливого сімейного життя в світлій аурі теплоти і затишку. Адже в його створення було вкладено стільки душевних сил і праці. Недарма кажуть: «Будинок там, де твоє серце». Під дахом вашого будинку відбуваються всі найголовніші моменти вашого життя. Тут зберігаються всі таємниці і щасливі спогади. Щоб будинок був вашою фортецею, потрібно добре подумати над його дизайном, плануванням і замовити втілення мрії у перевірених майстрів дерев'яного будівництва «Домінант»!























