- Новини
- 0 вподобання
- 1148 покази
- Будівництво
Якщо ви задумали будівництво власного будинку з брусу, і у вас є власний план житла - ми готові створити на його основі індивідуальний проект, який допоможе втілити унікальну ідею будівництва в життя. Вам не доведеться довго обирати будинок з типових проектів, адже ми зробимо саме те, що хочете ви. У подальшому розповідь буде присвячена конкретному прикладу – будинку, побудованому повністю за індивідуальним смаком клієнта у с. Барашівка Житомирської області.
Розробка індивідуального проекту
Так як ми виробнича компанія, то розробляємо виключно технічний проект дерев’яної конструкції з урахуванням особливостей технології будівництва. Дизайн та облицювання оселі залишається на розсуд замовника після завершення будівництва зрубу майстрами «Домінант». При бажанні клієнта наші фахівці можуть завершити фінішне облицювання зрубу. Але обговорення індивідуального проекту завжди починається саме з конструктиву, вибору типу і розміру соснових брусів, що в подальшому визначатиме експлуатаційні характеристики будівлі.
Цього разу клієнт обрав технологію будівництва з просушеного, профільованого брусу, особливістю будови стало поєднання двох розмірів брусу. Зовнішні стіни виконувались з брусу 150*150 мм, а міжкімнатні перегородки з тоншого брусу 60*150 мм. Сухий, профільований брус, виготовлений з соснової деревини, це найпрогресивніший вибір сьогодення, адже технологічний процес сушіння сосни в пресс-вакуумній камері допомагає отримати стабільний, знезаражений від шкідників матеріал, який майже не потребує зовнішнього оздоблення. Це найбільш вдалий і екологічний вибір матеріалу для будівництва житла, в якому завжди буде максимально сприятливий для здоров’я мікроклімат.
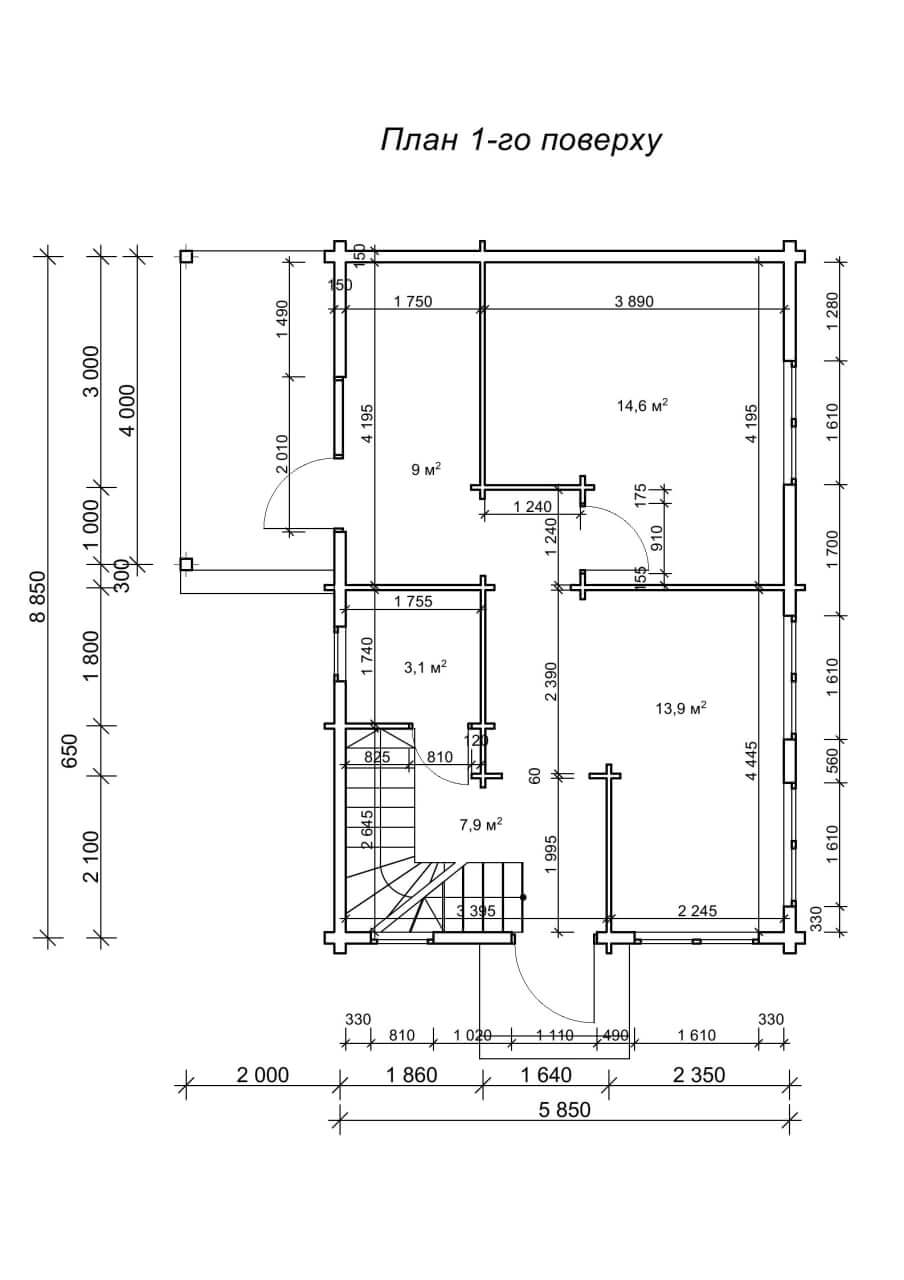
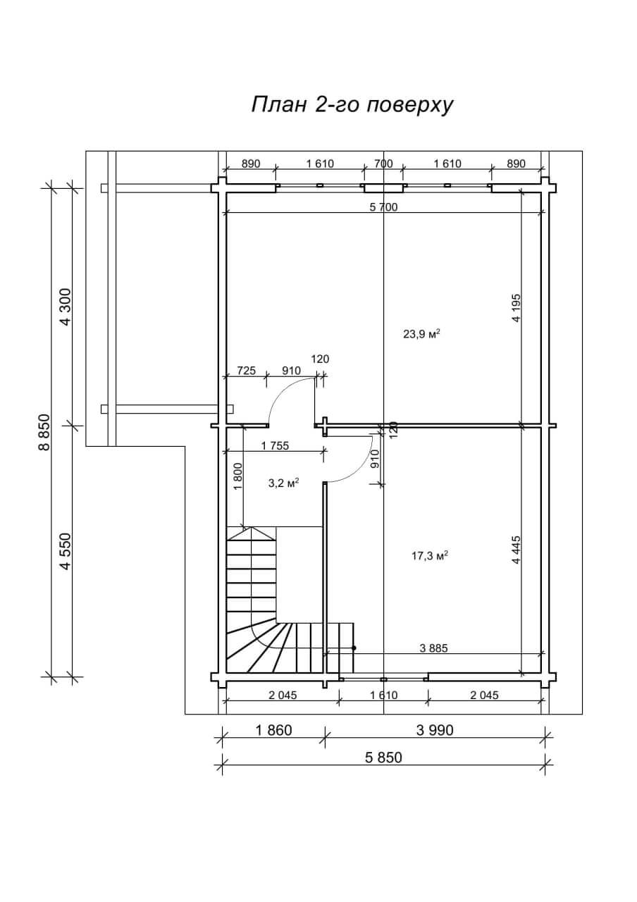
В нашій новій роботі по реалізації індивідуального проекту дерев'яного зрубу відображається унікальність господарів, і абсолютно все втілено за їхнім смаком на підготовленому ними заздалегідь фундаменті. Двоповерховий будинок з напівмансардним поверхом миттєво привертає увагу своїм елегантним виглядом. Його площа складає 111 м2, а параметри забудови 8х9 м. Це дуже зручні габарити забудови, які підходять під розміри стандартних земельних ділянок, і дозволяють оптимально розподілити простір в середині будівлі, щоб він був максимально функціональним.
Біля входу в будинок розташований компактний ґанок під навісом. У котеджі є бічні двері, які ведуть у двір. На фасадах передбачено великі вікна різної форми, що візуально полегшує масивну конструкцію зрубу і прикрашає її. Великі вікна наповнюють приміщення світлом і додають особливого шарму. Завдяки різноманітним віконечкам, всередині будівлі завжди буде яскраво та затишно. Внутрішнє планування розпочинається з невеликого коридору, в якому зручно обладнати передпокій з шафою для вуличних речей, далі розташована кухня, а праворуч вітальня, сходова зона і санвузол. Другий поверх містить дві спальні і коридорчик, звідки спускаються сходи. По чітко продуманому плануванню дійсно видно, що господар багато разів уявляв себе у власному будинку, у максимально зручній і комфортній для себе обстановці.
Вигоди будівництва на замовлення
Основною перевагою індивідуального проекту будинку є можливість втілення навіть нестандартних форм та створення оригінального планування, яке ідеально відповідає вашим потребам. Це стосується як самого дизайну будинку, так і бюджету будівництва. Можна розробити план оселі, що буде ідеально відповідати і вашим смакам, і вашим фінансовим можливостям по втіленню своїх смаків до життя.
Тож, якщо ви мрієте про єдине та неповторне житло, сміливо плануйте свій майбутній будинок. Ми володіємо багатим досвідом у втіленні будь-яких ідей у сфері дерев'яних конструкцій та обов’язково допоможемо вам вибрати оптимальну технологію для виробництва та будівництва дерев'яного зрубу.
Також, якщо ви вибираєте готовий проект від компанії «Домінант» і бажаєте дещо змінити його, ми внесемо всі правки, які зроблять цей проект максимально відповідним вашим смакам і дбатимемо про врахування всіх необхідних змін під час будівництва.
Розробляючи індивідуальні проекти, ми керуємось вподобаннями клієнтів, гарантуючи їм реалізацію їхніх мрій і очікувань. Індивідуальні запити завжди лежать в основі найбільш унікальних та оригінальних будівель. Коли людина сама творить свій житловий простір, вкладаючи у нього свої мрії та душу, такий будинок стає для неї справжнім джерелом щастя. Позитивні відгуки вдячних клієнтів підтверджують, що майстри компанії «Домінант» вміють втілювати унікальний стиль та індивідуальні вподобання замовників у своїх роботах!














