- Новини
- 1 вподобання
- 2160 покази
- Індивідуальні проекти «Домінант», Споруди «Домінант» в Україні
Перший крок до власного будинку - ваше уявлення про нього. Якщо ви вирішили, як він має виглядати, то ми беремося перетворити ваші ідеї на реальність. Жодних типових проектів, які не викликають емоцій - лише те, що дійсно відповідає вашим побажанням. Як, наприклад, котедж у с. Скоморохи на Житомирщині. Це будинок з сухого, профільованого брусу, що цілком і повністю був створений за побажаннями клієнта.
Як ми працюємо над індивідуальними проектами
Ми - деревообробна компанія, для якої важлива кожна технічна деталь зрубу. Тому на етапі планування ми разом з вами вирішуємо, які бруси підійдуть найкраще. Це важливо, бо від вибору технології залежить, наскільки довго і надійно стоятиме ваш будинок, і наскільки він задовільнить потрібний вам функціонал. А от коли каркас, який ми називаємо базовий комплект, готовий, вже ви вирішуєте, як його причепурити ззовні. Хочете щось стримане чи навпаки - зухвале? Все на ваш смак. Наші майстри по оздобленню можуть виконати фінішну обробку будівлі за вашим погодженням по вибору матеріалів і робіт. Але ключове в роботі над індивідуальним проектом - це фундаментальна робота над конструктивом.
Цього разу клієнт вирішив застосувати сучасну технологію: будівництво з сухого, профільованого брусу розміром 200×150 мм. Чому саме цей вибір технології? Бо цілісна сосна, яка пройшла сушіння в спеціальній прес-вакуумній камері, має низку суттєвих переваг:
Стабільність матеріалу. Завдяки технології сушіння брус не деформується і зберігає форму протягом усього терміну експлуатації.
Захист від шкідників. Під час сушіння знищуються всі можливі паразити, роблячи матеріал повністю безпечним.
Естетичність. Такий брус має природний вигляд і не потребує додаткового зовнішнього оздоблення.
Екологічність. Це натуральний, суцільний, не клеєний матеріал, який забезпечує здоровий мікроклімат у домі.
В будинках з соснового, профільованого брусу повітря завжди свіже, вологість оптимальна, а атмосфера наповнена природним теплом соснової деревини.
Індивідуальний проект, що відображає характер господарів
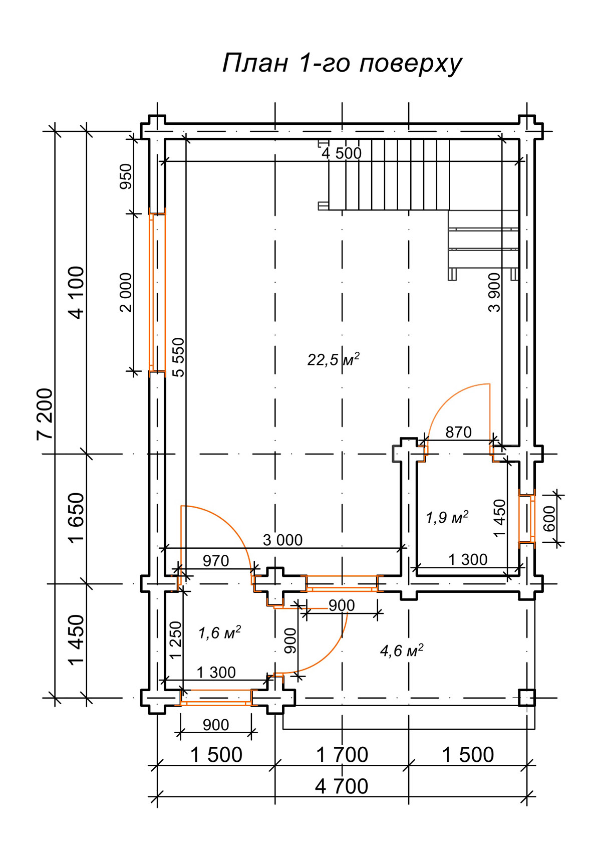
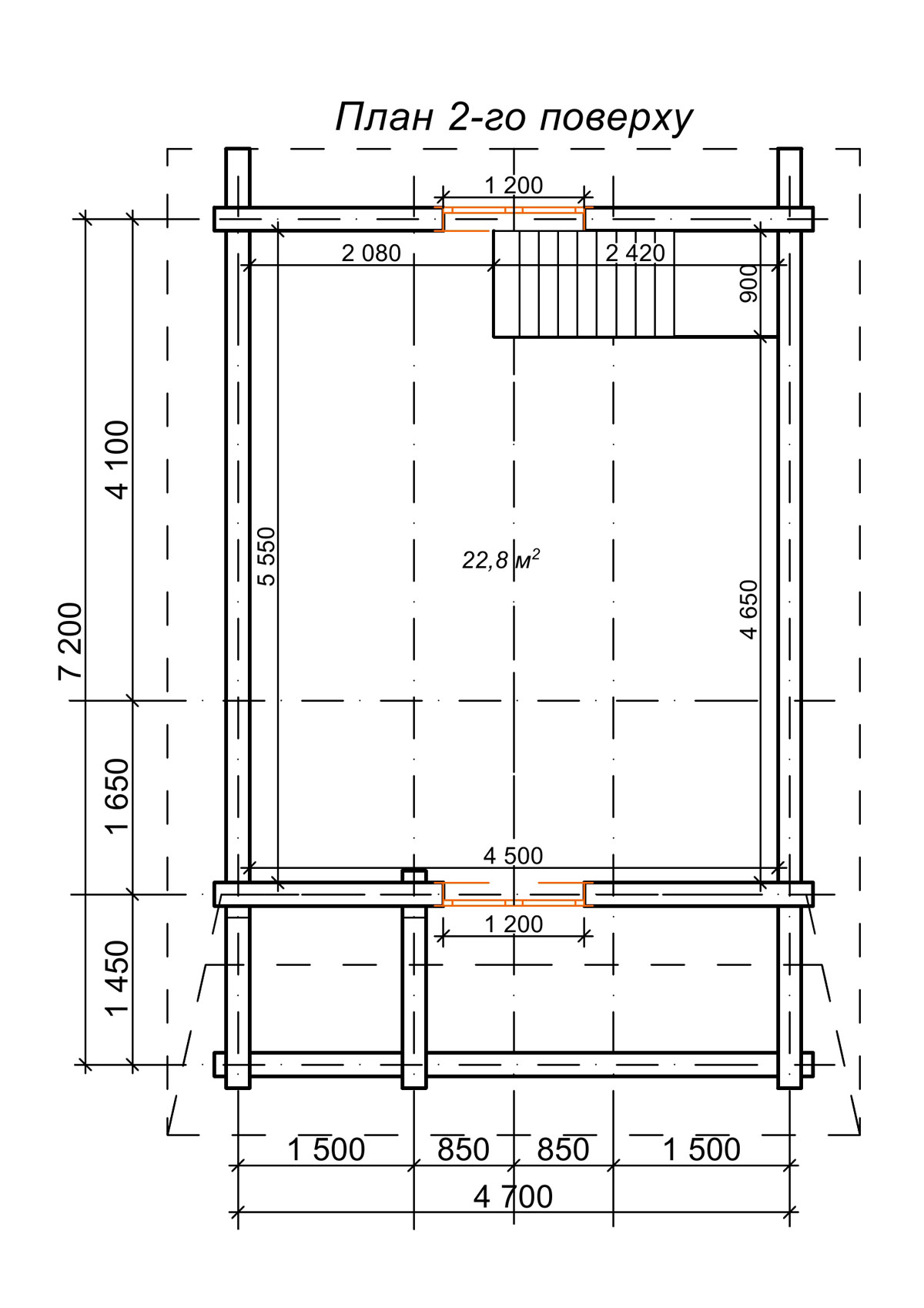
Отже, наш новий проект дерев’яного будинку став втіленням особистих потреб його власників. В ході створення проекту кожна деталь була продумана до дрібниць і виконана відповідно до їхніх побажань, включаючи креслення фундаменту, який господарі підготували заздалегідь. Клієнти замовили будинок з мансардним поверхом - горищем. Помітною особливістю проекту виступають зовнішні сходи до другого поверху. Господарі самі побажали не займати внутрішній простір будови, тому й розташували драбину зовні. Загальна площа котеджу разом з мансардою складає 60,9 м², а розміри забудови по осях 4,7×7,2 м. Такі параметри підходять для типової земельної ділянки, дозволяючи максимально ефективно використовувати кожен квадратний метр внутрішнього простору.
Цей проект - чудовий приклад того, як індивідуальний підхід у будівництві дозволяє створити місце, яке повністю відповідає особистим уявленням про ідеальну споруду. Адже, розглядаючи план будинку, крім зовнішньої драбини відразу помічаємо інші деталі, що персоналізують будиночок. А саме, біля входу в будинок розташований акуратний ґанок з навісом та невеличким тамбуром, де буде зберігатись вуличний одяг та взуття. В середині першого поверху одна кімната на 22 м2 та санвузол. Другий поверх створений для зберігання необхідних речей та інвентаря. Таке продумане планування - це повне відображення мрій господаря щодо свого дачного котеджу. А ще це свідчить про те, що власник багато разів уявляв свою ідеальну дачу, наповнену зручністю та гармонією.
Які плюси будинку на індивідуальне замовлення?
Найголовніша перевага такого будинку - це те, що можна втілити всі свої мрії. Хочете сходи на фасаді, щоб підніматися, мов у кіно? Будь ласка. Або мансарду, де можна ховатися від усього світу? Та легко! Тут усе під вас: і планування, і дизайн - повністю відповідатимуть вашим ідеям. І навіть якщо задум здається складним, ми все одно зробимо так, щоб вийшло круто. Ще один жирний плюс - це бюджет. Ми знаємо, що гроші люблять рахунок, тому завжди адаптуємо проект під ваші можливості. Ми вже багато років створюємо дерев'яні будинки й знаємо, як обрати найкращу технологію для вашого проекту. А якщо ви вподобали один із наших готових варіантів, але хочете його трохи змінити? Без проблем! Ми внесемо всі потрібні зміни, щоб будинок став саме таким, як ви уявляєте.
Сутність нашого індивідуального підходу полягає в простій істині: усе, що хоче клієнт, ми беремо до уваги. Ваш майбутній будинок - це не просто стіни й дах, а справжнє відображення вашого стилю життя. І головне, це джерело натхнення, де кожна дрібниця буде для вас. Не раз чули від клієнтів, як вони не натішаться своїми домівками, тому впевнені: і ваш проект стане таким самим хітом. Отже, звертайтеся до майстрів «Домінант», і ми допоможемо вам отримати ідеальний будинок.

















