- Новости
- 0 нравится
- 1442 просмотры
Практически каждая наша работа выполняется индивидуально по предпочтениям хозяев. В компании «Доминант» можно заказать любую деревянную конструкцию, которую опытные мастера реализуют качественно и в условленные сроки. Постройка из сухого бруса в Киевской области стала еще одним из ярких примеров реализации индивидуального проекта. В чем же особенности этого домика? Читайте дальше подробности строительства и смотрите фото коттеджа из сухого бруса.
Проект коттеджа под индивидуальный заказ
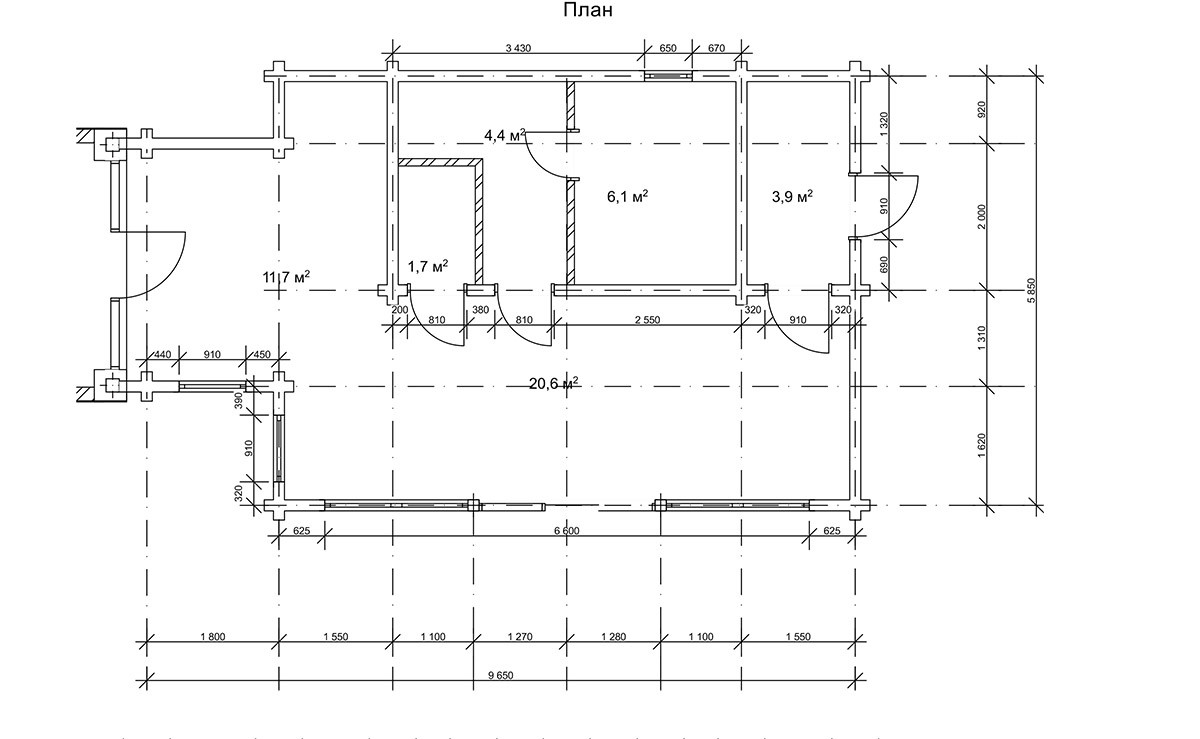
Исходя из задачи, поставленной нам заказчиком, коттедж из сухого бруса должен был дополнить уже имеющееся на участке строение. То есть в этом случае мы выполняли достройку из сухого, профилированного бруса 150*150 мм на фундаменте заказчика, примыкающему к другому сооружению. Параметры застройки составили 9,6 на 5,8 м, а общая площадь коттеджа 52,6 м2. Эффектной особенностью коттеджа стали большие окна от пола до потолка на переднем фасаде здания. Дизайн коттеджа с большими окнами всегда более привлекателен для клиентов. Присутствие панорамного остекления означает обилие природного освещения, а значит достаток света и уюта внутри помещений. Дома с большими окнами всегда больше ценятся, чем остальные, особенно в случае коммерческого предназначения построек. В данном случае коттедж должен послужить в качестве бани, о чем, в принципе, свидетельствует планировка его внутренних помещений. Проект предусматривает наличие парилки, душевой, санузла, кладовки и комнаты отдыха, которая как раз расположена перед панорамным остеклением. Это значит, что после банных процедур в коттедже из сухого бруса можно будет насладиться окружающей природой, не покидая комфорта постройки.
Наш новый проект коттеджа под индивидуальный заказ послужит еще одной комфортной зоной для гостей в комплексе отдыха. Для такой бани не потребуется масштабных отделочных работ. Брусья отшлифованы на четырехстороннем станке и стены потребуется лишь покрасить снаружи и внутри. Плюс сухой, профилированный брус стабилизирован в пресс-вакуумной сушке до одинаковой влажности по всем параметрам. Такой материал не дает усадку, поэтому в эксплуатации не несет особых забот. Выбор сухого, профилированного бруса из сосновой древесины можно назвать максимально выгодным для строительства коммерческого сооружения такого типа. Хозяин быстро окупит вложенные в постройку финансы, а гости смогут насладиться максимально природным микроклиматом деревянного строения.
Особенности реализации индивидуального проекта деревянного дома
Как правило, к нам обращаются заказчики, которые в общих чертах представляют, каким должен быть дом. Исходя из предпочтений будущих хозяев, наш архитектор создает проект дома, который в процессе разработки изменяется, согласовывается с заказчиком, пока не становится идеальным для клиента. В случае с нашей новой работой по строительству дома из сухого бруса, мы получили и выполнили абсолютно конкретное техническое задание. Дело в том, что построенный нами домик дополнил другую постройку, образуя как-бы одно с ней строение. На планировке коттеджа видно, с какой стороны идет соединение двух конструкций. Даже когда клиенты обращаются с определенным техзаданием или со своим, уже разработанным проектом сооружения, нам нужно адаптировать его под нашу технологию строительства. Поэтому создание проекта постройки из бруса и разработка технической документации по сборке деревянной конструкции обязательны для того, чтобы сделать комплект домика грамотно и качественно его собрать на фундаменте заказчика.
То есть основной особенностью реализации индивидуального заказа деревянного дома можно назвать разработку проекта деревянной конструкции. Индивидуальный проект показывает входящее количество материала в базовую комплектацию коттеджа, тем самым определяя ее стоимость, которая фиксируется в договоре подряда. В дополнение к проекту по сборке деревянного сруба заказчику предоставляется чертеж горизонтального среза фундамента, чтобы клиент занялся подготовкой основания, пока наш завод производит домокомплект.
Вторая ключевая особенность индивидуального проекта дома – это возможность реализовать оригинальное либо вовсе уникальное строение с планировкой, подходящей именно вам. Конечно, массу разнообразных вариантов вы найдете в каталоге готовых проектов «Доминант». Но единственное и неповторимое жилье, которого больше ни у кого нет, создается именно на основе индивидуальных проектов.
Так как мы уже два десятка лет специализируемся на деревянном домостроении, наши мастера умеют воплощать в жизнь любые идеи деревянных построек. Поэтому обращайтесь безотлагательно в наш офис, если у вас уже есть идея своей постройки! Мы подберем вам подходящую технологию производства и строительства деревянного сруба, учитывая при этом все ваши пожелания. Если же у вас пока нет идеи по строительству своего коттеджа, вдохновляйтесь домиками из каталога проектов «Доминант», который вы найдете в главном меню нашего сайта. Обратившись к нам, в скором времени вы станете обладателем роскошного деревянного сруба!










